Last updated: 6/28/2019
Complaint Against The Valuation Of A Manufactured Or Mobile Home Taxed Like Real Property {DTE 1M}
Start Your Free Trial $ 13.99What you get:
- Instant access to fillable Microsoft Word or PDF forms.
- Minimize the risk of using outdated forms and eliminate rejected fillings.
- Largest forms database in the USA with more than 80,000 federal, state and agency forms.
- Download, edit, auto-fill multiple forms at once in MS Word using our Forms Workflow Ribbon
- Trusted by 1,000s of Attorneys and Legal Professionals
Description
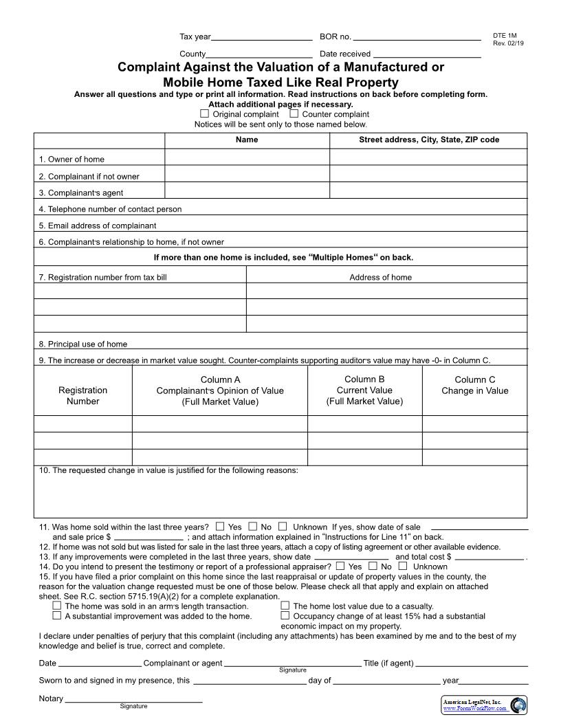
DTE 1MRev. 02/19Complaint Against the Valuation of a Manufactured or Mobile Home Taxed Like Real PropertyAnswer all questions and type or print all information. Read instructions on back before completing form. Attach additional pages if necessary. Original complaint Counter complaintNotices will be sent only to those named below. Street address, City, State, ZIP codeName Column AComplainant222s Opinion of Value(Full Market Value)Column BCurrent Value(Full Market Value) Column CChange in Value Tax year þ BOR no.County þ Date received Signature SignatureRegistrationNumber1. Owner of home2. Complainant if not owner3. Complainant222s agent4. Telephone number of contact person5. Email address of complainant6. Complainant222s relationship to home, if not ownerIf more than one home is included, see 223Multiple Homes224 on back.7. Registration number from tax bill þ Address of home8. Principal use of home9. The increase or decrease in market value sought. Counter-complaints supporting auditor222s value may have -0- in Column C.11. Was home sold within the last three years? Yes No Unknown If yes, show date of sale þ and sale price $ þ ; and attach information explained in 223Instructions for Line 11224 on back. 12. If home was not sold but was listed for sale in the last three years, attach a copy of listing agreement or other available evidence.13. If any improvements were completed in the last three years, show date þ and total cost $ þ .14. Do you intend to present the testimony or report of a professional appraiser? Yes No Unknown þ reason for the valuation change requested must be one of those below. Please check all that apply and explain on attached þ sheet. See R.C. section 5715.19(A)(2) for a complete explanation. þ The home was sold in an arm222s length transaction. þ The home lost value due to a casualty. þ A substantial improvement was added to the home. þ Occupancy change of at least 15% had a substantial þ þ economic impact on my property.I declare under penalties of perjury that this complaint (including any attachments) has been examined by me and to the best of my knowledge and belief is true, correct and complete.Date þ Complainant or agent þ Title (if agent)Sworn to and signed in my presence, this þ day of þ yearNotary American LegalNet, Inc. www.FormsWorkFlow.com Instructions for Completing DTE 1MFILING DEADLINE: A COMPLAINT FOR THE CURRENT TAX YEAR MUST BE RECEIVED BY THE COUNTY AUDI-TOR ON OR BEFORE MARCH 31 OF THE FOLLOWING TAX YEAR OR THE LAST DAY TO PAY FIRST-HALF TAXES WITHOUT A PENALTY, WHICHEVER DATE IS LATER. A COUNTER-COMPLAINT MUST BE FILED WITHIN 30 DAYS AFTER RECEIPT OF NOTICE FROM THE AUDITOR THAT AN ORIGINAL COMPLAINT HAS BEEN FILED.Who May File: Any person owning taxable real property in the county, the board of county commissioners, the county prosecutor, the county treasurer, the board of township trust-ees of any township with territory in the county, the board of education of any school district with territory in the county, or the mayor or legislative authority of any municipal corporation 5715.19 for additional information.Tender Pay:the valuation of that home, then, while such complaint is pending, the owner is entitled to tender to the county treasurer an amount of taxes based on the valuation claim for such home in the complaint. Note: If the amount tendered is less equals or exceeds the amount originally billed, a penalty will Multiple Homes: Only homes that (1) are in the same taxing district and (2) have identical ownership may be included in one complaint. Otherwise, separate complaints must be used. The increase or decrease in valuation must be sepa-rately stated for each home. If more than three homes are included in one complaint, use additional sheets of paper.General Instructions: The Board of Revision may increase or decrease the total value of any home included in a com-plaint. The board will notify all parties not less than 10 days prior to the hearing of the time and place the complaint will be heard. The complainant should submit any documents supporting the claimed valuation to the board prior to the hearing. The board may also require the complainant and/or owner to provide the board additional information with the complaint and may request additional information at the hear-ing, including purchase and lease agreements, closing state-ments, appraisal reports and cost of improvements added to the home (e.g. skirtings and awnings) for the property.Ohio Revised Code section 5715.19(G) provides that a 223com-plainant shall provide to the board of revision all information or evidence within the complainant222s knowledge or posses-information that is not presented to the board cannot later be presented on any appeal, unless good cause is shown for the failure to present such evidence or information to the board.Instructions for Line 9. In Column A enter the complainant222s opinion of the full market value of the parcel before the ap-plication of the 35% percent listing percentage. In Column B enter the current full market value of the parcel. This will be equal to the total taxable value as it appears on the tax B and Column A in Column C.Instructions for Line 11. If property was sold in the last three years, attach the purchase agreement, escrow statement, closing statement or other evidence available. If the buyer and seller were or are related or had any common business interests, attach an explanation. If any other items were in-cluded in the sale of the real estate, attach a description of those items. Show the value of those items and explain how the values were determined.Notice: If the county auditor is in possession of an email address for you, the auditor may choose to send any notices the auditor is required to send regarding this complaint by email and regular mail instead of by DTE 1MRev. 02/19 American LegalNet, Inc. www.FormsWorkFlow.com





