Last updated: 11/26/2025
Compliance Plan {CP}
Start Your Free Trial $ 13.99What you get:
- Instant access to fillable Microsoft Word or PDF forms.
- Minimize the risk of using outdated forms and eliminate rejected fillings.
- Largest forms database in the USA with more than 80,000 federal, state and agency forms.
- Download, edit, auto-fill multiple forms at once in MS Word using our Forms Workflow Ribbon
- Trusted by 1,000s of Attorneys and Legal Professionals
Description
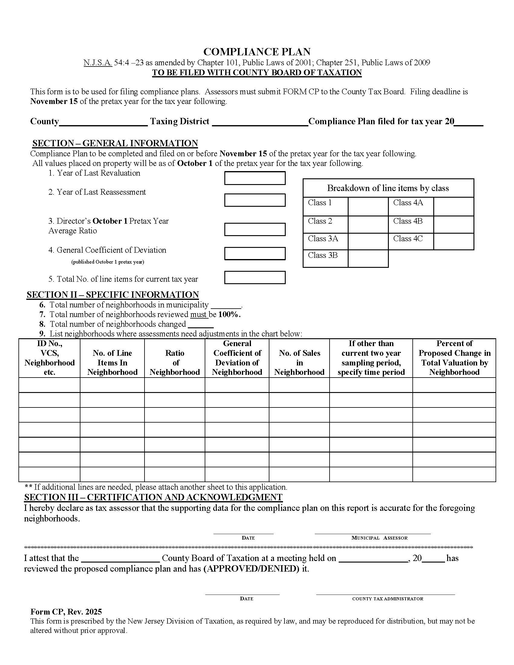
Form CP - COMPLIANCE PLAN. This is a required filing prescribed by the New Jersey Division of Taxation for municipal tax assessors seeking approval to adjust assessments in specific neighborhoods of a taxing district. Submitted to the County Board of Taxation by November 15 of the pretax year, the form documents the basis for reassessment, including the year of the last revaluation, Director’s Ratio, general coefficient of deviation, number of line items, and a detailed breakdown of neighborhood data. Assessors must list all neighborhoods reviewed, identify those requiring adjustments, and provide supporting sales studies. Form CP must be accompanied by written notice to the mayor, governing body, and county tax officials explaining why reassessment is needed. Approval by the County Board is required before implementing any changes. www.FormsWorkflow.com





