Last updated: 6/27/2025
Petition For Review Of Real Property
Start Your Free Trial $ 13.99What you get:
- Instant access to fillable Microsoft Word or PDF forms.
- Minimize the risk of using outdated forms and eliminate rejected fillings.
- Largest forms database in the USA with more than 80,000 federal, state and agency forms.
- Download, edit, auto-fill multiple forms at once in MS Word using our Forms Workflow Ribbon
- Trusted by 1,000s of Attorneys and Legal Professionals
Description
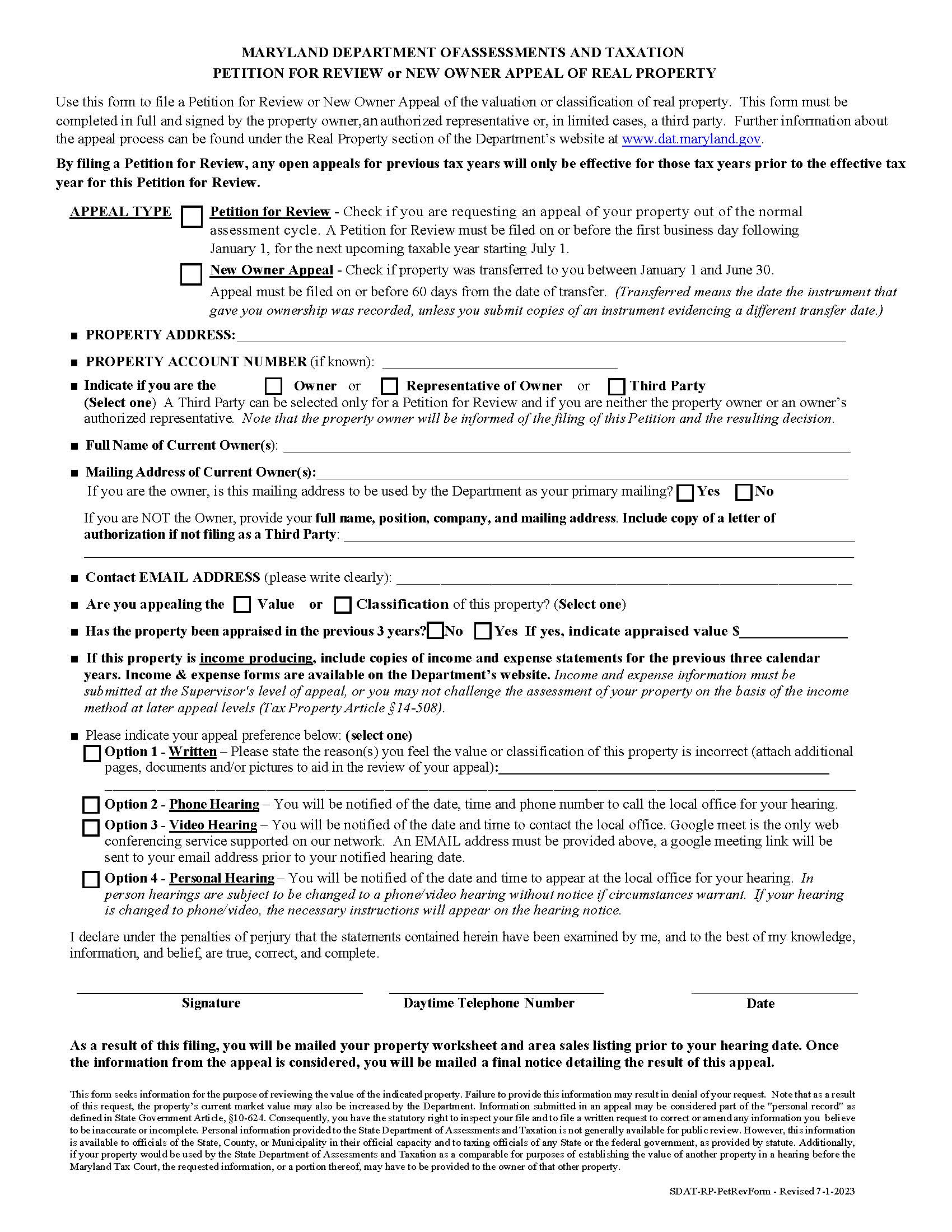
PETITION FOR REVIEW or NEW OWNER APPEAL OF REAL PROPERTY. This form is issued by the Maryland Department of Assessments and Taxation (SDAT) and used by property owners, their authorized representatives, or third parties in limited cases to challenge the assessed value or classification of a property. This form enables individuals to appeal an assessment outside the regular three-year cycle (Petition for Review) or after a recent ownership transfer between January 1 and June 30 (New Owner Appeal). The petition must include specific property details, such as the address, account number, current owner's name and mailing address, and whether the person filing is the owner, a representative, or a third party. Applicants must indicate whether they are disputing the property’s value or classification, and whether the property was recently appraised or generates income—requiring the submission of income and expense statements for the past three years. The form allows the filer to choose from four hearing options: written, phone, video (via Google Meet), or in-person (subject to change). All submissions must be signed under penalty of perjury, and the information provided may be used to adjust the property’s value, including possible increases. www.FormsWorkflow.com
Related forms
-
Articles Of Amendment For A Family Farm Limited Liability Company
Maryland/Secretary Of State/Business Entity/ -
Application For Registration Of Foreign Limited Partnership
Maryland/Secretary Of State/Business Entity/ -
Articles Of Revival For Domestic Corporation
Maryland/Secretary Of State/Business Entity/ -
Resident Agents Notice Of Change Of Address
Maryland/Secretary Of State/Business Entity/ -
Foreign Corporation Qualification
Maryland/Secretary Of State/Business Entity/ -
Trade Name Amendment Application
Maryland/Secretary Of State/Business Entity/ -
Resolution To Change Principal Office Or Resident Agent
Maryland/Secretary Of State/Business Entity/ -
Corporate Name Reservation Application
Maryland/Secretary Of State/Business Entity/ -
Corporate Name Reservation Application For Re Reservation
Maryland/Secretary Of State/Business Entity/ -
Corporate Articles Of Amendment For A Family Farm
Maryland/Secretary Of State/Business Entity/ -
Certificate Of Limited Liability Partnership
Maryland/Secretary Of State/Business Entity/ -
Certificate Of Correction
Maryland/Secretary Of State/Business Entity/ -
Certificate Of Conveyance
Maryland/Secretary Of State/Business Entity/ -
Certificate Of Cancellation Of A Foreign Limited Liability Company Registration
Maryland/Secretary Of State/Business Entity/ -
Articles Or Certificate Of Reinstatement (LLC LLP Or LP)
Maryland/Secretary Of State/Business Entity/ -
Articles Of Revival For Religious Corporation
Maryland/4 Secretary Of State/Business Entity/ -
Articles Of Organization (Limited Liability Company)
Maryland/Secretary Of State/Business Entity/ -
Articles Of Incorporation For A Tax Exempt Nonstock Corporation
Maryland/Secretary Of State/Business Entity/ -
Articles Of Incorporation For Stock Corporation
Maryland/Secretary Of State/Business Entity/ -
Articles Of Incorporation For Religious Corporation
Maryland/Secretary Of State/Business Entity/ -
Articles Of Incorporation For A Nonstock Corporation
Maryland/Secretary Of State/Business Entity/ -
Articles Of Incorporation For Close Corporation
Maryland/Secretary Of State/Business Entity/ -
Articles Of Amendment For Religious Corporation
Maryland/Secretary Of State/Business Entity/ -
Articles Of Amendment For Limited Liability Company
Maryland/Secretary Of State/Business Entity/ -
Articles Of Amendment (Corporation)
Maryland/Secretary Of State/Business Entity/ -
Application For Identification Number (Partnership)
Maryland/4 Secretary Of State/Business Entity/ -
Application For Termination For Foreign Corporation Qualification
Maryland/Secretary Of State/Business Entity/ -
Certificate Of Amendment To The Limited Liability Company Registration (Foreign)
Maryland/4 Secretary Of State/Business Entity/ -
Limited Liability Company Registration (Foreign LLC)
Maryland/Secretary Of State/Business Entity/ -
Limited Liability Partnership Registration (Foreign LLP)
Maryland/Secretary Of State/Business Entity/ -
Registering To Do Business In Maryland Under Assumed Name
Maryland/Secretary Of State/Business Entity/ -
Statutory Trust Registration For Non Maryland Statutory Trust
Maryland/Secretary Of State/Business Entity/ -
Trade Name Application
Maryland/Secretary Of State/Business Entity/ -
Trade Name Cancellation Application
Maryland/Secretary Of State/Business Entity/ -
Reporting Form For Changes Or Corrections
Maryland/Secretary Of State/Business Entity/ -
Reporting By The Home Owner Of The Redemption Of A Residential Ground Lease
Maryland/Secretary Of State/Business Entity/ -
Articles Of Cancellation (Domestic Limited Liability Company)
Maryland/Secretary Of State/Business Entity/ -
Petition For Review Of Real Property
Maryland/Secretary Of State/Business Entity/ -
Certificate Of Cancellation Of A Foreign Limited Partnership Registration
Maryland/Secretary Of State/Business Entity/ -
Articles Of Dissolution (Domestic Corporation)
Maryland/Secretary Of State/Business Entity/
Form Preview
Contact Us
Success: Your message was sent.
Thank you!




