Last updated: 11/4/2025
Affidavit Of Consideration For Graduated Percent Fee {RTF-1EE}
Start Your Free Trial $ 14.00What you get:
- Instant access to fillable Microsoft Word or PDF forms.
- Minimize the risk of using outdated forms and eliminate rejected fillings.
- Largest forms database in the USA with more than 80,000 federal, state and agency forms.
- Download, edit, auto-fill multiple forms at once in MS Word using our Forms Workflow Ribbon
- Trusted by 1,000s of Attorneys and Legal Professionals
Description
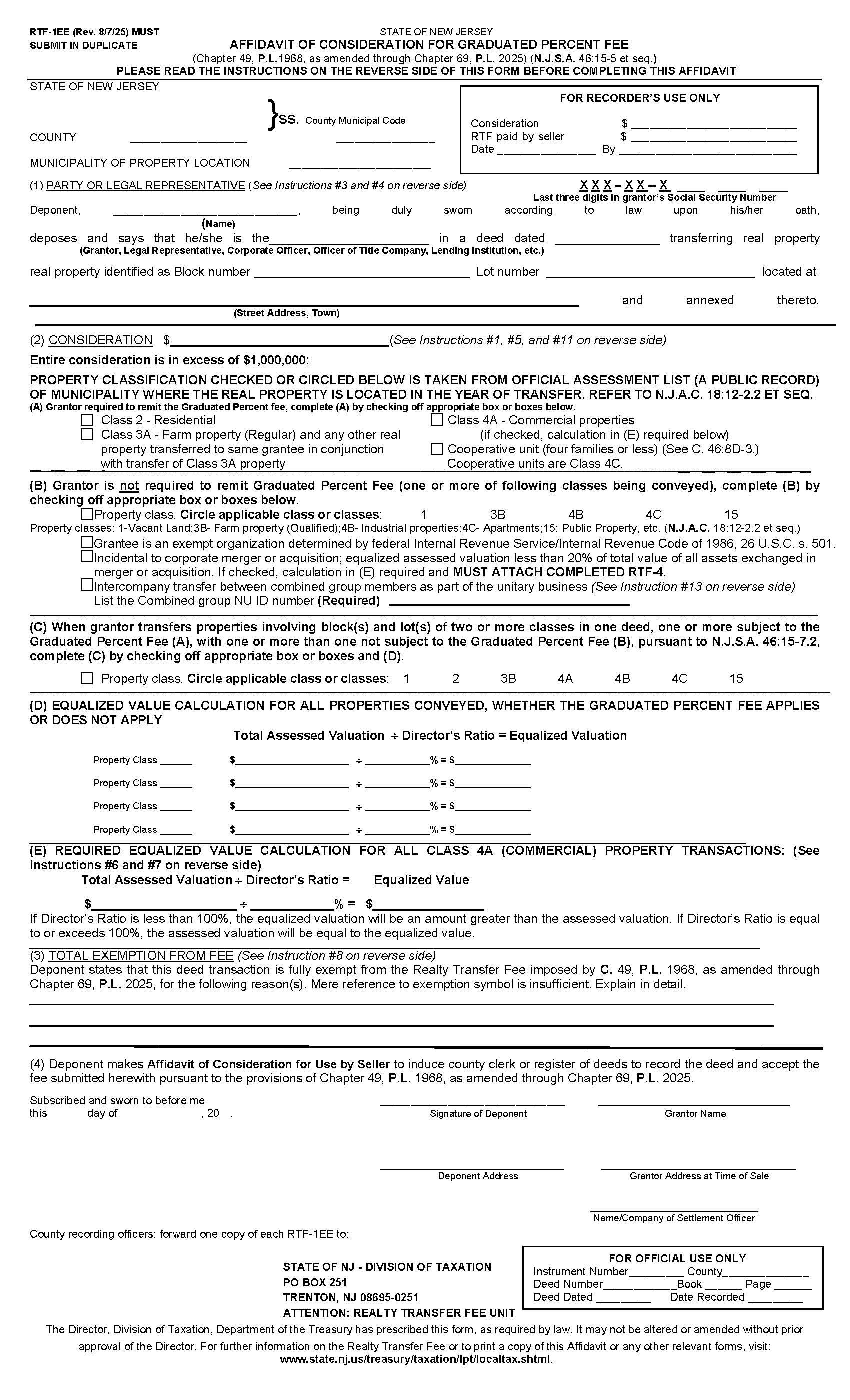
RTF-1EE - AFFIDAVIT OF CONSIDERATION FOR GRADUATED PERCENT FEE. This form is required under N.J.S.A. 46:15-5 et seq. for recording any deed transferring real property in New Jersey where the total consideration exceeds $1,000,000 or when a Class 4A (commercial) property transaction must be reported for equalized value verification. Filed in duplicate with the county recording officer, this affidavit ensures proper calculation of the Realty Transfer Fee and the Graduated Percent Fee imposed on high-value property transfers under Chapter 49, P.L. 1968, as amended through Chapter 69, P.L. 2025. The form must list property location, block and lot numbers, the consideration amount, property class, and applicable exemptions or calculations using the Director’s Ratio to determine equalized valuation. It also requires detailed justification for any total exemption, such as transfers to governmental entities, intercompany transfers, or nonprofit organizations. The affidavit must be signed and notarized under penalty of perjury, and one copy is forwarded by the county clerk to the New Jersey Division of Taxation, Realty Transfer Fee Unit. www.FormsWorkflow.com





