Last updated: 3/23/2025
Contractors Certification Of Workers Compensation Insurance {61A}
Start Your Free Trial $ 13.99What you get:
- Instant access to fillable Microsoft Word or PDF forms.
- Minimize the risk of using outdated forms and eliminate rejected fillings.
- Largest forms database in the USA with more than 80,000 federal, state and agency forms.
- Download, edit, auto-fill multiple forms at once in MS Word using our Forms Workflow Ribbon
- Trusted by 1,000s of Attorneys and Legal Professionals
Description
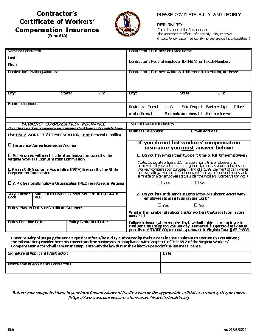
FORM 61A - CONTRACTOR’S CERTIFICATE OF WORKERS’ COMPENSATION INSURANCE. This form is used to verify a contractor’s compliance with Virginia’s Workers’ Compensation insurance requirements. Contractors must complete this form when applying for or renewing a business license with their local Commissioner of the Revenue or other designated local official. The form requires contractors to provide their business details, including the name, address, trade name, Federal Employer Identification Number (FEIN), and business structure. Contractors must indicate whether they have workers’ compensation insurance and, if so, list their insurance carrier, policy number, and coverage dates. The form requires contractors to declare whether they have employees or subcontractors, as this affects their obligation to carry workers’ compensation insurance under Virginia law (Virginia Code § 65.2-805). If a contractor has more than two employees—including part-time workers, corporate officers, or subcontractors’ employees—they are generally required to maintain workers’ compensation coverage. The form also warns that failure to obtain proper insurance when required can result in civil penalties of up to $50,000. Finally, the contractor must certify under penalty of perjury that the information provided is accurate and that they are in compliance with the Virginia Workers’ Compensation Act. www.FormsWorkflow.com
Related forms
-
Parental Guarantee
Virginia/Workers Compensation/ -
Physicians Report On Injury In Lieu Of Testimony
Virginia/Workers Compensation/ -
Report Of Medical Cost
Virginia/Workers Compensation/ -
Report Of Minor Injuries
Virginia/Workers Compensation/ -
Request For Peer Review
Virginia/Workers Compensation/ -
Self Insurance Bond
Virginia/Workers Compensation/ -
Subpoena Duces Tecum Civil Attorney Issued
Virginia/Workers Compensation/ -
Subpoena For Witness Civil Attorney Issued
Virginia/Workers Compensation/ -
Subpoena For Witness
Virginia/Workers Compensation/ -
Supplemental Agreement To Pay Benefits
Virginia/Workers Compensation/ -
Supplementary Report
Virginia/Workers Compensation/ -
Workers Compensation Notice
Virginia/Workers Compensation/ -
Employer Report
Virginia/Workers Compensation/ -
Claimants Affidavit
Virginia/Workers Compensation/ -
Agreement For The Settlement Of An Award In A Lump Sum Or Partial Lump Sum
Virginia/Workers Compensation/ -
Criminal Injuries Compensation Fund Claim Form
Virginia/Workers Compensation/ -
Notice Of Cancellation Or Non Renewal
Virginia/Workers Compensation/ -
Annual Payroll Report Operating As A Self Insurer{26C}
Virginia/Workers Compensation/ -
Annual Report Of Self Insurers Payroll By School Boards
Virginia/Workers Compensation/ -
Annual Report Of Self-Insurers Payroll
Virginia/Workers Compensation/ -
Supplemental Agreement To Pay Varying Temporary Partial Benefits
Virginia/Workers Compensation/ -
Notice Of Change Cancellation Or Non-Renewal
Virginia/Workers Compensation/ -
Annual Report Of Premiums Assessments Etc Received By Insurance Carriers
Virginia/Workers Compensation/ -
Petition Under Birth Related Neurological Injury Compensation Act
Virginia/Workers Compensation/ -
Amputation Chart Foot
Virginia/Workers Compensation/ -
Supplementary Report For Fatal Accidents
Virginia/Workers Compensation/ -
First Report Of Injury
Virginia/Workers Compensation/ -
Officer Manager Revocation Of Prior Rejection Of Coverage
Virginia/Workers Compensation/ -
Work Release
Virginia/Workers Compensation/ -
Employers Application For Individual Self Insurance
Virginia/Workers Compensation/ -
Annual Report Of Self Insurers Payroll
Virginia/Workers Compensation/ -
Change In Condition Claim Response
Virginia/Workers Compensation/ -
Full And Final Mediation Request
Virginia/Workers Compensation/ -
Issue Mediation Request
Virginia/5 Workers Compensation/ -
Mediation And Mediators Evaluation Form
Virginia/5 Workers Compensation/ -
Mediation Consent (Without Legal Counse)
Virginia/5 Workers Compensation/ -
Mediation Consent (With Legal Counsel)
Virginia/5 Workers Compensation/ -
Medical Care Provider Appication Response
Virginia/5 Workers Compensation/ -
Letter For Beneficiary In Fatal Case
Virginia/5 Workers Compensation/ -
Medical Fee Schedule Dispute Request
Virginia/5 Workers Compensation/ -
Medical Fee Schedule Dispute Response
Virginia/5 Workers Compensation/ -
Medical Provider Inquiry
Virginia/5 Workers Compensation/ -
Webfile Access And PEO Registration
Virginia/5 Workers Compensation/ -
PEO Parental Guarantee
Virginia/5 Workers Compensation/ -
Referral For Lack Of Coverage
Virginia/5 Workers Compensation/ -
Webfile Registration For Attorney Access
Virginia/5 Workers Compensation/ -
Waiver Of Occupational Disease Coverage
Virginia/Workers Compensation/ -
Fatal Award Agreement
Virginia/Workers Compensation/ -
Termination Of Wage Loss Award
Virginia/Workers Compensation/ -
Award Agreement
Virginia/Workers Compensation/ -
Expedited Hearing Request
Virginia/Workers Compensation/ -
Amputation Chart
Virginia/Workers Compensation/ -
COLA-Social Security Verification Request
Virginia/Workers Compensation/ -
Attending Physicians Report
Virginia/Workers Compensation/ -
Pneumoconiosis Claim
Virginia/5 Workers Compensation/ -
Full And Final Pre-Mediation Statement (Awarded Claim)
Virginia/5 Workers Compensation/ -
Full And Final Pre-Mediation Statement (All Claims)
Virginia/5 Workers Compensation/ -
Full And Final Pre-Mediation Statement (Contested Original Claim)
Virginia/5 Workers Compensation/ -
Transportation Travel Expense
Virginia/5 Workers Compensation/ -
Claim Form
Virginia/Workers Compensation/ -
Petition For Medical Treatment
Virginia/Workers Compensation/ -
Supplemental Agreement
Virginia/Workers Compensation/ -
Contractors Certification Of Workers Compensation Insurance
Virginia/Workers Compensation/ -
Wage Chart
Virginia/Workers Compensation/ -
Employers Application For Hearing
Virginia/Workers Compensation/ -
Officer Manager Rejection Of Coverage
Virginia/Workers Compensation/
Form Preview
Contact Us
Success: Your message was sent.
Thank you!




