Last updated: 9/19/2025
Recording Transmittal
Start Your Free Trial $ 13.99What you get:
- Instant access to fillable Microsoft Word or PDF forms.
- Minimize the risk of using outdated forms and eliminate rejected fillings.
- Largest forms database in the USA with more than 80,000 federal, state and agency forms.
- Download, edit, auto-fill multiple forms at once in MS Word using our Forms Workflow Ribbon
- Trusted by 1,000s of Attorneys and Legal Professionals
Description
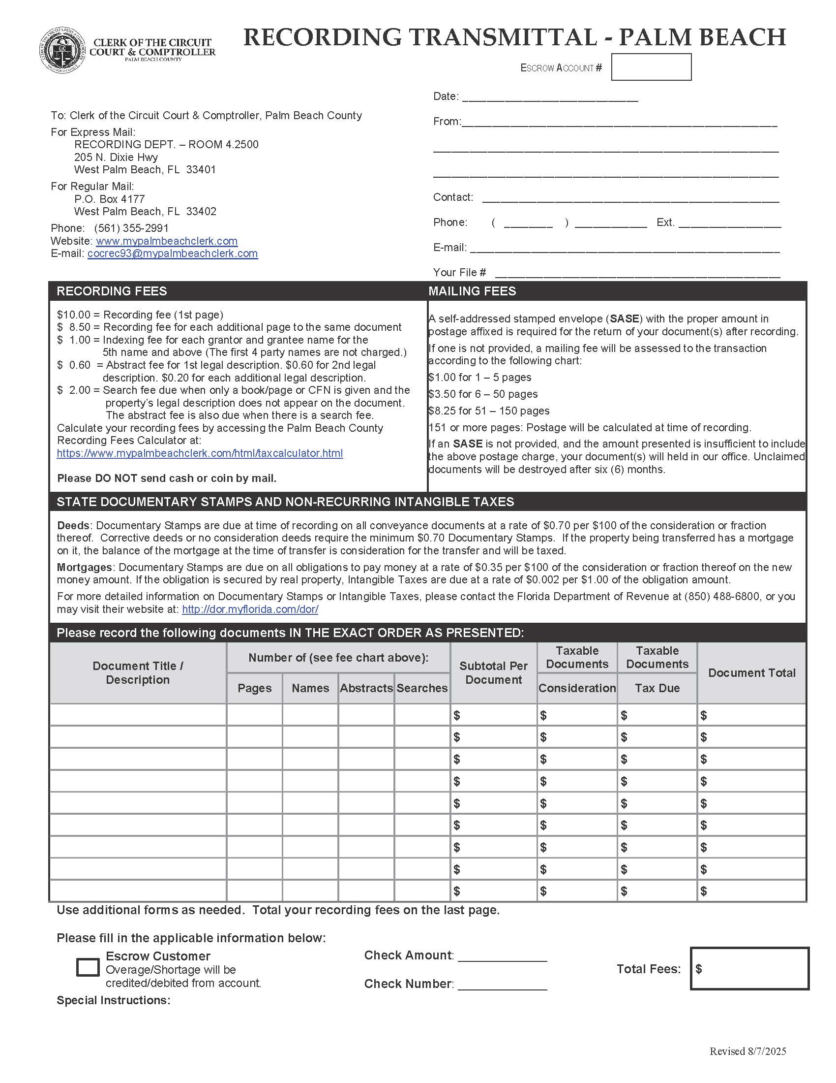
RECORDING TRANSMITTAL - PALM BEACH. This form is used in Palm Beach County, Florida, to submit documents for official recording with the Clerk of the Circuit Court & Comptroller. This form accompanies deeds, mortgages, liens, judgments, and other recordable instruments, ensuring they are filed in the proper order and that all required fees and taxes are calculated and paid. It provides space for the sender to list each document’s title, number of pages, number of names, abstracts, and searches, along with the corresponding fees, taxes, and totals. The form also explains the applicable recording fees, mailing fees, and state taxes such as documentary stamps and intangible taxes. Customers may pay by check or use an escrow account with the Clerk’s office, with any shortages or overages credited or debited accordingly. The form requires the sender to provide contact information, return address, and instructions for mailing back the recorded documents. www.FormsWorkflow.com
Related forms
-
Notice Of Confidential Information Within Court Filing
Florida/Local County/Palm Beach/General/ -
Notice Of Termination (Of Notice Of Commencement)
Florida/2 Local County/Palm Beach/General/ -
Notice Of Homestead
Florida/2 Local County/Palm Beach/General/ -
Notice Of Bond
Florida/2 Local County/Palm Beach/General/ -
Warranty Deed
Florida/2 Local County/Palm Beach/General/ -
Enhanced Life Estate Deed (Lady Bird Deed)
Florida/2 Local County/Palm Beach/General/ -
Satisfaction Of Judgment
Florida/2 Local County/Palm Beach/General/ -
Notice Of Contest Of Lien
Florida/2 Local County/Palm Beach/General/ -
Satisfaction Of Claim Of Lien
Florida/2 Local County/Palm Beach/General/ -
Notice Of Contest Of Lien (HOA)
Florida/2 Local County/Palm Beach/General/ -
Declaration Of Termination Of Domestic Partnership
Florida/Local County/Palm Beach/General/ -
Motion To Determine The Confidentiality Of Trial Court Records
Florida/2 Local County/Palm Beach/General/ -
Notice Of Filing Suggestion Of Bankruptcy
Florida/2 Local County/Palm Beach/General/ -
Final Judgment Against (Small Claims)
Florida/2 Local County/Palm Beach/General/ -
Authorization To Allow Employee To Represent Business Entity (Small Claims)
Florida/2 Local County/Palm Beach/General/ -
Statement Of Claim (Small Claims)
Florida/2 Local County/Palm Beach/General/ -
Owners Claim For Mortgage Foreclosure Surplus
Florida/2 Local County/Palm Beach/General/ -
Request To Add Final Judgment Information Protected Minor Public Website
Florida/Local County/Palm Beach/General/ -
Consent For Petitioner To File On Behalf Of Vulnerable Adult
Florida/Local County/Palm Beach/General/ -
Request To Dismiss Petition For Injunction (Vulnerable Adult)
Florida/Local County/Palm Beach/General/ -
Vulnerable Adult Description Sheet (Sheriffs Information)
Florida/Local County/Palm Beach/General/ -
Petition For Injunction Against Exploitation Of A Vulnerable Adult
Florida/Local County/Palm Beach/General/ -
Petitioners Motion Testimony By Phone Or Video Conferencing (Vulnerable Adult)
Florida/Local County/Palm Beach/General/ -
Notice Of Contest Of Claim Against Payment Bond
Florida/Local County/Palm Beach/General/ -
Request For Release Of Transfer Of Lien To Security
Florida/2 Local County/Palm Beach/General/ -
Claim Of Lien
Florida/2 Local County/Palm Beach/General/ -
Statement Of Claim (Probate)
Florida/2 Local County/Palm Beach/General/ -
Quit Claim Deed
Florida/2 Local County/Palm Beach/General/ -
Summons (Personal Service On A Natural Person - County Civil)
Florida/Local County/Palm Beach/General/ -
Satisfaction Of Mortage
Florida/2 Local County/Palm Beach/General/ -
Civil Cover Sheet
Florida/2 Local County/Palm Beach/General/ -
Petition For Disposition Personal Property Without Administration Affidavit Of Heirship
Florida/2 Local County/Palm Beach/General/ -
Declaration Of Domicile
Florida/2 Local County/Palm Beach/General/ -
Eviction Summons Residential
Florida/Local County/Palm Beach/General/ -
Request To Release Protected Decedents Removed Information
Florida/2 Local County/Palm Beach/General/ -
Request To Release Redacted Information On Recorded Documents (Title Search)
Florida/Local County/Palm Beach/General/ -
Official Records Escrow Agreement
Florida/Local County/Palm Beach/General/ -
Subpoena Duces Tecum With Deposition
Florida/2 Local County/Palm Beach/General/ -
Request To Release The Exempt Status Of Home Address
Florida/Local County/Palm Beach/General/ -
Records Services Transmittal
Florida/2 Local County/Palm Beach/General/ -
Request For Redaction Exempt Personal Information Non-Judicial Public Records
Florida/2 Local County/Palm Beach/General/ -
Request For Permanent Removal Of Military Separation Document
Florida/2 Local County/Palm Beach/General/ -
Declaration Of Domestic Partnership
Florida/Local County/Palm Beach/General/ -
Claim To Surplus Proceeds Of Tax Deed Sale
Florida/2 Local County/Palm Beach/General/ -
Subpoena For Inspection Of Premises
Florida/2 Local County/Palm Beach/General/ -
Request For Removal Of SS Number Bank Account CC Number
Florida/2 Local County/Palm Beach/General/ -
Recording Transmittal
Florida/Local County/Palm Beach/General/ -
Request To Release Redacted Information On Recorded Documents (Protected Party)
Florida/2 Local County/Palm Beach/General/ -
Request For Internet Document Removal
Florida/2 Local County/Palm Beach/General/ -
Summons (Personal Service On A Natural Person - Circuit Civil)
Florida/Local County/Palm Beach/General/ -
Notice Of Commencement
Florida/2 Local County/Palm Beach/General/ -
Amended Declaration Of Domestic Partnership
Florida/Local County/Palm Beach/General/ -
Subpoena For Deposition
Florida/2 Local County/Palm Beach/General/ -
Subpoena Duces Tecum (No Deposition)
Florida/2 Local County/Palm Beach/General/
Form Preview
Contact Us
Success: Your message was sent.
Thank you!




