Last updated: 5/29/2015
Notice Of Pendency Of Action {CIV-50}
Start Your Free Trial $ 12.99What you get:
- Instant access to fillable Microsoft Word or PDF forms.
- Minimize the risk of using outdated forms and eliminate rejected fillings.
- Largest forms database in the USA with more than 80,000 federal, state and agency forms.
- Download, edit, auto-fill multiple forms at once in MS Word using our Forms Workflow Ribbon
- Trusted by 1,000s of Attorneys and Legal Professionals
Description
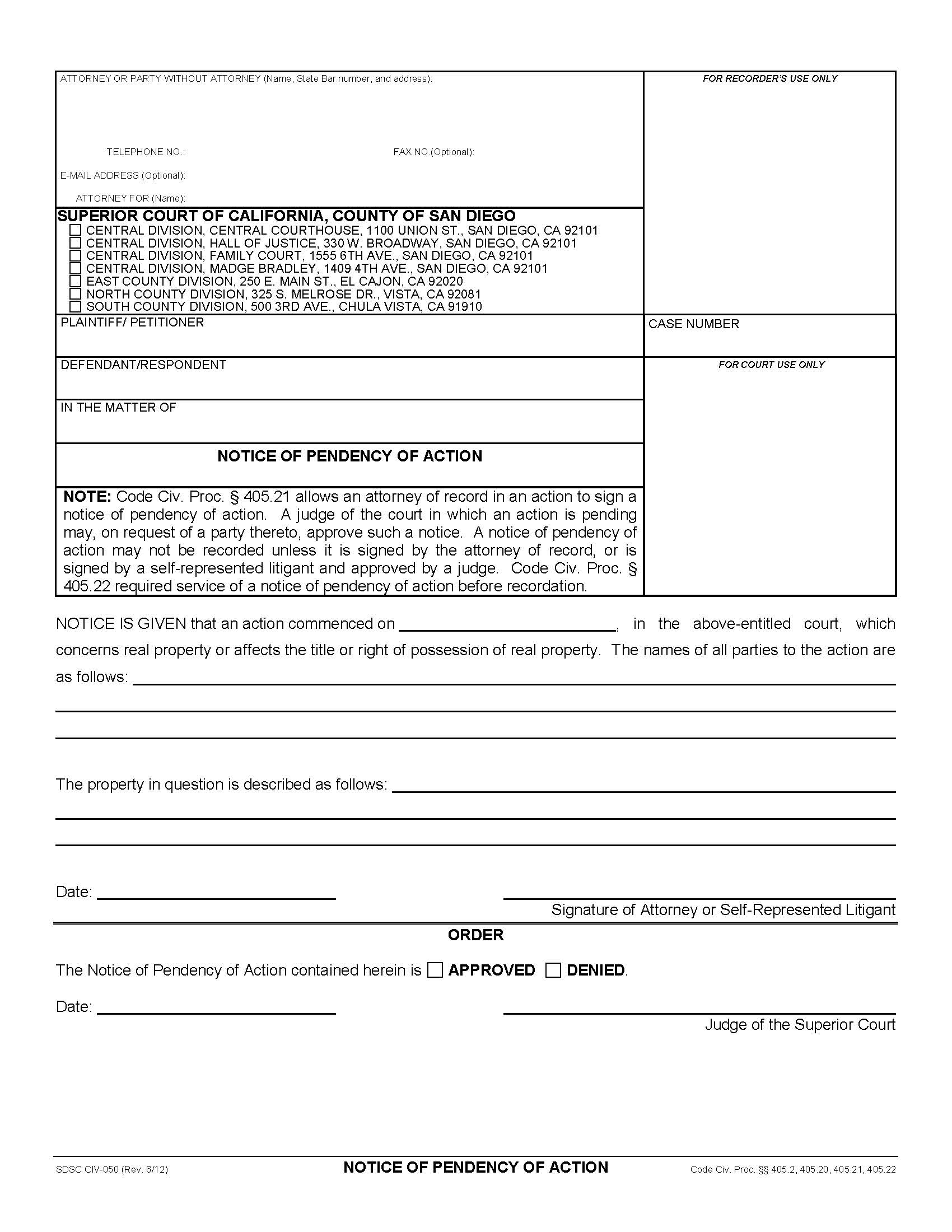
SDSC CIV-050 - NOTICE OF PENDENCY OF ACTION. This form commonly known as a lis pendens, is used in San Diego Superior Court to give public notice that a lawsuit has been filed affecting title to or possession of real property. The form identifies the parties, the court case number, the date the action commenced, and a legal description of the property involved. NOTE: Code Civ. Proc. § 405.21 allows an attorney of record in an action to sign a notice of pendency of action. A judge of the court in which an action is pending may, on request of a party thereto, approve such a notice. A notice of pendency of action may not be recorded unless it is signed by the attorney of record, or is signed by a self-represented litigant and approved by a judge. Code Civ. Proc. § 405.22 required service of a notice of pendency of action before recordation. Code Civ. Proc. §§ 405.2, 405.20, 405.21, 405.22. www.FormsWorkflow.com
Related forms
-
Notice Of Pendency Of Action
California/Local County/San Diego/Civil/ -
Notice Of Pro Tempore Court Reporter Deposit
California/Local County/San Diego/Civil/ -
Order For Issuance Of Writ Of Execution Abstract Of Judgment Sister State Judgment
California/Local County/San Diego/Civil/ -
Order For Release Of Impounded Vehicle
California/Local County/San Diego/Civil/ -
Stipulation Order For Court Ordered Arbitration
California/Local County/San Diego/Civil/ -
Stipulation Re Jury
California/Local County/San Diego/Civil/ -
Declaration Re Default In Installment Payments And Order Thereon
California/Local County/San Diego/Civil/ -
Proof Of Service By First Class Mail-Civil (Proof Of Service)
California/Local County/San Diego/Civil/ -
Declaration Of Default Re Stipulated Agreement And Judgement Thereon
California/Local County/San Diego/Civil/ -
Attached Descriptions
California/Local County/San Diego/Civil/ -
Proof Of Personal Service-Civil (San Diego)
California/Local County/San Diego/Civil/ -
Request For Dismissal-Freedown From Parental Custody And Control
California/Local County/San Diego/Civil/ -
Sister State Judgments
California/Local County/San Diego/Civil/ -
Stipulation To Use Of Alternative Dispute Resolution Process
California/Local County/San Diego/Civil/ -
Writ Of Attachment Attachment (San Diego)
California/Local County/San Diego/Civil/ -
Request-Counter Request To Set Case For Trial-Unlawful Detainer (San Diego)
California/Local County/San Diego/Civil/ -
Judgment-Unlawful Detainer (San Diego)
California/Local County/San Diego/Civil/ -
Judgment-Unlawful Detainer Attachment (San Diego)
California/Local County/San Diego/Civil/ -
Application For Entry Of Judgment On Sister State Judgment (San Diego)
California/Local County/San Diego/Civil/ -
Notice Of Entry Of Judgment On Sister State Judgment (San Diego)
California/Local County/San Diego/Civil/ -
Juror Questionnaire Cover Sheet
California/Local County/San Diego/Civil/ -
Application And Order To Serve Summons By Posting For Unlawful Detainer
California/Local County/San Diego/Civil/ -
Judgment Checklist-Defautl By Court (Civil)
California/Local County/San Diego/Civil/ -
Judgment Checklist-Default By Court (Unlawful Detainer-Money Judgment)
California/Local County/San Diego/Civil/ -
Citation For Freedom From Parental Custody And Control
California/Local County/San Diego/Civil/ -
Guidelines For Default Judgments
California/Local County/San Diego/Civil/ -
Joint Trial Readiness Conference Report Format
California/Local County/San Diego/Civil/ -
Attachment 15 (Abstract Of Judgment-Civil And Small Claims)
California/Local County/San Diego/Civil/ -
Attachment 20 (Abstract Of Judgment-Civil And Small Claims)
California/Local County/San Diego/Civil/ -
Attachment 20 (Writ Of Execution)
California/Local County/San Diego/Civil/ -
Judgment On Sister-State Judgment
California/Local County/San Diego/Civil/ -
Declaration Concerning Waived Court Fees
California/Local County/San Diego/Civil/ -
Criteria For Obtaining An Ex Parte Order For Publication
California/Local County/San Diego/Civil/ -
Application And Declaration In Support Of Request To Dispense With Notice
California/Local County/San Diego/Civil/ -
Civil Subpoena (Duces Tecum) For Personal Appearance (San Diego Pre-Issued)
California/Local County/San Diego/Civil/ -
Civil Subpoena For Personal Appearance (San Diego Pre-Issued)
California/Local County/San Diego/Civil/ -
Deposition Subpoena For Production Of Business Records (San Diego Pre-Issued)
California/Local County/San Diego/Civil/ -
Deposition Subpoena For Personal Appearance (San Diego Pre-Issued)
California/Local County/San Diego/Civil/ -
Deposition Subpoena For Personal Appearance And Production Of Documents (San Diego Pre-Issued)
California/Local County/San Diego/Civil/ -
Order Exonerating Property Bond
California/Local County/San Diego/Civil/ -
Notice Of Payment Of Advance Jury Fee
California/Local County/San Diego/Civil/ -
Description Of Defendant-Witness
California/Local County/San Diego/Civil/ -
Application For Publication Of Summons-Citation
California/Local County/San Diego/Civil/ -
Order For Publication Of Summons-Citation
California/Local County/San Diego/Civil/ -
Declaration And Order For Transfer Of Blocked Account Funds
California/Local County/San Diego/Civil/ -
Notice Of Appeal (Limited Civil Case)
California/Local County/San Diego/Civil/ -
Mediators Selection Form
California/Local County/San Diego/Civil/ -
Attachment-Additional Protected Persons
California/Local County/San Diego/Civil/ -
Ex Parte Request And Order To Terminate Restraining Order
California/Local County/San Diego/Civil/ -
Declaration Of Physician Re Change Of Gender
California/Local County/San Diego/Civil/ -
Judgment And Notice Of Entry Of Tribal Court Money Judgment
California/Local County/San Diego/Civil/ -
Petition For Writ Of Habeas Corpus Re Quarantine Detention
California/2 Local County/San Diego/Civil/ -
Application And Order Declaring Information On Affidavit Of Voter Registration
California/Local County/San Diego/Civil/ -
Judgment Checklist-Default By Clerk (Civil)
California/Local County/San Diego/Civil/ -
Stipulated Agreement For Agreement For Judgment Or Dismissal (Unlawful Detainer)
California/Local County/San Diego/Civil/ -
Request For Clerks Certificate Re Costs And Certification
California/Local County/San Diego/Civil/ -
Amendment To Complaint
California/Local County/San Diego/Civil/ -
Application To Serve As Mediator And Or Arbitrator
California/Local County/San Diego/Civil/ -
Stipulation For Discovery Determination Following Informal Discovery Conference
California/2 Local County/San Diego/Civil/ -
Stipulation For Court Commissioner To Act As Temporary Judge For All Purposes
California/2 Local County/San Diego/Civil/ -
Request For Payment Of Trust Funds
California/Local County/San Diego/Civil/ -
Unlawful Detainer Complaint Packet Information
California/Local County/San Diego/Civil/ -
Joint Request For Assigned Judge Mediation
California/Local County/San Diego/Civil/ -
Unlawful Detainer Answer Packet Information
California/Local County/San Diego/Civil/
Form Preview
Contact Us
Success: Your message was sent.
Thank you!




