Last updated: 7/11/2019
Multifamily Insurance Benefit Claim (Payment Information Treasury Financial Communication System) {HUD-1044-D}
Start Your Free Trial $ 13.99What you get:
- Instant access to fillable Microsoft Word or PDF forms.
- Minimize the risk of using outdated forms and eliminate rejected fillings.
- Largest forms database in the USA with more than 80,000 federal, state and agency forms.
- Download, edit, auto-fill multiple forms at once in MS Word using our Forms Workflow Ribbon
- Trusted by 1,000s of Attorneys and Legal Professionals
Description
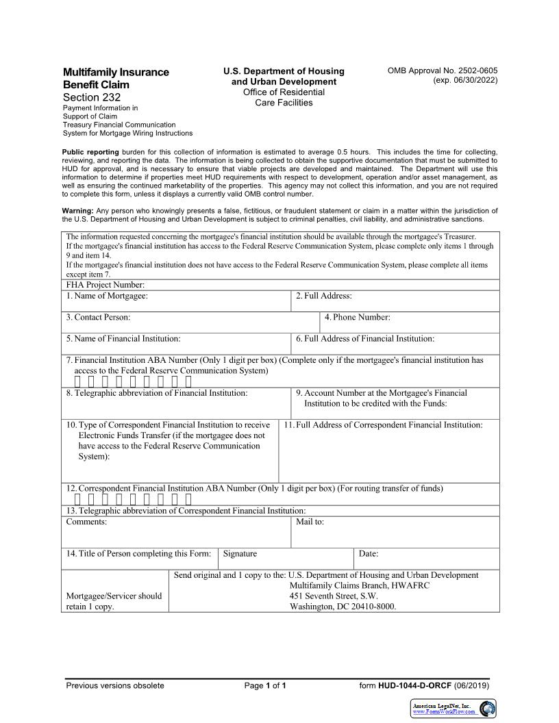
Previous versions obsolete Page 1 of 1 form HUD-1044-D-ORCF (06/2019) Multifamily Insurance Benefit Claim Section 232 Payment Information in Support of Claim Treasury Financial Communication System for Mortgage Wiring Instructions U.S. Department of Housing and Urban Development Office of Residential Care Facilities OMB Approval No. 2502 - 0605 (exp. 06/30/2022) Public reporting burden for this collection of information is estimated to average 0.5 hours. This includes the time for collecting, reviewing, and reporting the data. The information is being collected to obtain the supportive documentation that must be submitted to HUD for approval, and is necessary to ensure that viable projects are developed and maintained. The Department will use this information to determine if properties meet HUD requirements with respect to development, operation and/or asset management, as well as ensuring the continued marketability of the properties. This agency may not collect this information, and you are not required to complete this form, unless it displays a currently valid OMB control number. Warning: Any person who knowingly presents a false, fictitious, or fraudulent statement or claim in a matter within the jurisdiction of the U.S. Department of Housing and Urban Development is subject to criminal penalties, civil liability, and administrative sanctions. The information requested concerning the mortgagee's financial institution should be available through the mortgagee's Treasurer. If the mortgagee's financial institution has access to the Federal Reserve Communication System, please complete only items 1 through 9 and item 14. If the mortgagee's financial institution does not have access to the Federal Reserve Communication System, please complete all items except item 7. FHA Project Number: 1. Name of Mortgagee : 2. Full Address : 3. C ontact Person: 4. Phone Number: 5. Name of Financial Institution : 6. Full Address of Financial Institution : 7. Financial Institution ABA Number (Only 1 digit per box) (Complete only if the mortgagee's financial institution has access to the Federal Reserve Communication System) 8. Telegraphic abbreviation of Financial Institution : 9. Account Number at the Mortgagee's Financial Institution to be credited with the Funds: 10. Type of Correspondent Financial Institution to receive Electronic Funds Transfer (if the mortgagee does not have access to the Federal Reserve Communication System): 11. Full Address of Correspondent Financial Institution : 12. Correspondent Financial Institution ABA Number (Only 1 digit per box) (For routing transfer of funds) 13. Telegraphic abbreviation of Correspondent Financial Institution : Comments: Mail to: 14. Title of Person completing this Form : Signature Date : Mortgagee/Servicer should retain 1 copy. Send original and 1 copy to the: U.S. Department of Housing and Urban Development Multifamily Claims Branch, HWAFRC 451 Seventh Street, S.W. Washington, DC 20410 - 8000. American LegalNet, Inc. www.FormsWorkFlow.com
Related forms
-
Settlement Statement Optional Form For Transactions Without Sellers
Official Federal Forms/US Department Of Housing And Urban Development/ -
Settlement Statement
Official Federal Forms/US Department Of Housing And Urban Development/ -
ACH Debit Authorization
Official Federal Forms/US Department Of Housing And Urban Development/ -
Advice Of Allotment
Official Federal Forms/US Department Of Housing And Urban Development/ -
Assignment-Assumption Agreement
Official Federal Forms/US Department Of Housing And Urban Development/ -
Assistance Award-Amendment
Official Federal Forms/US Department Of Housing And Urban Development/ -
Selection Roster
Official Federal Forms/US Department Of Housing And Urban Development/ -
Statement
Official Federal Forms/US Department Of Housing And Urban Development/ -
Authority For Release Of Information
Official Federal Forms/US Department Of Housing And Urban Development/ -
Classified Document Destruction Certificate
Official Federal Forms/US Department Of Housing And Urban Development/ -
Correspondence Change Request
Official Federal Forms/US Department Of Housing And Urban Development/ -
Statement
Official Federal Forms/US Department Of Housing And Urban Development/ -
Status Report On Actions Promised On GAO Report Recommendations
Official Federal Forms/US Department Of Housing And Urban Development/ -
Deposit Agreement
Official Federal Forms/US Department Of Housing And Urban Development/ -
Disposition Report
Official Federal Forms/US Department Of Housing And Urban Development/ -
Denial Of Reasonable Accomodation Request
Official Federal Forms/US Department Of Housing And Urban Development/ -
Document Control Register
Official Federal Forms/US Department Of Housing And Urban Development/ -
Document Control Register
Official Federal Forms/US Department Of Housing And Urban Development/ -
Excess Records Files And Publications Clean-Up Report
Official Federal Forms/US Department Of Housing And Urban Development/ -
Field Issue Resolution System Input Record
Official Federal Forms/US Department Of Housing And Urban Development/ -
Grant Award-Amendment
Official Federal Forms/US Department Of Housing And Urban Development/ -
Classified Document Receipt
Official Federal Forms/US Department Of Housing And Urban Development/ -
Liquidation Schedule (GNMA)
Official Federal Forms/US Department Of Housing And Urban Development/ -
Articles Of Incorporation Of Association
Official Federal Forms/US Department Of Housing And Urban Development/ -
Residual Receipts Note Nonprofit Mortgagors
Official Federal Forms/US Department Of Housing And Urban Development/ -
Cash Receipt Voucher
Official Federal Forms/US Department Of Housing And Urban Development/ -
Chronology Of Actions
Official Federal Forms/US Department Of Housing And Urban Development/ -
Clearance Log
Official Federal Forms/US Department Of Housing And Urban Development/ -
FHA Legal Requirements For Closing
Official Federal Forms/US Department Of Housing And Urban Development/ -
By-Laws Of Association
Official Federal Forms/US Department Of Housing And Urban Development/ -
Request For Permission To Commence Construction Prior To Initial Endorsement
Official Federal Forms/US Department Of Housing And Urban Development/ -
Travel Voucher Attachment
Official Federal Forms/US Department Of Housing And Urban Development/ -
Regional Fund Assignment
Official Federal Forms/US Department Of Housing And Urban Development/ -
Loan Contract And Trust Agreement (Low-And Moderate-Income Sponsor Assistance)
Official Federal Forms/US Department Of Housing And Urban Development/ -
Record Of Imprest Fund Emergency Salary Payment
Official Federal Forms/US Department Of Housing And Urban Development/ -
Record Of Employee Interview
Official Federal Forms/US Department Of Housing And Urban Development/ -
Bond Guaranteeing Sponsors Performance
Official Federal Forms/US Department Of Housing And Urban Development/ -
Overtime Authorization
Official Federal Forms/US Department Of Housing And Urban Development/ -
Newly Insured Case Binder Shipping List
Official Federal Forms/US Department Of Housing And Urban Development/ -
Record Of Clearances
Official Federal Forms/US Department Of Housing And Urban Development/ -
Report Of Investigation
Official Federal Forms/US Department Of Housing And Urban Development/ -
Miscellaneous Disbursement Voucher
Official Federal Forms/US Department Of Housing And Urban Development/ -
Accomodation Request For Persons With Disabilites
Official Federal Forms/US Department Of Housing And Urban Development/ -
Model Form Mortgagees Title Evidence
Official Federal Forms/US Department Of Housing And Urban Development/ -
Mortgagors Oath
Official Federal Forms/US Department Of Housing And Urban Development/ -
Multifamily Insurance Benefit Claim (Payment Information Treasury Financial Communication System)
Official Federal Forms/US Department Of Housing And Urban Development/ -
Project Mortgage Servicing Control Record
Official Federal Forms/US Department Of Housing And Urban Development/ -
Property Insurance Requirements
Official Federal Forms/US Department Of Housing And Urban Development/ -
Personal Undertaking
Official Federal Forms/US Department Of Housing And Urban Development/ -
Off-Site Bond
Official Federal Forms/US Department Of Housing And Urban Development/ -
Receipt
Official Federal Forms/US Department Of Housing And Urban Development/ -
Regulatory Agreement For Non Profit And Public Mortgagors
Official Federal Forms/US Department Of Housing And Urban Development/ -
Requisition For Supplies Equipment Forms Publications And Procurement
Official Federal Forms/US Department Of Housing And Urban Development/ -
Request For Endorsement Of Credit Instrument Certificate Of Mortgagee Mortgagor
Official Federal Forms/US Department Of Housing And Urban Development/ -
Good Faith Estimate
Official Federal Forms/US Department Of Housing And Urban Development/ -
Corporate Guaranty Agreement
Official Federal Forms/US Department Of Housing And Urban Development/ -
Time Limit And Mentoring Agreement
Official Federal Forms/US Department Of Housing And Urban Development/ -
Custodians Certification For Construction Securities
Official Federal Forms/US Department Of Housing And Urban Development/ -
Graduated Payment Mortgage Or Growing Mortgage Pool Or Loan Package Composition
Official Federal Forms/US Department Of Housing And Urban Development/ -
Issuers Monthly Summary Report
Official Federal Forms/US Department Of Housing And Urban Development/ -
Prospectus GNMA I Single-Family Mortgages
Official Federal Forms/US Department Of Housing And Urban Development/ -
Prospectus GNMA II Growing Equity Mortgages
Official Federal Forms/US Department Of Housing And Urban Development/ -
Prospectus GNMA I
Official Federal Forms/US Department Of Housing And Urban Development/ -
Issuers Monthly Accounting Report (GNMA Mortgage-Backed Securities Program)
Official Federal Forms/US Department Of Housing And Urban Development/ -
IPIA Request For Labels (Order Control)
Official Federal Forms/US Department Of Housing And Urban Development/ -
Projected Pool Report (Guaranty Program-GNMA Mortgage-Backed Securities)
Official Federal Forms/US Department Of Housing And Urban Development/ -
Prospectus GNMA II
Official Federal Forms/US Department Of Housing And Urban Development/ -
Issuers Monthly Serial Notes Accounting Schedule (GNMA Mortgage-Backed Securities Program)
Official Federal Forms/US Department Of Housing And Urban Development/ -
Prospectus GNMA I
Official Federal Forms/US Department Of Housing And Urban Development/ -
Prospectus Supplemental To Ginnie Mae II Home Equity Conversion Mortgage-Backed-Securities
Official Federal Forms/US Department Of Housing And Urban Development/ -
Prospectus Supplement-Ginnie Mae II Home Equity Conversion Mortgage-Backed Securities
Official Federal Forms/US Department Of Housing And Urban Development/ -
Reasonable Accommodation Information Reporting Form
Official Federal Forms/US Department Of Housing And Urban Development/ -
Issuers Monthly Remittance Advice
Official Federal Forms/US Department Of Housing And Urban Development/ -
Prospectus GNMA I Construction And Loan Securities
Official Federal Forms/US Department Of Housing And Urban Development/ -
Issuers Monthly Serial Note Remittance Advice
Official Federal Forms/US Department Of Housing And Urban Development/ -
Prospectus GNMA I Graduated Payment Mortgages
Official Federal Forms/US Department Of Housing And Urban Development/ -
Prospectus GNMA I Growing Equity Mortgages
Official Federal Forms/US Department Of Housing And Urban Development/ -
Certificate Of Sanitization (HUD Only)
Official Federal Forms/US Department Of Housing And Urban Development/ -
HUD Records Destruction Form (Housing)
Official Federal Forms/US Department Of Housing And Urban Development/ -
Certification And Agreement
Official Federal Forms/US Department Of Housing And Urban Development/ -
Release Of Security Interest
Official Federal Forms/US Department Of Housing And Urban Development/ -
Multifamily Insurance Benefit Claim
Official Federal Forms/US Department Of Housing And Urban Development/ -
Prospectus GNMA II Adjustable Rate Mortgages
Official Federal Forms/US Department Of Housing And Urban Development/ -
Prospectus GNMA II Single-Family Mortgages
Official Federal Forms/US Department Of Housing And Urban Development/ -
Request For Release Of Documents
Official Federal Forms/US Department Of Housing And Urban Development/
Form Preview
Contact Us
Success: Your message was sent.
Thank you!




