Last updated: 6/16/2020
Inventory {PC-440}
Start Your Free Trial $ 15.99What you get:
- Instant access to fillable Microsoft Word or PDF forms.
- Minimize the risk of using outdated forms and eliminate rejected fillings.
- Largest forms database in the USA with more than 80,000 federal, state and agency forms.
- Download, edit, auto-fill multiple forms at once in MS Word using our Forms Workflow Ribbon
- Trusted by 1,000s of Attorneys and Legal Professionals
Description
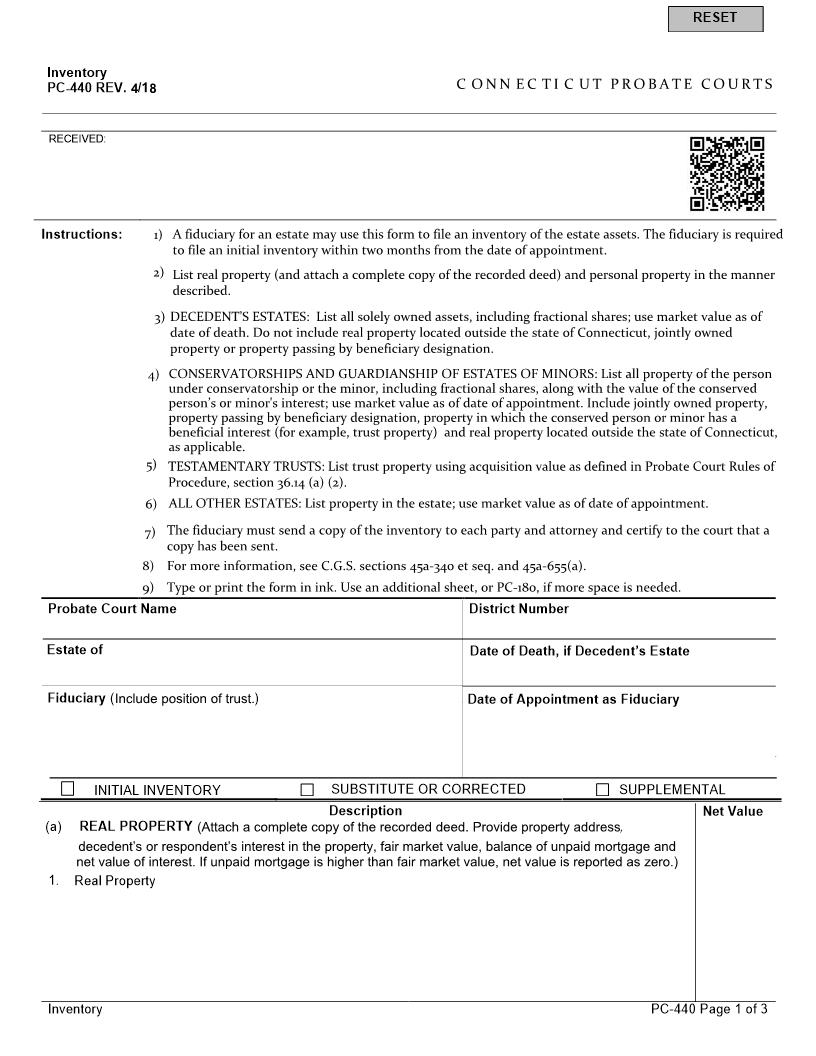
CONNECTICUT Inventory PC-440 REV. /1 Inventory PC - 440 Page 1 of 3 RECEIVED: Instructions: ) DECEDENT222S ESTATES: List all solely owned assets, including fractional shares; use market value as ofdate of death. Do not include real property located outside the state of Connecticut, jointly ownedproperty or property passing by beneficiary designation. 4) 5) 6) The fiduciary must send a copy of the inventory to each party and attorney and certify to the court that t. ) For more information, see C.G.S. section 45a-340 et seq. ) Type or print the form in ink. Use an additional sheet, or PC-180, if more space is needed. Estate of Date of Death, if Decedent222s Estate Fiduciary () Date of Appointment as Fiduciary INITIAL INVENTORY SUBSTITUTE OR CORRECTED SUPPLEMENTAL Net Value Description (a) REAL PROPERTY , 1. Real Property 3) ) ) American LegalNet, Inc. www.FormsWorkFlow.com PROBATE COURTS Inventory PC-440 REV. /1 Inventory PC - 440 Page 2 of 3 Description Net Value 2. Bank Accounts () 3. Stocks and Bonds () 4. Other Personal Property (.) 5. Total from Additional Sheets Attached, if any TOTAL For Use in Conservatorship Matters (Voluntary or Involuntary) 1. Real Property Located Outside Connecticut Description Total Market Value Conserved Person222s Interest (b) PERSONAL PROPERTY 1.Motor Vehicle(s) () American LegalNet, Inc. www.FormsWorkFlow.com CONNECTICUT Inventory PC-440 REV. /1 Inventory PC - 440 Page 3 of 3 The representations contained herein are made under penalty of false statement. Signature of Fiduciary Type or Print Name Date Signature of Fiduciary Type or Print Name Date CERTIFICATION I hereby certify that I sent a copy of this inventory to the following people as required by Probate Court Rules of Procedure, section 30.12: Signature of fiduciary or attorney Jointly Owned Personal Property Description 2. Conserved Person222s Interest American LegalNet, Inc. www.FormsWorkFlow.com
Related forms
-
Affidavit In Proof Of Will And Or Codicil
Connecticut/Statewide/Probate/ -
Application To Sell Or Mortgage Real Property
Connecticut/Statewide/Probate/ -
Appointment Of Judge Of Probate As Agent For Service By Non Resident Fiduciary
Connecticut/Statewide/Probate/ -
Cover Sheet Administration Account Decedents Estate
Connecticut/Statewide/Probate/ -
Decedents Estate Administration Account
Connecticut/Statewide/Probate/ -
Fiduciarys Periodic Or Final Account
Connecticut/Statewide/Probate/ -
Notice To Creditors To Present Claims
Connecticut/Statewide/Probate/ -
Request For Order Of Distribution
Connecticut/Statewide/Probate/ -
Conservators Report
Connecticut/Statewide/Probate/ -
Physicians Evaluation Conservatorship
Connecticut/Statewide/Probate/ -
Second Sheet
Connecticut/Statewide/Probate/ -
General Waiver
Connecticut/Statewide/Probate/ -
Request Order Waiver Of Fees - Petitioner
Connecticut/Statewide/Probate/ -
Guardians Report Guardianship Of The Person Of A Minor
Connecticut/Statewide/Probate/ -
Receipt And Release Of Guardian Of Estate
Connecticut/Statewide/Probate/ -
Physicians Certificate Involuntary Commitment Alcohol And Or Drug Dependency
Connecticut/Statewide/Probate/ -
Probable Cause Hearing Request
Connecticut/Statewide/Probate/ -
Affidavit Re Change Of Name (Minor)
Connecticut/Statewide/Probate/ -
Certification Of Mailing Of Document By Party
Connecticut/Statewide/Probate/ -
Verification Re Restricted Account
Connecticut/Statewide/Probate/ -
Special Appearance Of Service Memebr
Connecticut/Statewide/Probate/ -
Request Re Withdrawal Of Funds From Restricted Account
Connecticut/Statewide/Probate/ -
Financial Report Decedents Estate
Connecticut/Statewide/Probate/ -
Motion For Continuance
Connecticut/Statewide/Probate/ -
Probate Bond
Connecticut/Statewide/Probate/ -
Petition Access To Safe Deposit Box To Obtain Will Cemetary Deed
Connecticut/Statewide/Probate/ -
Assessment Team Report Guardianship Of Person With Intellectual Disability
Connecticut/Statewide/Probate/ -
DDS Professional Or Assessment Of Person With Intellectual Disability
Connecticut/Statewide/Probate/ -
Guardians Report Guardianship Of Person With Intellectual Disability
Connecticut/Statewide/Probate/ -
Petition For Certificate Releasing Connecticut Succession And Estate Tax Liens
Connecticut/Statewide/Probate/ -
Psychologists Report Placement Of Person With Intellectual Disability{PC-772}
Connecticut/Statewide/Probate/ -
Waiver Of Right To Hearing Re Account
Connecticut/Statewide/Probate/ -
Authorization For The Release Of Information Re A Firearm
Connecticut/Statewide/Probate/ -
Petition For Certificate Releasing Liens
Connecticut/Statewide/Probate/ -
Motion For Referral To Mediation Panel
Connecticut/Statewide/Probate/ -
Petition Access Jointly Owned Assets In Safe Deposit Box
Connecticut/Statewide/Probate/ -
Petition To Terminate Tenancy Or Lease
Connecticut/Statewide/Probate/ -
Petition For Provisional Order Of Transfer Of Conservatorship
Connecticut/Statewide/Probate/ -
Petition For Provisional Order Accepting Transfer Of Conservatorship
Connecticut/Statewide/Probate/ -
Psychologists Evaluation
Connecticut/Statewide/Probate/ -
Motion To Transfer File Guardianship Of Person Estate Of A Minor
Connecticut/Statewide/Probate/ -
Petition Special Immigrant Juvenile Finding
Connecticut/Statewide/Probate/ -
Agency Or Department Financial Affidavit Identified Adoption
Connecticut/Statewide/Probate/ -
Agreement Of Adoption
Connecticut/Statewide/Probate/ -
Motion To Transfer File Person With Intellectual Disability
Connecticut/Statewide/Probate/ -
Petition For Release From Confinement
Connecticut/Statewide/Probate/ -
Appeal Of Order Of Isolation Quarantine Or Vaccination
Connecticut/Statewide/Probate/ -
Acceptance Of Fiduciary Appointment
Connecticut/Statewide/Probate/ -
Initial Acceptance Of Trust Testamentary Trustee
Connecticut/Statewide/Probate/ -
Petition For Appointment Of Conservator
Connecticut/Statewide/Probate/ -
Request For Probate Cause Hearing Mentally Ill Child
Connecticut/Statewide/Probate/ -
Motion And Agreement To Mediate
Connecticut/Statewide/Probate/ -
Petition Appointment Of Coguardian Of The Person Of A Minor
Connecticut/Statewide/Probate/ -
Petition Appointment Of Guardian Of Person Where Parents Are Deceased
Connecticut/Statewide/Probate/ -
Application Or Appointment Of Temporary Guardian
Connecticut/Statewide/Probate/ -
Petition Estate Examiner For Limited Purpose
Connecticut/Statewide/Probate/ -
Physicians Certificate Immediate Temporary Custody
Connecticut/Statewide/Probate/ -
Request Order Waiver Of Fees Other Than Petitioner{PC-184A}
Connecticut/Statewide/Probate/ -
Schedule A Proposed Distribution Final Financial Report
Connecticut/Statewide/Probate/ -
Schedule A Proposed Distribution Final Financial Report Trust
Connecticut/Statewide/Probate/ -
Petition For Order Authorizing Psychiatric Medication Treatment
Connecticut/Statewide/Probate/ -
Petition Emancipation Of Minor
Connecticut/Statewide/Probate/ -
Request Annual Review Hearing Involuntary Commitment
Connecticut/Statewide/Probate/ -
Petition For Involuntary Recommitment Alcohol And Or Drug Dependency
Connecticut/Statewide/Probate/ -
Petition For Involuntary Commitment Alcohol And Or Drug Dependency
Connecticut/Statewide/Probate/ -
Petition For Involuntary Commitment Of Person With Psychiatric Disabilities
Connecticut/Statewide/Probate/ -
Application Commitment Of Mentally Ill Child
Connecticut/Statewide/Probate/ -
Petition For Authority To Manage Finances Of A Protected Person
Connecticut/Statewide/Probate/ -
Petition Of Voluntary Guardian Age 18 To 20
Connecticut/Statewide/Probate/ -
Petition Authority To Consent To Psychiatric Medication Treatment
Connecticut/Statewide/Probate/ -
Petition Appointment Of Special Limited Conservator WIth Authority To Consent To Psychiatric Medication
Connecticut/Statewide/Probate/ -
Petition For Appointment Of Conservator Of The Estate For Non Domiciliary
Connecticut/Statewide/Probate/ -
Application Declaration Of Insolvent Estate
Connecticut/Statewide/Probate/ -
Application Sterilization Of Adult
Connecticut/Statewide/Probate/ -
Application Placement Of Person With Mental Retardation
Connecticut/Statewide/Probate/ -
Motion To Transfer File Conservatorship Matter
Connecticut/Statewide/Probate/ -
Physicians Certificate Involuntary Commitment Annual Review Person With Psychiatric Disabilities
Connecticut/Statewide/Probate/ -
Confidential Information Petition Administration Or Probate Of Will
Connecticut/1 Statewide/Probate/ -
Petition Order Authorizing Shock Therapy
Connecticut/Statewide/Probate/ -
Resignation Of Guardian Or Temporary Custodian
Connecticut/Statewide/Probate/ -
Petition Of Parent As Guardian Of Minor
Connecticut/Statewide/Probate/ -
Inventory
Connecticut/Statewide/Probate/ -
Petition Ancillary Probate Of Will
Connecticut/1 Statewide/Probate/ -
Petition Estate Examiner For Limited Purpose
Connecticut/1 Statewide/Probate/ -
Affidavit In Lieu Of Administration
Connecticut/1 Statewide/Probate/ -
Petition For Appointment Of Conservator
Connecticut/1 Statewide/Probate/ -
Petition For Voluntary Reprsentation By Conservator
Connecticut/1 Statewide/Probate/ -
Petition Appointment Of Temporary Conservator
Connecticut/1 Statewide/Probate/ -
Petition Removal Of Guardian
Connecticut/1 Statewide/Probate/ -
Petition Immediate Temporary Custody
Connecticut/1 Statewide/Probate/ -
Petition Temporary Custody
Connecticut/1 Statewide/Probate/ -
Application Or Appointment Of Temporary Guardian
Connecticut/1 Statewide/Probate/ -
Petition Appointment Of Permanent Guardian
Connecticut/1 Statewide/Probate/ -
Petition Of Parent As Guardian Of Minor
Connecticut/1 Statewide/Probate/ -
Petition Appointment Of Guardian Of Person Where Parents Are Deceased
Connecticut/1 Statewide/Probate/ -
Petition Appointment Of Coguardian Of The Person Of A Minor
Connecticut/1 Statewide/Probate/ -
Resignation Of Guardian Or Temporary Custodian
Connecticut/1 Statewide/Probate/ -
Petition Termination Of Parental Rights
Connecticut/1 Statewide/Probate/ -
Pettition Consent Termination Of Parental Rights And Relative Adoption
Connecticut/1 Statewide/Probate/ -
Petition Adoption
Connecticut/1 Statewide/Probate/ -
Petition For Change Of Name (Minor)
Connecticut/1 Statewide/Probate/ -
Petition For Change Of Name Adult
Connecticut/1 Statewide/Probate/ -
Petition For Appointment Of Conservator Of The Estate For Non Domiciliary
Connecticut/1 Statewide/Probate/ -
Petition Of Voluntary Guardian Age 18 To 20
Connecticut/1 Statewide/Probate/ -
Psychiatrists Report Voluntary Admission To Hospital
Connecticut/1 Statewide/Probate/ -
Petition For Guardian Ad Litem Release Of Information
Connecticut/1 Statewide/Probate/ -
Affidavit Birth Parent Post Birth Counseling Identified Adoption
Connecticut/1 Statewide/Probate/ -
Guardianship Statutory Parent Report Case Permanency Plan
Connecticut/1 Statewide/Probate/ -
Petition Appointment Of Temporary Limited Guardian Of Person With Intellectual Disability
Connecticut/1 Statewide/Probate/ -
Petition For Termination Of Involuntary Commitment Alcohol Drug Dependency
Connecticut/1 Statewide/Probate/ -
Petition To Confirm Gender Change Of Person Born Outisde Connecticut
Connecticut/1 Statewide/Probate/ -
Return Of Claims And List Notified Creditors
Connecticut/Statewide/Probate/ -
Landlords Inventory Of Possessions Of Deceased Tenant
Connecticut/Statewide/Probate/ -
Petition To Restore Right To Purchase Possess Or Transport A Firearm
Connecticut/Statewide/Probate/ -
Petition Support Allowance
Connecticut/Statewide/Probate/ -
Landlords Affidavit Possessions Of A Deceased Tenant
Connecticut/Statewide/Probate/ -
Affidavit For Filing Will - Not Submitted For Probate
Connecticut/Statewide/Probate/ -
Bond Waiver
Connecticut/Statewide/Probate/ -
Petition Determination Of Competency To Vote Person Under Conservatorship
Connecticut/Statewide/Probate/ -
Conservators Report Placement Or Request For Hearing On Placement
Connecticut/Statewide/Probate/ -
Petition Extension Of TIme To Pay Probate Fees
Connecticut/Statewide/Probate/ -
Financial Report Conservator Guardian
Connecticut/Statewide/Probate/ -
Financial Report Trust
Connecticut/Statewide/Probate/ -
Petition For Review Of DCF Permanency Plan For Child
Connecticut/Statewide/Probate/ -
Request For Review Modification Of Visitation
Connecticut/Statewide/Probate/ -
Application Or Appointment Of Guardian Of The Estate
Connecticut/Statewide/Probate/ -
Petition Appointment Of Guardian Of The Estate Compromise Of Claim
Connecticut/Statewide/Probate/ -
Custodians Affidavit Immediate Temporary Custody
Connecticut/Statewide/Probate/ -
Application Validation Of Foreign Adoption
Connecticut/Statewide/Probate/ -
Petition Determination Of Age Of Adopted Person
Connecticut/Statewide/Probate/ -
Affidavit Temporary Custody Removal Termination Or Adoption
Connecticut/Statewide/Probate/ -
Petition Determination Of Competency To Vote
Connecticut/Statewide/Probate/ -
Petition For Change Of Name (Minor)
Connecticut/Statewide/Probate/ -
Petition Action On A Probate Bond
Connecticut/Statewide/Probate/ -
Petition Authorizing DSS To Enter Premises Of Elderly
Connecticut/Statewide/Probate/ -
Agreeement Of Guardian Of Person With Intellectual Disability Financial Authority
Connecticut/1 Statewide/Probate/ -
Acceptance Of Appointment And Agreement Of Guardian Of Person With Intellectual Disability
Connecticut/1 Statewide/Probate/ -
Acceptance Of Appointment And Agreement Of Guardian Of Estate Of Minor
Connecticut/Statewide/Probate/ -
Acceptance Of Appointment And Agreement Of Conservator Of Person
Connecticut/1 Statewide/Probate/ -
Acceptance Of Appointment And Agreement Of Conservator Of Estate
Connecticut/1 Statewide/Probate/ -
Acknowledgment Of Receipt Of Specific Bequest
Connecticut/1 Statewide/Probate/ -
Affidavit Of Closing Of Estate
Connecticut/Statewide/Probate/ -
Affidavit Re Change Of Name (Adult)
Connecticut/Statewide/Probate/ -
Waiver Of Right To Hearing Re Financial Report
Connecticut/Statewide/Probate/ -
Request To Register Out Of State Conservatorship
Connecticut/Statewide/Probate/ -
Affidavit Appointment Of Commissioner Of Social Services As Conservator
Connecticut/Statewide/Probate/ -
Petition For Determination Continuance Of DCF Care Of Child
Connecticut/Statewide/Probate/ -
Petition Information For Emergency Health Or Medical Treatment
Connecticut/Statewide/Probate/ -
Petition For Voluntary Reprsentation By Conservator
Connecticut/Statewide/Probate/ -
Petition To Excuse Account Title 19 Terminate Conservatorship Of Estate
Connecticut/1 Statewide/Probate/ -
Petition For Appointment Of Conservator
Connecticut/Statewide/Probate/ -
Physicians Evaluation Commitment Of Mentally Ill Child
Connecticut/Statewide/Probate/ -
Petition Ancillary Probate Of Will
Connecticut/Statewide/Probate/ -
Petition Appointment Of Temporary Conservator
Connecticut/Statewide/Probate/ -
Request Attachments To Connecticut Estate Tax Return
Connecticut/Statewide/Probate/ -
Petition Guardianship Of Person With Intellectual Disability
Connecticut/Statewide/Probate/ -
Receipt Of Information Re Confidential Probate Proceedings (Childrens Matters)
Connecticut/Statewide/Probate/ -
Petition For Department Of Health To Issue Birth Certificate
Connecticut/Statewide/Probate/ -
Petition Judicial Commitment For The Treatment Of Tuberculosis
Connecticut/Statewide/Probate/ -
Petition Judicial Order Continuing A Prior Emergency Commitment For Treatment Of Tuberculosis
Connecticut/Statewide/Probate/ -
Petition Judicial Order Enforing Examination Of Respondent For Tuberculosis
Connecticut/Statewide/Probate/ -
Appearance Of Attorney
Connecticut/Statewide/Probate/ -
Affidavit In Lieu Of Administration To Settle Full Estate
Connecticut/Statewide/Probate/ -
Notice Of Intent To Register Conservatorship In Other State
Connecticut/Statewide/Probate/ -
Petition And Agreement Of Adult Adoption
Connecticut/Statewide/Probate/ -
Application Re Placement For Out Of State Adoption
Connecticut/Statewide/Probate/ -
Petition For Approval Of Issuance Of Marriage License To Minor Age 16 or 17
Connecticut/1 Statewide/Probate/ -
Petition For Award Of Custody Of The Remains Of A Decedent
Connecticut/Statewide/Probate/ -
Report Of Court Appointed Attorney
Connecticut/Statewide/Probate/ -
Report Of Court Appointed Guardian Ad Litem
Connecticut/Statewide/Probate/ -
Certificate Of Devise Descent Or Distribution
Connecticut/Statewide/Probate/ -
Beneficiaries Named In Will Not Submitted For Probate
Connecticut/Statewide/Probate/ -
Status Update Decedents Estate
Connecticut/Statewide/Probate/ -
Waiver Of Personal Or Abode Service
Connecticut/Statewide/Probate/ -
Adoption Data Sheet
Connecticut/Statewide/Probate/ -
Inventory Decedents Estates
Connecticut/1 Statewide/Probate/ -
Acceptance Of Appointment And Agreement Of Guardian Of The Person Of A Minor
Connecticut/1 Statewide/Probate/ -
Inventory Conservatorships
Connecticut/1 Statewide/Probate/ -
Inventory Testamentary Trusts
Connecticut/1 Statewide/Probate/ -
Cover Sheet Administration Account Conservator Guardian Trust
Connecticut/1 Statewide/Probate/ -
Inventory Guardians Of Estates Of Minors
Connecticut/1 Statewide/Probate/ -
Inventory Guardians Of Adults With Intellectual Disability With Authority To Manage Finances
Connecticut/1 Statewide/Probate/ -
Affidavit Re Occurrence Of Contingency For Appointment Of Coguardian(s)
Connecticut/Statewide/Probate/ -
Petition For Change Of Name Adult
Connecticut/Statewide/Probate/ -
Receipt Of Information Re A Confidential Probate Proceeding (Specific Childrens Matter)
Connecticut/Statewide/Probate/ -
Petition-Parentage (formerly Paternity) Claim
Connecticut/Statewide/Probate/ -
Petition Subpoena To Person Under Foreign Subpoena
Connecticut/Statewide/Probate/ -
Affidavit Foreign Subpoena
Connecticut/Statewide/Probate/ -
Petition Adoption
Connecticut/Statewide/Probate/ -
Petition Appointment Of Statutory Parent
Connecticut/Statewide/Probate/ -
Pettition Consent Termination Of Parental Rights And Relative Adoption
Connecticut/Statewide/Probate/ -
Petition Termination Of Parental Rights
Connecticut/Statewide/Probate/ -
Petition Removal Of Guardian
Connecticut/Statewide/Probate/ -
Petition Immediate Temporary Custody
Connecticut/Statewide/Probate/ -
Petition Temporary Custody
Connecticut/Statewide/Probate/ -
Petition Appointment Of Permanent Guardian
Connecticut/Statewide/Probate/ -
Petition Administration Or Probate Of Will
Connecticut/Statewide/Probate/ -
Affidavit In Lieu Of Administration
Connecticut/Statewide/Probate/ -
Petition To Remove Financial Hold
Connecticut/Statewide/Probate/ -
Complaint Form
Connecticut/Statewide/Probate/ -
Birth Mothers Financial Adoption
Connecticut/Statewide/Probate/ -
Invoice For Marshal Services
Connecticut/1 Statewide/Probate/ -
Adoptive Parents Financial Affidavit Identified Adoption
Connecticut/Statewide/Probate/ -
Panel Evaluation Sterilization Of Adult
Connecticut/Statewide/Probate/
Form Preview
Contact Us
Success: Your message was sent.
Thank you!




