California
Workers Comp
DLSE Forms
Last updated: 5/30/2015
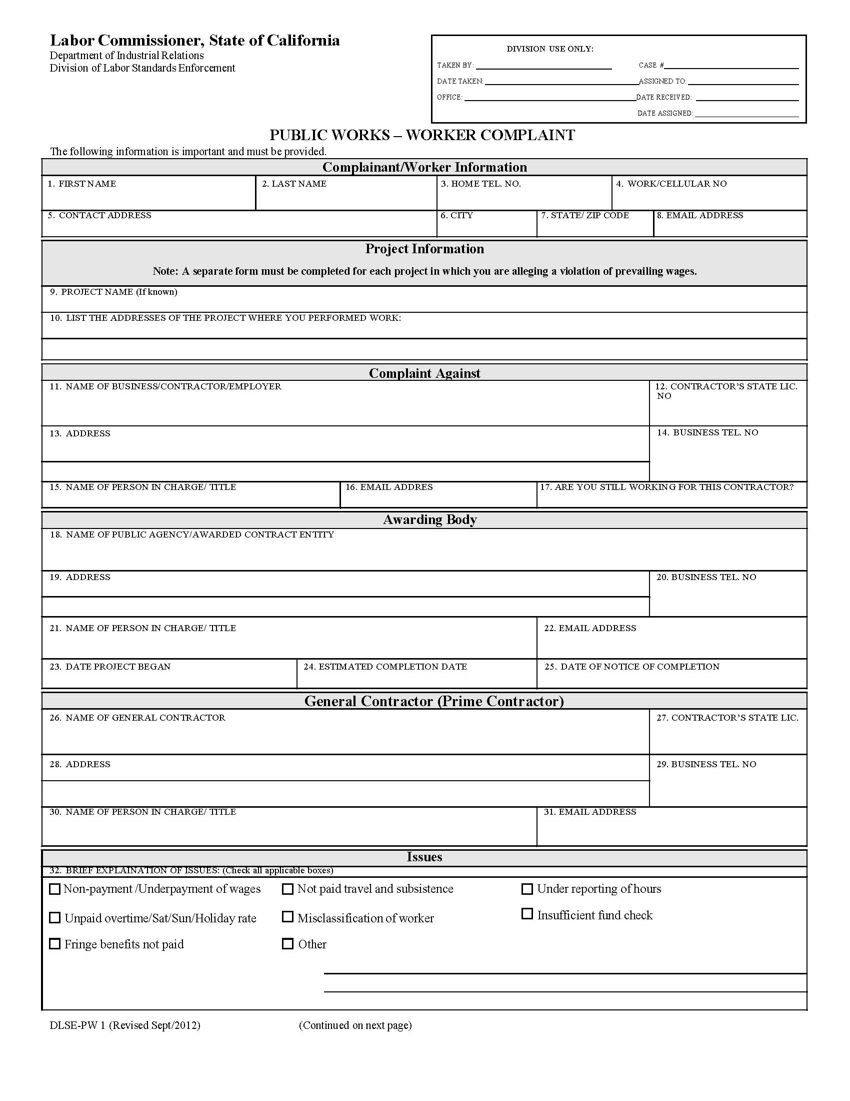
Public Works (Initial Report) {DLSE-PW 1}
Start Your Free Trial $ 13.99What you get:
- Instant access to fillable Microsoft Word or PDF forms.
- Minimize the risk of using outdated forms and eliminate rejected fillings.
- Largest forms database in the USA with more than 80,000 federal, state and agency forms.
- Download, edit, auto-fill multiple forms at once in MS Word using our Forms Workflow Ribbon
- Trusted by 1,000s of Attorneys and Legal Professionals
Description
DLSE-PW 1, PUBLIC WORKS – WORKER COMPLAINT, Any member of the public can file a public works complaint. The Labor Commissioner receives complaints from unions, labor management cooperation committees, public agencies, competitors, and other interested parties. Note: A separate form must be completed for each project in which you are alleging a violation of prevailing wages. (Revised Sept/2012). www.FormsWorkflow.com
Related forms
Our Products





