Last updated: 7/1/2016
Defendants Application For Stay Of Proceedings And Early Evaluation Conference {DAL-005}
Start Your Free Trial $ 13.99What you get:
- Instant access to fillable Microsoft Word or PDF forms.
- Minimize the risk of using outdated forms and eliminate rejected fillings.
- Largest forms database in the USA with more than 80,000 federal, state and agency forms.
- Download, edit, auto-fill multiple forms at once in MS Word using our Forms Workflow Ribbon
- Trusted by 1,000s of Attorneys and Legal Professionals
Description
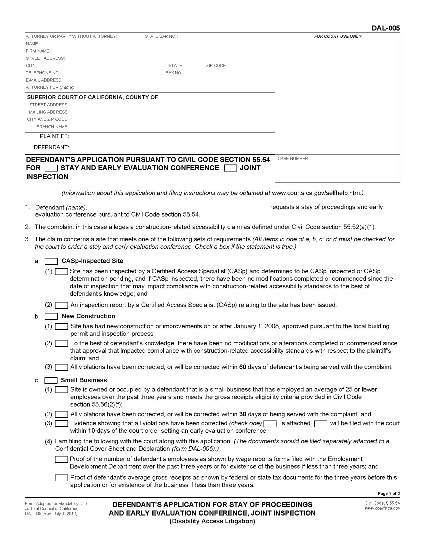
DAL-005, DEFENDANT'S APPLICATION FOR STAY OF PROCEEDINGS AND EARLY EVALUATION CONFERENCE, JOINT INSPECTION (Disability Access Litigation), this form is used to ask the court to put a hold on (stay) court proceedings about whether a building that you own or in which you are a tenant meets requirements for access of disabled persons and order the parties to participate in an early evaluation conference. Can also ask the court to order a joint inspection of the building. Form Adopted for Mandatory Use, Judicial Council of California DAL-005 [Rev. July 1, 2016] Civil Code, § 55.54, www.FormsWorkFlow.com





