Last updated: 7/9/2025
Notice Of Commencement
Start Your Free Trial $ 13.00What you get:
- Instant access to fillable Microsoft Word or PDF forms.
- Minimize the risk of using outdated forms and eliminate rejected fillings.
- Largest forms database in the USA with more than 80,000 federal, state and agency forms.
- Download, edit, auto-fill multiple forms at once in MS Word using our Forms Workflow Ribbon
- Trusted by 1,000s of Attorneys and Legal Professionals
Description
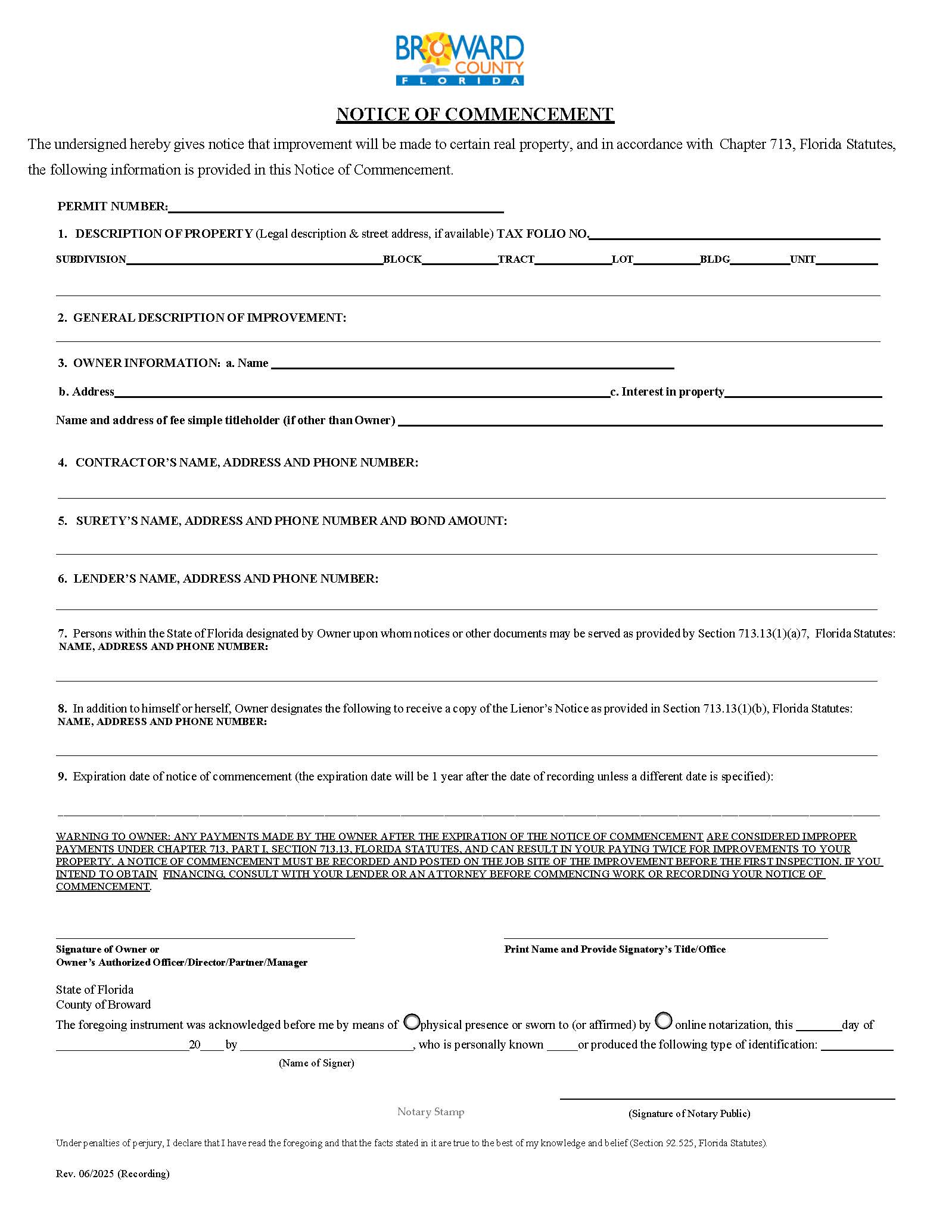
NOTICE OF COMMENCEMENT. This form is used in the state of Florida to announce the beginning of construction or improvements on a property. This notice, required under Chapter 713 of the Florida Statutes, must be recorded before any work begins or the first inspection occurs. The form provides detailed information about the project, including the property’s legal description and street address, the nature of the improvements, and the names and contact details of key parties involved—such as the property owner, contractor, surety (if a bond is posted), and lender. It also includes the names of individuals designated to receive legal notices related to liens and the expiration date of the notice itself. The document serves a critical purpose in Florida’s lien law system: it protects the rights of contractors, subcontractors, and material suppliers to file a lien if they are not paid for their work. It also warns property owners that payments made after the expiration of the notice may be deemed improper, potentially resulting in double payment. www.FormsWorkflow.com
Related forms
-
Affidavit And Motion To Tax Costs After Judgment
Florida/Local County/Broward/County Civil/ -
Complaint In Replevin
Florida/Local County/Broward/County Civil/ -
Motion To Vacate Default-To Set Aside Judgment-For Re Hearing
Florida/Local County/Broward/County Civil/ -
Order Taxing Costs After Judgment
Florida/Local County/Broward/County Civil/ -
Prejudgment Complaint In Replevin
Florida/Local County/Broward/County Civil/ -
Prejudgment Writ Of Replevin And Summons (Notice Of Pretrial Hearing)
Florida/Local County/Broward/County Civil/ -
Satisfaction Of Judgment
Florida/Local County/Broward/County Civil/ -
Voluntary Dismissal
Florida/Local County/Broward/County Civil/ -
Notice Of Appeal
Florida/Local County/Broward/County Civil/ -
Summons - Notice To Appear For Pretrial Conference [Remote Appearance]
Florida/2 Local County/Broward/County Civil/ -
Statement Of Claim (Auto Negligence)
Florida/Local County/Broward/County Civil/ -
Statement Of Claim (Motor Vehicle Repair)
Florida/Local County/Broward/County Civil/ -
Statement Of Claim (Security Deposit)
Florida/Local County/Broward/County Civil/ -
Statement Of Claim
Florida/Local County/Broward/County Civil/ -
Motion For Default And Default
Florida/Local County/Broward/County Civil/ -
Property Transfer Information Sheet
Florida/2 Local County/Broward/County Civil/ -
Declaration Of Domestic Partnership
Florida/2 Local County/Broward/County Civil/ -
Certificate Of Title Documentary Stamp Tax Remittance Form
Florida/2 Local County/Broward/County Civil/ -
Declaration Of Termination Of Domestic Partnership
Florida/2 Local County/Broward/County Civil/ -
Amended Declaration Of Domestic Partnership
Florida/2 Local County/Broward/County Civil/ -
Recording Transmittal
Florida/2 Local County/Broward/County Civil/ -
Declaration Of Domicile
Florida/2 Local County/Broward/County Civil/ -
Subpoena For Trial
Florida/Local County/Broward/County Civil/ -
Summons - Notice To Appear For Pretrial Conference
Florida/Local County/Broward/County Civil/ -
Execution (Writ)
Florida/Local County/Broward/County Civil/ -
Notarized Affidavit - Homestead Tax Deferral Application
Florida/Local County/Broward/County Civil/ -
Tax-Lien Certificate Transfer Endorement With Individual-Corporate Acknowledgment
Florida/Local County/Broward/County Civil/ -
Statement Of Claim (Tax Deed Sale - Filed Prior To 10-1-18)
Florida/Local County/Broward/County Civil/ -
Claim To Receive Surplus Proceeds Of Tax Deed Sale (Filed After 9-30-18)
Florida/Local County/Broward/County Civil/ -
Notice Of Termination (Of Notice Of Commencement)
Florida/2 Local County/Broward/County Civil/ -
Request To Remove Information From Official Records
Florida/2 Local County/Broward/County Civil/ -
Notice Of Commencement
Florida/2 Local County/Broward/County Civil/
Form Preview
Contact Us
Success: Your message was sent.
Thank you!




