Last updated: 5/6/2025
Application For Replacing The Qualifying Individual {13A-2a}
Start Your Free Trial $ 33.99What you get:
- Instant access to fillable Microsoft Word or PDF forms.
- Minimize the risk of using outdated forms and eliminate rejected fillings.
- Largest forms database in the USA with more than 80,000 federal, state and agency forms.
- Download, edit, auto-fill multiple forms at once in MS Word using our Forms Workflow Ribbon
- Trusted by 1,000s of Attorneys and Legal Professionals
Description
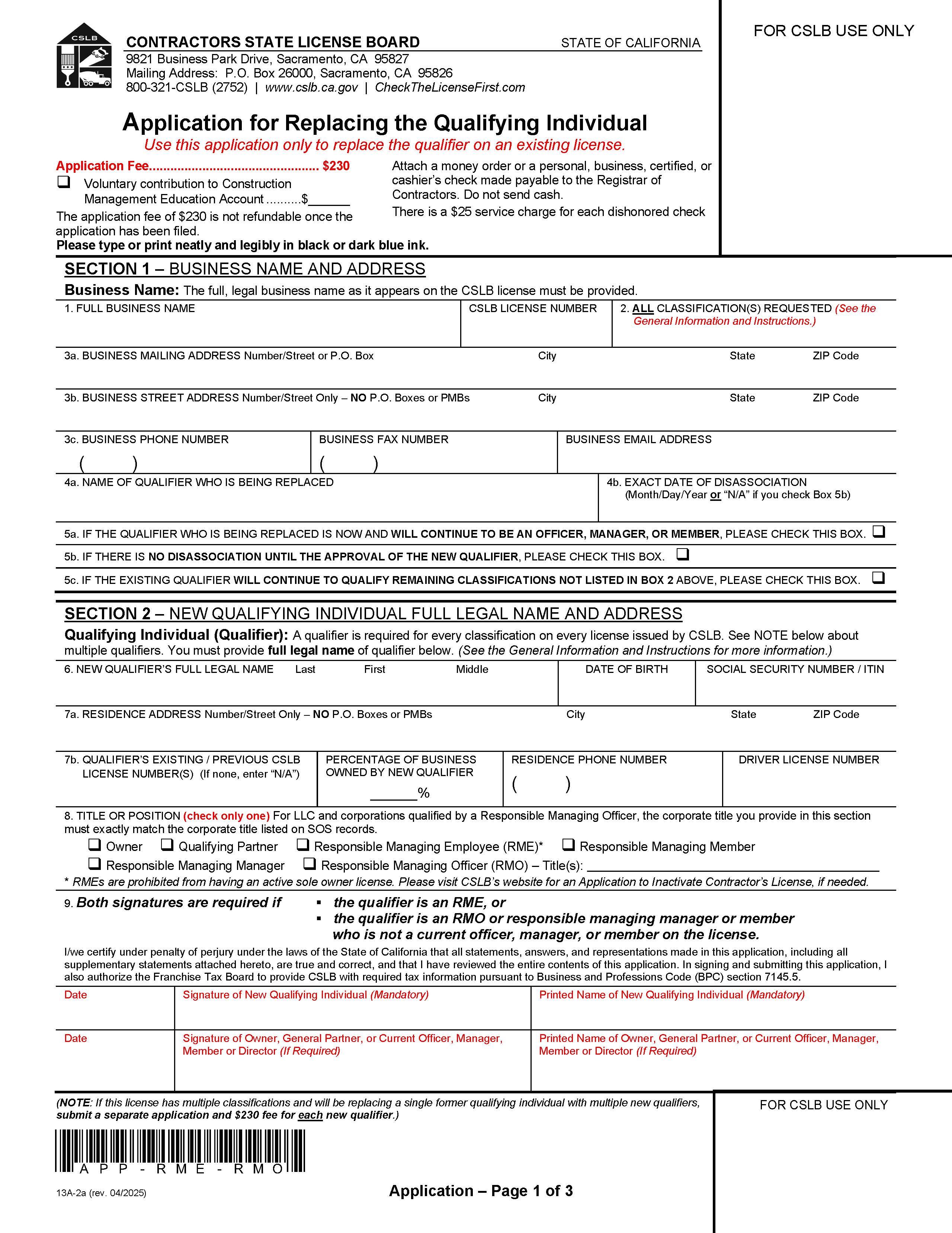
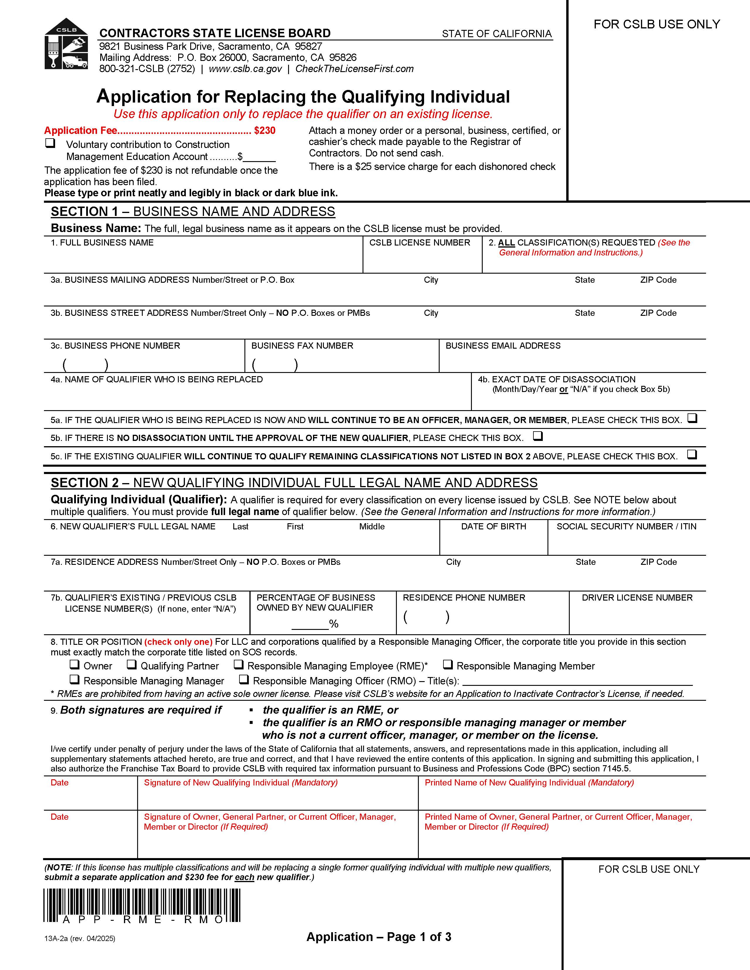
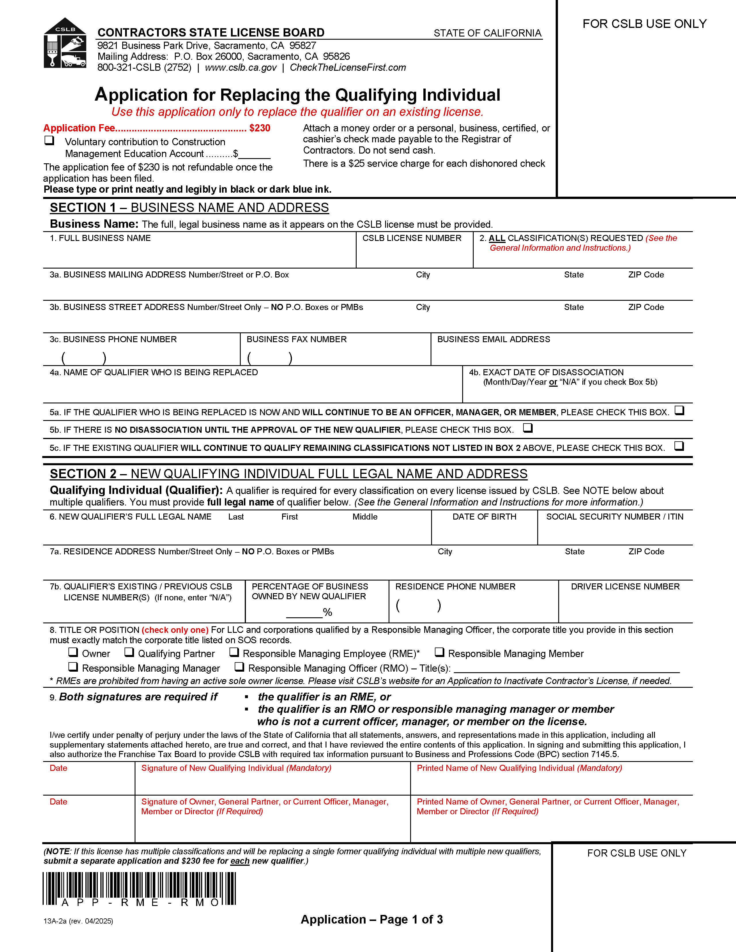
13A-2a - APPLICATION FOR REPLACING THE QUALIFYING INDIVIDUAL. Detailed instructions are also provided that address the content of the application section by section. Do not submit this General Information and Instructions portion with your completed application – the actual application begins immediately following this section on Application – Page 1 of 3 and includes the Certification of Work Experience. Before you submit your application, please review and be sure you have complied with the following items. • Enclose the nonrefundable $230 application fee with your completed application to replace the qualifier on an existing license. CSLB cannot process your application without the appropriate fee made payable to the Registrar of Contractors. (Business and Professions Code [BPC] section 7138 and Title 16, California Code of Regulations [T16 CCR] section 811) • You have 90 days after the disassociation of a qualifying individual in which to replace the qualifier on the license. The licensee or the qualifier is required to notify CSLB in writing within 90 days after the date of the disassociation. Failure to replace the qualifier within 90 days will result in the automatic suspension of the license or the removal of the classification. (BPC section 7068.2) • Your application may be returned to you if it is insufficient or incomplete. You must provide any missing information, make corrections, and resubmit your completed application to CSLB within 90 days after the date that it was returned to you, or your application will be deemed abandoned and become void. You cannot reinstate an abandoned application – you must submit a new application and $230 application fee if you wish to reapply. (T16 CCR section 813) • Your license must be in good standing (i.e., renewed active or inactive, but not expired or suspended) before the qualifying individual can be replaced. Complete the application and all accompanying forms legibly in black or dark blue ink or on CSLB’s website using the Easy-Fill feature. Forms completed in pencil will be returned to you. Please make sure that you and other authorized individuals sign and date the forms, where applicable. • Leave no space blank. If a particular question or request for information does not apply to you, write “N/A” in the blank space to indicate that the question has received your attention but that it is not applicable. • The “#” symbol is used interchangeably with the word “number” where space is limited on the application. • If you need additional copies of forms (e.g., Certification of Work Experience), please make copies of the blank forms before you begin or print additional copies from the CSLB website, under the Forms and Applications page. www.FormsWorkflow.com





