Last updated: 2/17/2025
Change Of Ownership Statement (Marin County) {BOE-502-AH}
Start Your Free Trial $ 17.99What you get:
- Instant access to fillable Microsoft Word or PDF forms.
- Minimize the risk of using outdated forms and eliminate rejected fillings.
- Largest forms database in the USA with more than 80,000 federal, state and agency forms.
- Download, edit, auto-fill multiple forms at once in MS Word using our Forms Workflow Ribbon
- Trusted by 1,000s of Attorneys and Legal Professionals
Description
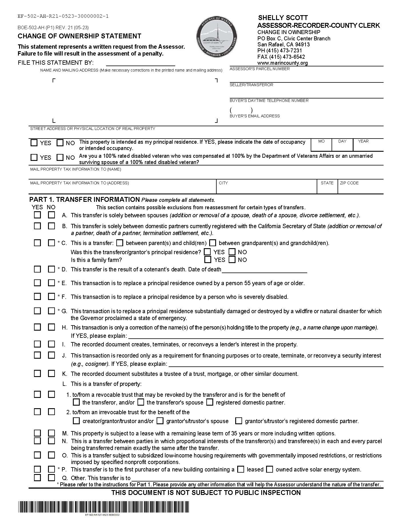
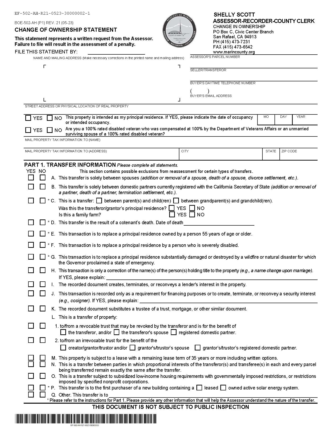
BOE-502-AH - CHANGE OF OWNERSHIP STATEMENT (MARIN COUNTY). This is a mandatory form required by the Assessor’s Office when a transfer of real property or a manufactured home subject to local property taxation occurs. The form serves to notify the county assessor of the change in ownership, which may trigger a reassessment of the property's taxable value. Failure to file this statement within the required timeframe may result in financial penalties. The document collects essential details about the transaction, including the names and contact information of the buyer and seller, the property's location, and whether it will be used as the buyer's principal residence. It also inquires about specific exclusions from reassessment, such as transfers between spouses, transfers between registered domestic partners, and certain family transfers. Additionally, the form gathers information about the type of transfer, such as purchase, inheritance, or foreclosure, and the financial terms, including purchase price, financing arrangements, and any seller concessions. The property’s characteristics, including its type, condition, and income-generating potential, are also reported. www.FormsWorkflow.com





