California
Local County
1 County Assessor
Last updated: 1/10/2024
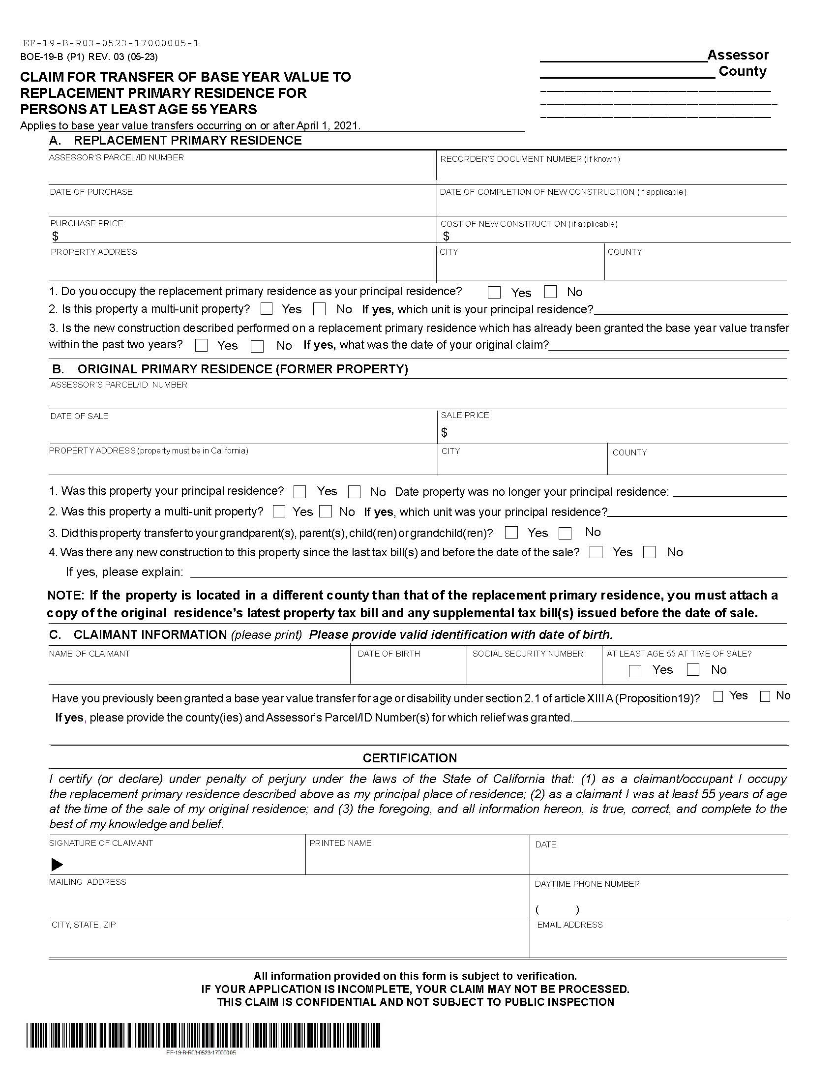
Claim For Transfer Of Base Year Value To Replacement Primary Residence For Person(s) At Least Age 55 Years {BOE-19-B}
Start Your Free Trial $ 14.00What you get:
- Instant access to fillable Microsoft Word or PDF forms.
- Minimize the risk of using outdated forms and eliminate rejected fillings.
- Largest forms database in the USA with more than 80,000 federal, state and agency forms.
- Download, edit, auto-fill multiple forms at once in MS Word using our Forms Workflow Ribbon
- Trusted by 1,000s of Attorneys and Legal Professionals
Description
BOE-19-B - CLAIM FOR TRANSFER OF BASE YEAR VALUE TO REPLACEMENT PRIMARY RESIDENCE FOR PERSONS AT LEAST AGE 55 YEARS. Beginning April 1, 2021, section 2.1(b) of article XIII A of the California Constitution, implemented by Revenue and Taxation Code section 69.6, allows an owner of a primary residence who is at least age 55 at time of sale of the original primary residence to transfer the factored base year value of their primary residence in California to a replacement primary residence that is located anywhere in California. www.FormsWorkflow.com
Related forms
Our Products





