Last updated: 3/13/2025
Scriveners Affidavit (Mistake Correction)
Start Your Free Trial $ 0.00What you get:
- Instant access to fillable Microsoft Word or PDF forms.
- Minimize the risk of using outdated forms and eliminate rejected fillings.
- Largest forms database in the USA with more than 80,000 federal, state and agency forms.
- Download, edit, auto-fill multiple forms at once in MS Word using our Forms Workflow Ribbon
- Trusted by 1,000s of Attorneys and Legal Professionals
Description
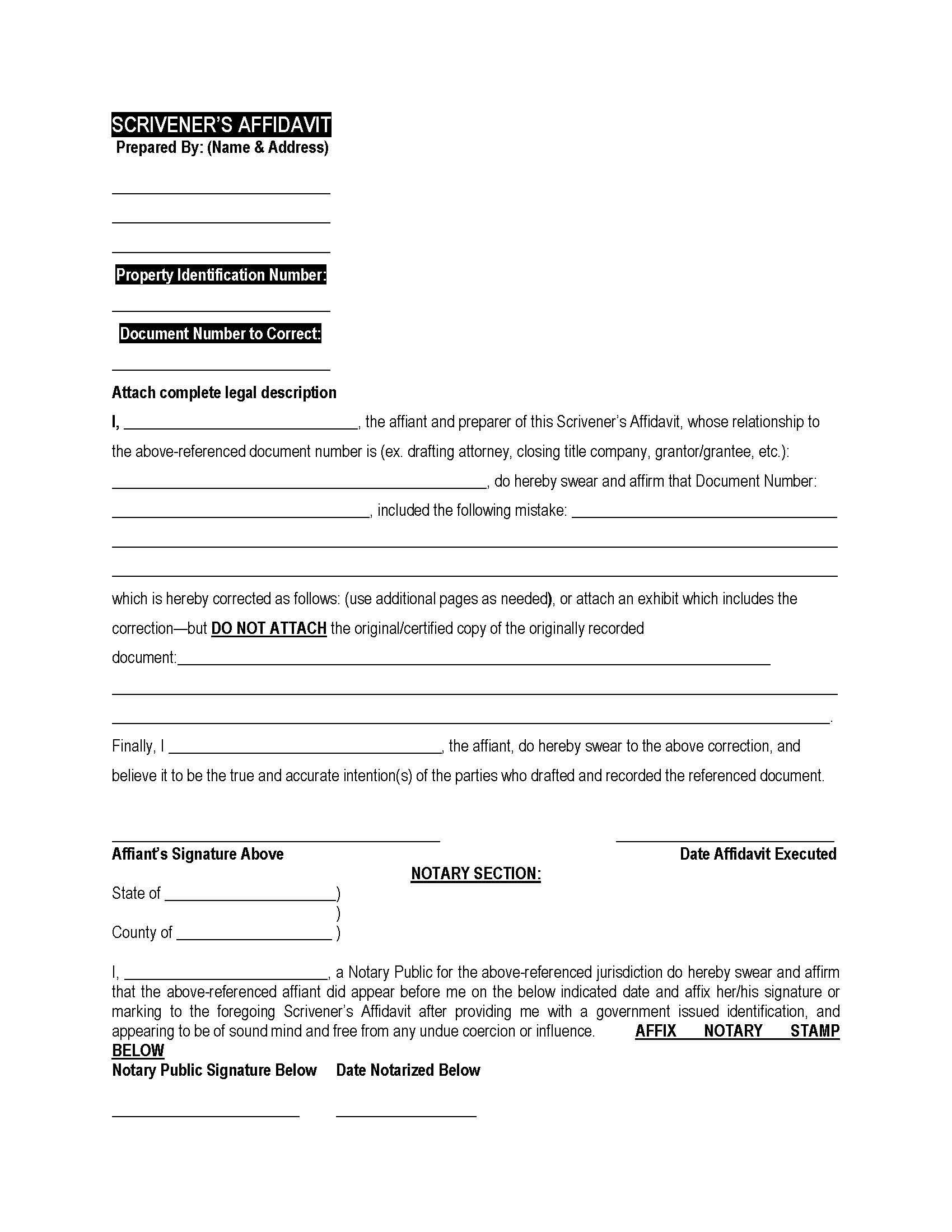
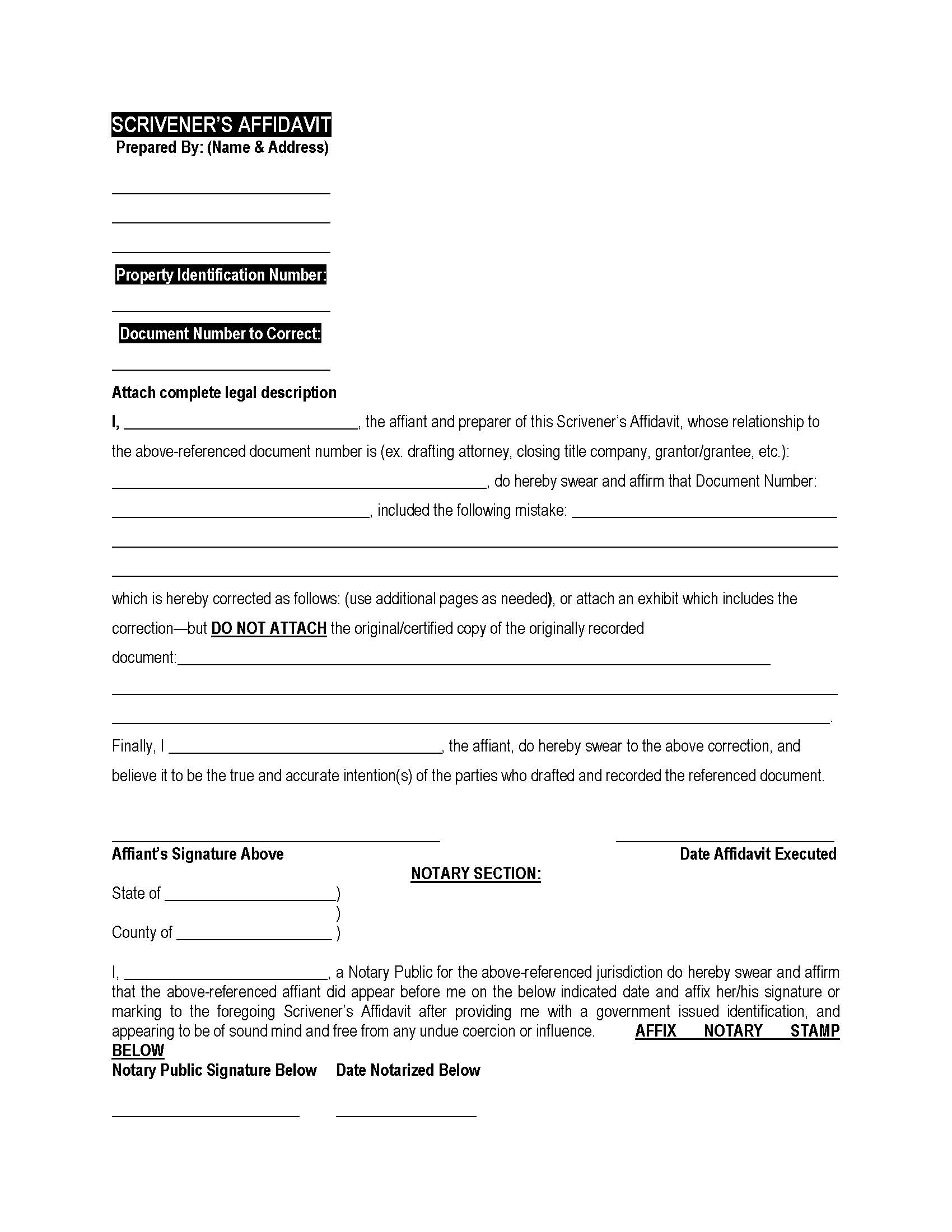
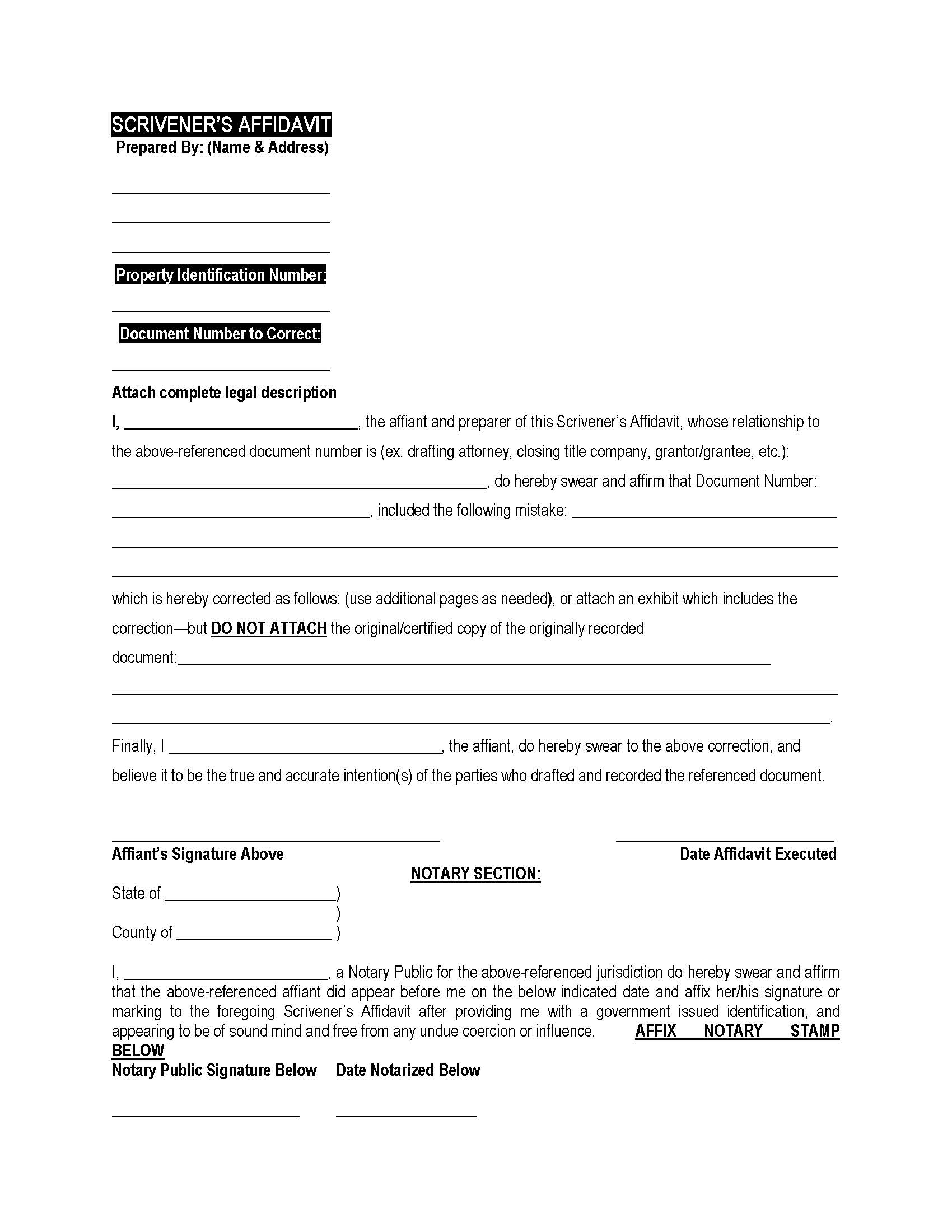
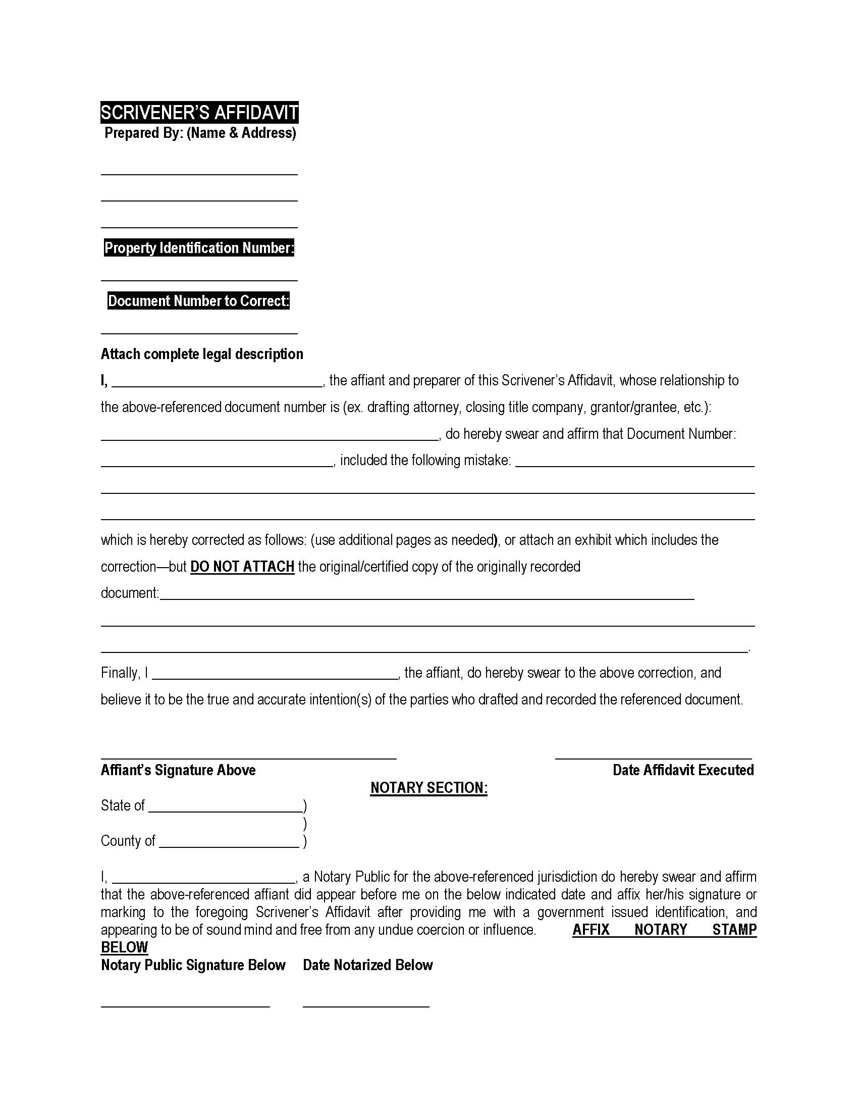
SCRIVENER’S AFFIDAVIT. This form is a legal document used to correct minor clerical or typographical errors in a previously recorded document related to real estate transactions. It is typically prepared by someone involved in the original document, such as an attorney, title company, or one of the parties to the transaction. The affidavit identifies the document to be corrected, specifies the mistake, and provides the correct information. The affiant (person making the affidavit) must sign the document before a notary public, affirming that the correction accurately reflects the original intent of the parties. This affidavit ensures that public records accurately reflect the intended transaction without requiring a full re-recording of the original document. www.FormsWorkflow.com





