Last updated: 5/16/2023
Vacancy Occupancy Affidavit
Start Your Free Trial $ 13.99What you get:
- Instant access to fillable Microsoft Word or PDF forms.
- Minimize the risk of using outdated forms and eliminate rejected fillings.
- Largest forms database in the USA with more than 80,000 federal, state and agency forms.
- Download, edit, auto-fill multiple forms at once in MS Word using our Forms Workflow Ribbon
- Trusted by 1,000s of Attorneys and Legal Professionals
Description
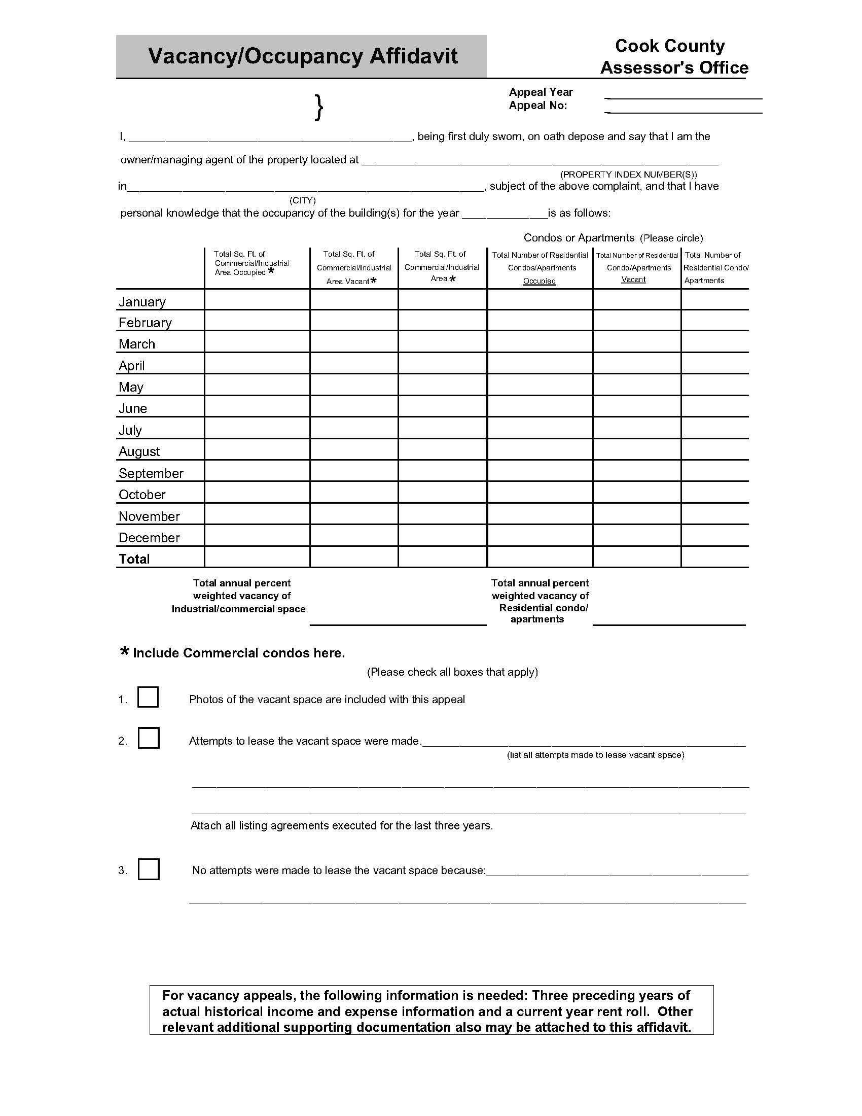
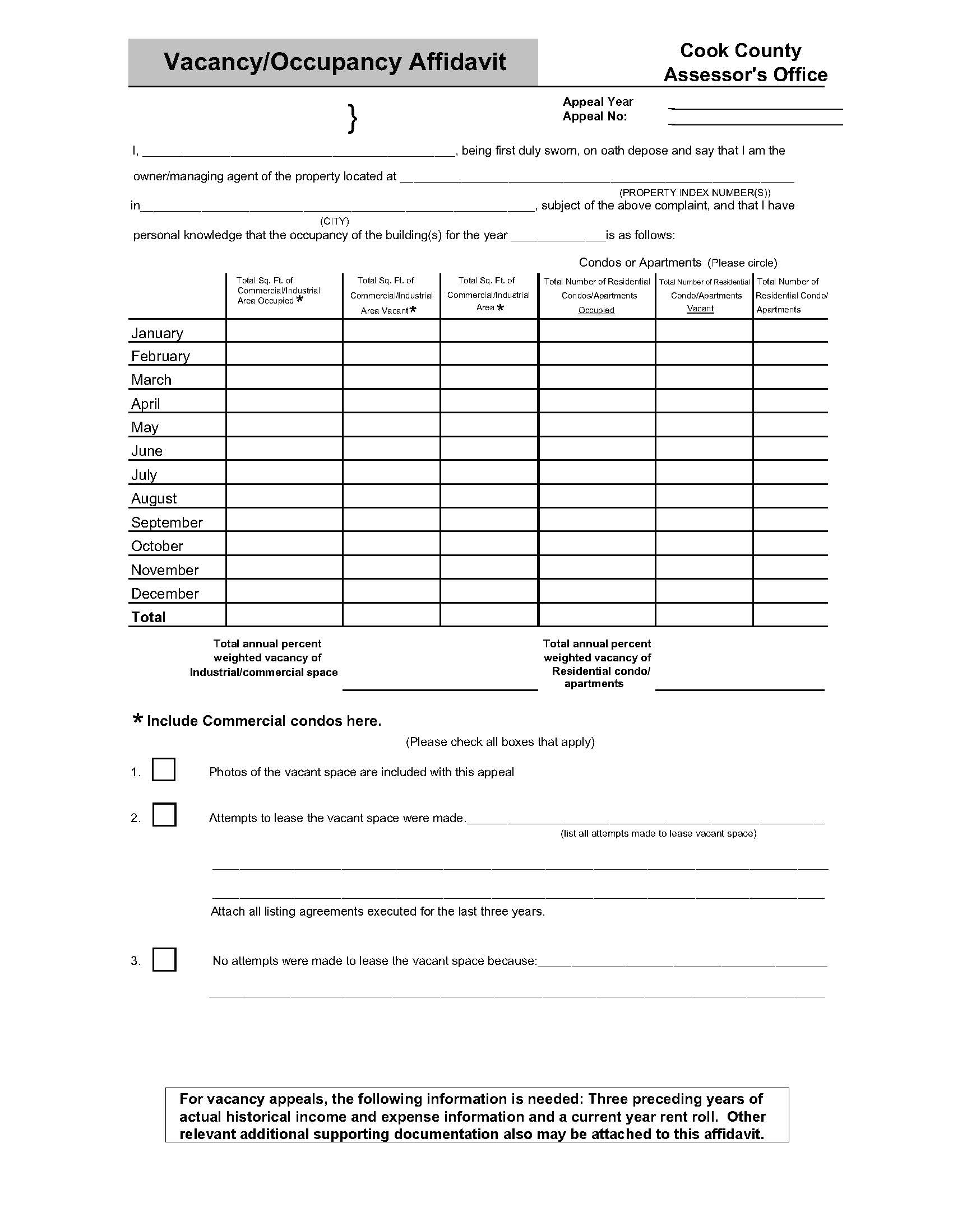
VACANCY/OCCUPANCY AFFIDAVIT. The form is used by the Cook County Assessor's Office for property tax assessment appeals. The affiant, who is the property owner or managing agent, provides information about the property, including occupancy details for each month. The form also asks about attempts to lease vacant space, reasons for not attempting to lease, and information on showings and offers. It includes sections for vacancy factors applied in previous years and reasons for requesting vacancy relief. The form requires the affiant's signature and notarization. Additional information or documentation may be required by the Cook County Assessor's Office. www.FormsWorkflow.com
Related forms
-
Demolition Affidavit
Illinois/Local County/Cook/Assessors Office/ -
Rent Roll For Industrial Commercial
Illinois/Local County/Cook/Assessors Office/ -
Owner Occupancy Affidavit (For Appeals Only)
Illinois/Local County/Cook/Assessors Office/ -
Property Location Correction Form
Illinois/Local County/Cook/Assessors Office/ -
Taxpayer Exemption Application (Homeowner And Senior Citizen)
Illinois/Local County/Cook/Assessors Office/ -
Appeal Data Cover Form A
Illinois/Local County/Cook/Assessors Office/ -
Appeal Data Cover Form B
Illinois/Local County/Cook/Assessors Office/ -
Petition For Division And Or Consolidation (For Tax Year 2021)
Illinois/Local County/Cook/Assessors Office/ -
Residential Appeal Narrative Additional Documentation Form
Illinois/2 Local County/Cook/Assessors Office/ -
Vacancy Affidavit For 10 Or More Stories
Illinois/2 Local County/Cook/Assessors Office/ -
Non-Attorney Code Request Form
Illinois/2 Local County/Cook/Assessors Office/ -
General Affidavit Industrial Commercial)
Illinois/2 Local County/Cook/Assessors Office/ -
Rent Roll For Apartments
Illinois/Local County/Cook/Assessors Office/ -
Hearing Waiver (Department Of Erroneous Exemption Administration Hearings)
Illinois/2 Local County/Cook/Assessors Office/ -
Motion To Continue (Department Of Erroneous Exemption Administration Hearings)
Illinois/2 Local County/Cook/Assessors Office/ -
Appearance (Department Of Erroneous Exemption Administration Hearings)
Illinois/2 Local County/Cook/Assessors Office/ -
Affidavit Claiming Long-Time Occupant Homestead Exemption Due To Deceased
Illinois/2 Local County/Cook/Assessors Office/ -
Occupancy Affidavit
Illinois/2 Local County/Cook/Assessors Office/ -
Affidavit Of Use
Illinois/2 Local County/Cook/Assessors Office/ -
Appraisal Summary Sheet
Illinois/2 Local County/Cook/Assessors Office/ -
Attorney-Representative Authorization Form
Illinois/2 Local County/Cook/Assessors Office/ -
New Construction Property Additions Or Improvements
Illinois/2 Local County/Cook/Assessors Office/ -
Report Of Destroyed Or Uninhabitable Improvement Destructions
Illinois/2 Local County/Cook/Assessors Office/ -
Affidavit Regarding Termination Of Lease
Illinois/2 Local County/Cook/Assessors Office/ -
Class 4 Classification Not-For-Profit Affidavit
Illinois/2 Local County/Cook/Assessors Office/ -
Property Age Change Affidavit
Illinois/2 Local County/Cook/Assessors Office/ -
Request For Assessment By Legal Description
Illinois/Local County/Cook/Assessors Office/ -
Affidavit Of Person Claiming Senior Freeze Due To Deceased Taxpayer
Illinois/2 Local County/Cook/Assessors Office/ -
Disabled Persons Homeowner Exemption
Illinois/2 Local County/Cook/Assessors Office/ -
Senior Freeze (Senior Citizens Assessment Freeze Homestead Exemption)
Illinois/2 Local County/Cook/Assessors Office/ -
Senior Exemption Certificate Of Error (C-E) Application
Illinois/2 Local County/Cook/Assessors Office/ -
Returning Veterans Homeowner Exemption
Illinois/2 Local County/Cook/Assessors Office/ -
Veterans With Disabilities Standard Homeowner Exemption
Illinois/2 Local County/Cook/Assessors Office/ -
Assessment Inquiry-Report
Illinois/2 Local County/Cook/Assessors Office/ -
Field Check Request Letter
Illinois/2 Local County/Cook/Assessors Office/ -
Certificate Of Error Application For Exempt Property
Illinois/2 Local County/Cook/Assessors Office/ -
Condominium De-Conversion Document Request Form
Illinois/2 Local County/Cook/Assessors Office/ -
Certificate Of Error Application For Omitted Assessments
Illinois/2 Local County/Cook/Assessors Office/ -
Withdrawal And-Or Substitution Of Representation Form
Illinois/2 Local County/Cook/Assessors Office/ -
Triennial Report Affidavit For Incentive Properties
Illinois/2 Local County/Cook/Assessors Office/ -
Exemption Removal Waiver
Illinois/2 Local County/Cook/Assessors Office/ -
Sales Questionnaire (Industrial-Commercial)
Illinois/Local County/Cook/Assessors Office/ -
Real Estate Assessed Valuation Appeal Condo Coop
Illinois/2 Local County/Cook/Assessors Office/ -
Property Summary Sheet
Illinois/2 Local County/Cook/Assessors Office/ -
Real Estate Assessed Valuation Appeal Residential
Illinois/2 Local County/Cook/Assessors Office/ -
Real Estate Assessed Valuation Appeal Vacant Land
Illinois/2 Local County/Cook/Assessors Office/ -
Vacancy Occupancy Affidavit
Illinois/Local County/Cook/Assessors Office/ -
Real Estate Assessed Valuation Appeal Industrial Commercial
Illinois/2 Local County/Cook/Assessors Office/ -
Certificate Of Error Application For Taxable Properties
Illinois/2 Local County/Cook/Assessors Office/ -
Continued Ownership And Use Declaration After PIN Division
Illinois/2 Local County/Cook/Assessors Office/
Form Preview
Contact Us
Success: Your message was sent.
Thank you!




