Last updated: 1/24/2025
Real Estate Withholding Statement (2025) {593}
Start Your Free Trial $ 20.00What you get:
- Instant access to fillable Microsoft Word or PDF forms.
- Minimize the risk of using outdated forms and eliminate rejected fillings.
- Largest forms database in the USA with more than 80,000 federal, state and agency forms.
- Download, edit, auto-fill multiple forms at once in MS Word using our Forms Workflow Ribbon
- Trusted by 1,000s of Attorneys and Legal Professionals
Description
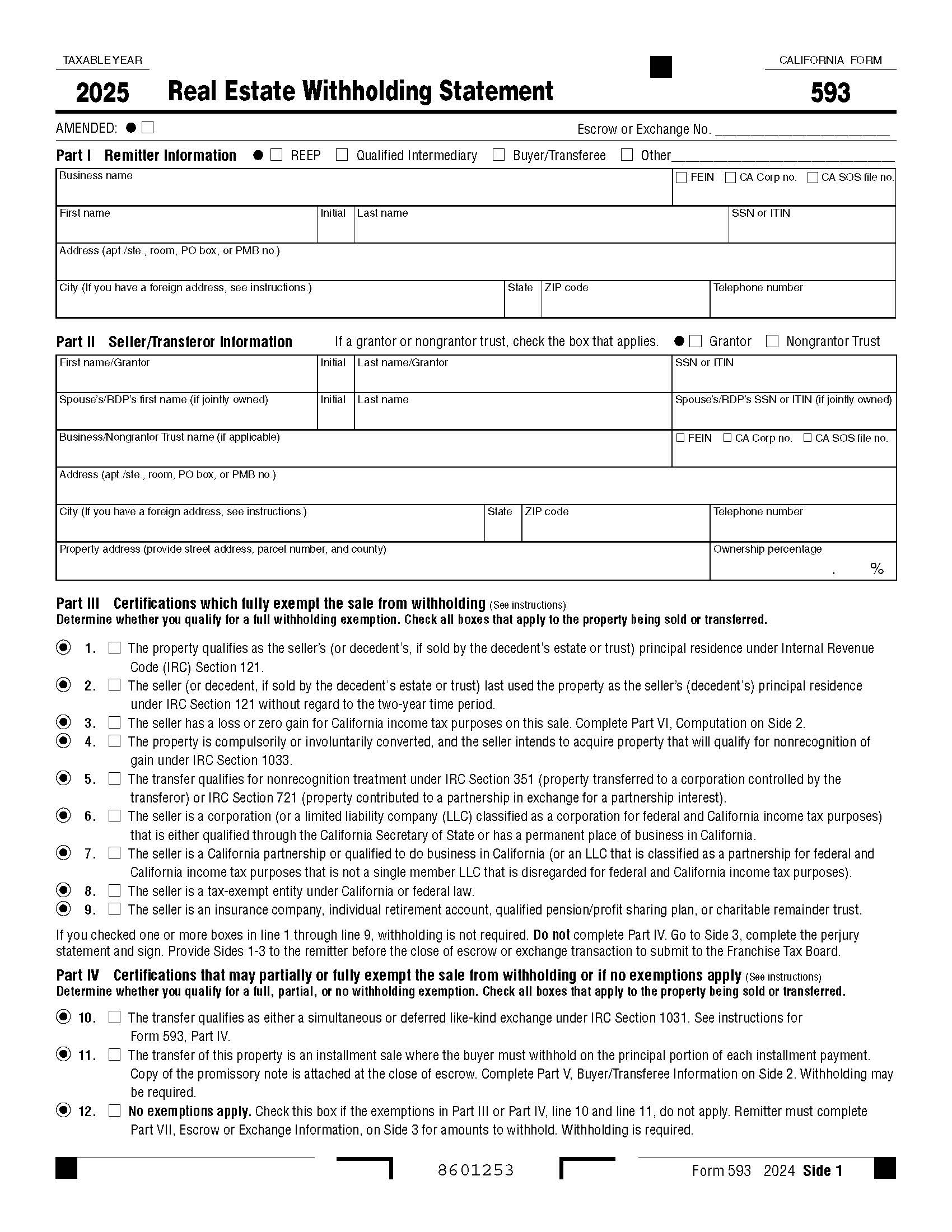
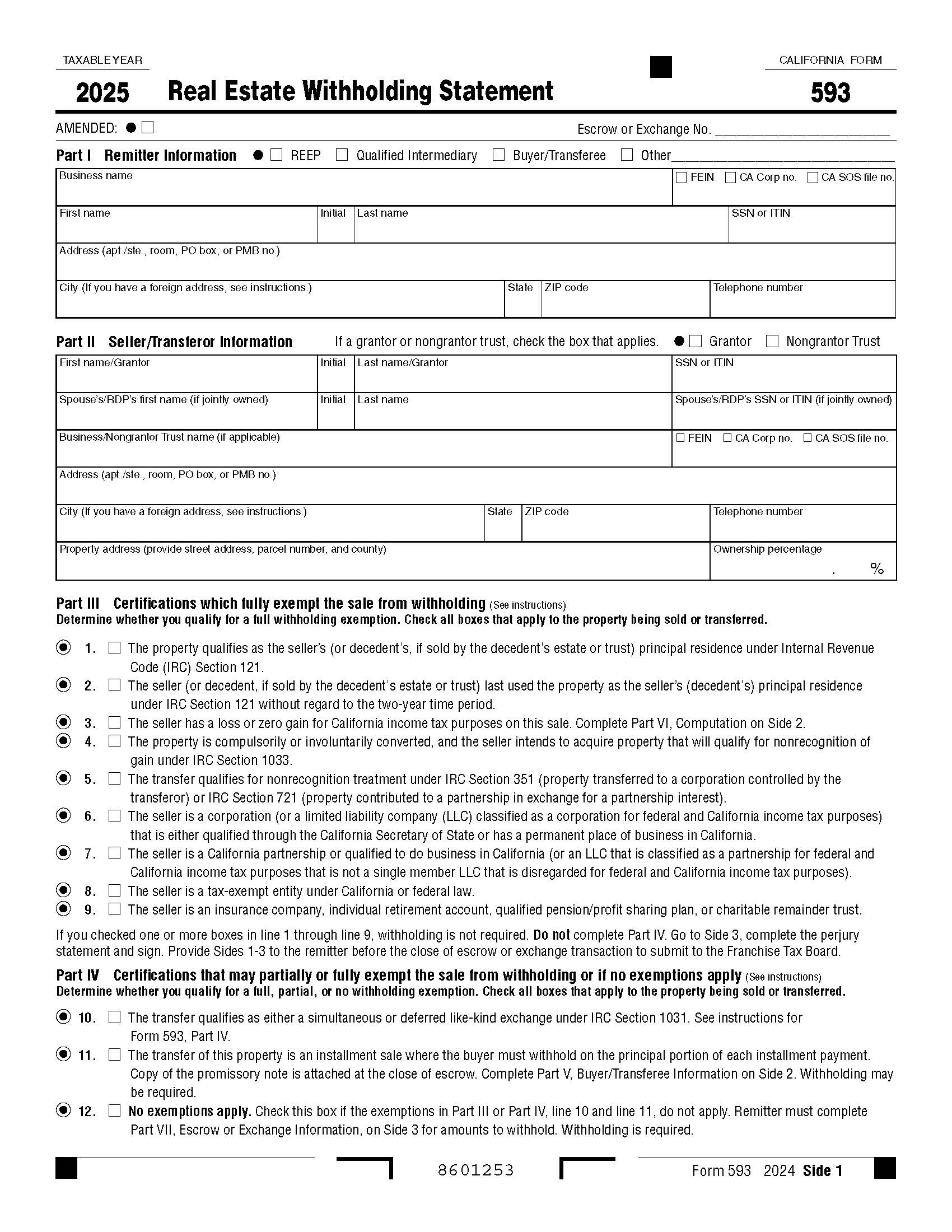
593 - 2025 REAL ESTATE WITHHOLDING STATEMENT. Use this form to: • Certify the seller/transferor qualifies for a full, partial, or no withholding exemption. • Estimate the amount of the seller’s/transferor’s loss or zero gain for withholding purposes and to calculate an alternative withholding calculation amount. • Report real estate withholding on sales closing in 2025, installment payments made in 2025, or exchanges that were completed or failed in 2025. Use a separate Form 593 to report the amount withheld from each seller/transferor. If the sellers/transferors are married or RDPs and they plan to file a joint return, include both spouses/RDPs on the same Form 593. If the sellers/transferors are married or RDPs and they are entered as one seller/transferor, we treat them as having equal ownership interest. If the ownership interest is not equal, file separate Forms 593 for each seller/transferor to represent the correct ownership interest percentage. If the information submitted is incorrect, an amended Form 593 must be filed with the FTB. Use Form 593-V, Payment Voucher for Real Estate Withholding, to remit real estate withholding payments to the FTB. Submit Form 593-V when Form(s) 593 is submitted electronically or by mail. The remitter must use Form 593-V when remitting a payment by check or money order. www.FormsWorkflow.com





