Last updated: 4/16/2007
Request For Use Of An Air Curtain Open Pit Destructor {43688}
Start Your Free Trial $ 13.99What you get:
- Instant access to fillable Microsoft Word or PDF forms.
- Minimize the risk of using outdated forms and eliminate rejected fillings.
- Largest forms database in the USA with more than 80,000 federal, state and agency forms.
- Download, edit, auto-fill multiple forms at once in MS Word using our Forms Workflow Ribbon
- Trusted by 1,000s of Attorneys and Legal Professionals
Description
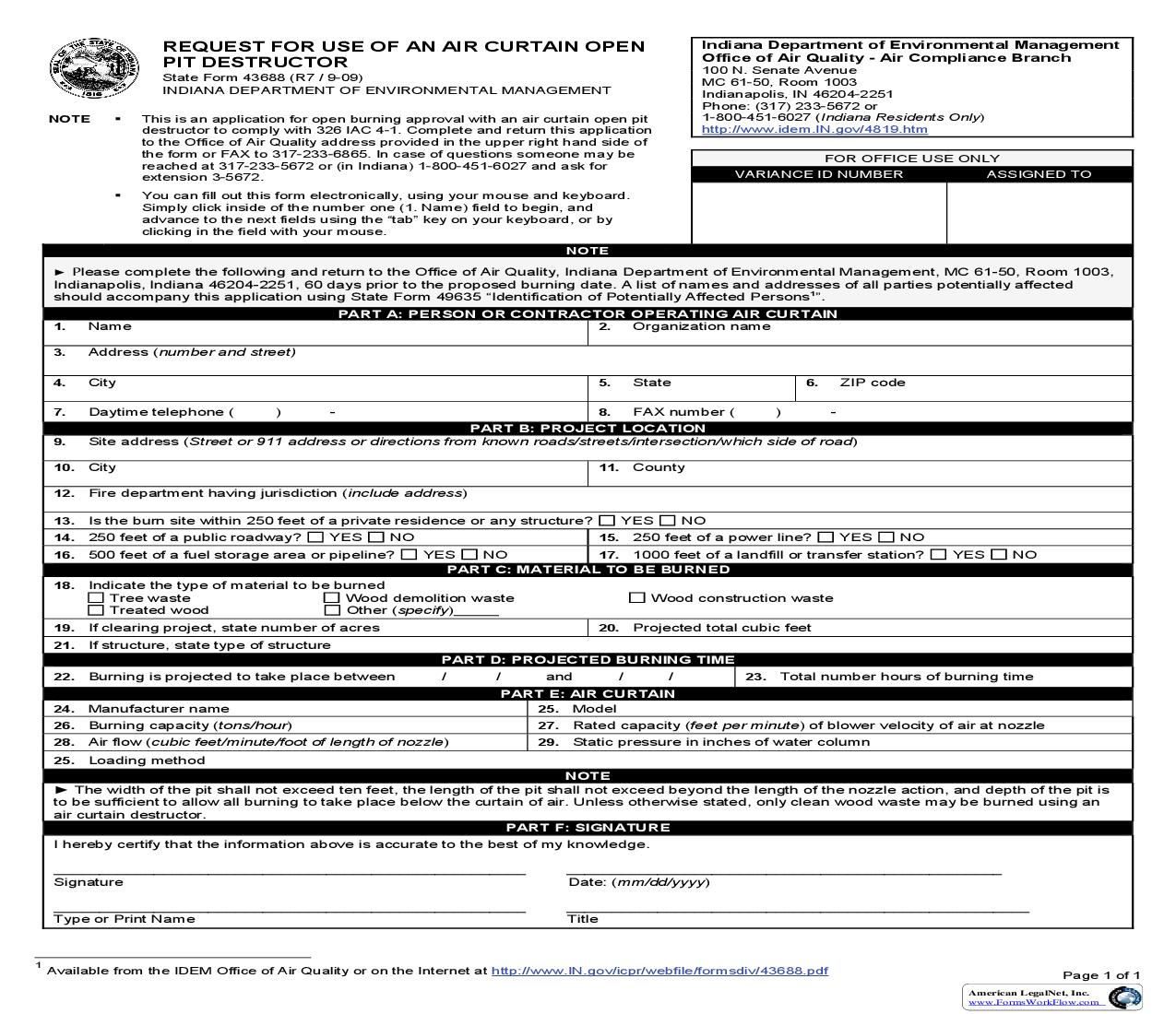
REQUEST FOR USE OF AN AIR CURTAIN OPEN PIT DESTRUCTOR State Form 43688 (R6 / 12-04) INDIANA DEPARTMENT OF ENVIRONMENTAL MANAGEMENT NOTE This is an application for open burning approval with an air curtain open pit destructor to comply with 326 IAC 4-1. Complete and return this application to the Office of Air Quality address provided in the upper right hand side of the form or fax to 317-233-6865. In case of questions someone may be reached at 317-233-5672 or (in Indiana) 1-800-451-6027 and ask for extension 3-5672. You can fill out this form electronically, using your mouse and keyboard. Simply click inside of the number one (1. Name) field to begin, and advance to the next fields using the "tab" key on your keyboard, or by clicking in the field with your mouse. NOTE Indiana Department of Environmental Management Office of Air Quality - Air Compliance Branch 100 N. Senate Avenue P.O. Box 6015 Indianapolis, IN 46206-6015 Phone: (317) 233-5672 or 1-800-451-6027 (Indiana Residents Only) http://www.IN.gov/idem/compliance/air FOR OFFICE USE ONLY VARIANCE ID NUMBER ASSIGNED TO Please complete the following and return to the Office of Air Quality, Indiana Department of Environmental Management, P.O. Box 6015, Indianapolis, Indiana 46206-6015, 60 days prior to the proposed burning date. A list of names & addresses of all parties potentially affected should accompany this application using State Form 49635 "Identification of Potentially Affected Persons1". PART A: PERSON OR CONTRACTOR OPERATING AIR CURTAIN 1. Name: 2. Organization Name: 3. 4. 7. 9. Address: City: Daytime Telephone: ( ) 5. 8. State: Fax Number: ( ) - 6. ZIP code: PART B: PROJECT LOCATION Site address (Street or 911 address or directions from known roads/streets/intersection/which side of road): 11. County: 10. City: 12. Fire department having jurisdiction (include address) 13. Is the burn site within 250 feet of a private residence or any structure? 14. 250 feet of a public roadway? YES NO YES NO YES NO YES NO 15. 250 feet of a power line? 16. 500 feet of a fuel storage area or pipeline? 18. Indicate the type of material to be burned: YES NO 17. 1000 feet of a landfill or transfer station? PART C: MATERIAL TO BE BURNED Wood demolition waste Other (specify): 20. Projected total cubic feet: PART D: PROJECTED BURNING TIME Tree waste Treated Wood 19. If clearing project, state number of acres: 21. If structure, state type of structure: 22. Burning is projected to take place between 24. Manufacturer name: 26. Burning capacity (tons/hour): 28. Air flow (cubic feet/minute/foot of length of nozzle): 25. Loading method: Wood construction waste / / and 25. Model: / / 23. Total number hours of burning time PART E: AIR CURTAIN 27. Rated capacity (feet per minute) of blower velocity of air at nozzle: 29. Static pressure in inches of water column: NOTE The width of the pit shall not exceed ten feet, the length of the pit shall not exceed beyond the length of the nozzle action, and depth of the pit is to be sufficient to allow all burning to take place below the curtain of air. Unless otherwise stated, only clean wood waste may be burned using an air curtain destructor. PART F: SIGNATURE I hereby certify that the information above is accurate to the best of my knowledge. ____________________________________________________ Signature ____________________________________________________ Type or Print Name 1 ________________________________________________ Date: (mm/dd/year) ___________________________________________________ Title Available from the IDEM Office of Air Quality or on the Internet at http://www.in.gov/icpr/webfile/formsdiv/43635.pdf Page 1 of 1 American LegalNet, Inc. www.FormsWorkflow.com
Related forms
-
OAQ Process Information Application PI-17 Blasting Operations
Indiana/Statewide/Department Of Enviromental Management/Air/ -
OAQ Process Information Application PI-05 Brick And Clay Products
Indiana/Statewide/Department Of Enviromental Management/Air/ -
OAQ Process Information Application PI-02B Combustion Boilers Process Heaters And Furnaces
Indiana/Statewide/Department Of Enviromental Management/Air/ -
OAQ Process Information Application PI-02G Combustion Emission Factors
Indiana/Statewide/Department Of Enviromental Management/Air/ -
OAQ Process Information Application PI-02H Combustion Federal Rule Applicability
Indiana/Statewide/Department Of Enviromental Management/Air/ -
OAQ Process Information Application PI-02F Combustion Fuel Use
Indiana/Statewide/Department Of Enviromental Management/Air/ -
General Source Data Application GSD-14 Owners And Occupants Notified
Indiana/Statewide/Department Of Enviromental Management/Air/ -
General Source Data GSD-15 Government Officials Notified
Indiana/Statewide/Department Of Enviromental Management/Air/ -
OAQ General Source Data Application GSD-02 Plant Layout Diagram
Indiana/Statewide/Department Of Enviromental Management/Air/ -
OAQ General Source Data Application GSD-01 Basic Source level Information
Indiana/Statewide/Department Of Enviromental Management/Air/ -
OAQ Process Information Application PI-02D Combustion Incinerators And Combustors
Indiana/Statewide/Department Of Enviromental Management/Air/ -
OAQ Process Information Application PI-02E Combustion Kilns
Indiana/Statewide/Department Of Enviromental Management/Air/ -
OAQ Process Information Application PI-02C Combustion Turbines Reciprocating Internal Engines
Indiana/Statewide/Department Of Enviromental Management/Air/ -
OAQ Process Information Application PI-02A Combustion Unit Summary
Indiana/Statewide/Department Of Enviromental Management/Air/ -
OAQ Process Information Application PI-08 Concrete Batchers
Indiana/Statewide/Department Of Enviromental Management/Air/ -
OAQ Process Information Application PI-09 Degreasing Operations
Indiana/Statewide/Department Of Enviromental Management/Air/ -
OAQ Process Information Application PI-10 Dry Cleaning Operations
Indiana/Statewide/Department Of Enviromental Management/Air/ -
OAQ Process Information Application PI-06 Electroplating
Indiana/Statewide/Department Of Enviromental Management/Air/ -
OAQ Process Information Application PI-11 Foundry Smelting And Die Cast Operations
Indiana/Statewide/Department Of Enviromental Management/Air/ -
OAQ Process Information Application PI-12 Grain Elevators
Indiana/Statewide/Department Of Enviromental Management/Air/ -
OAQ Process Information Application PI-04 Hot Or Cold Mix Asphalt Plants
Indiana/Statewide/Department Of Enviromental Management/Air/ -
OAQ Process Information Application PI-13 Lime Manufacturing
Indiana/Statewide/Department Of Enviromental Management/Air/ -
OAQ Process Information Application PI-18 Mineral Processing
Indiana/Statewide/Department Of Enviromental Management/Air/ -
OAQ Process Information Application PI-01 Miscellaneous Processes
Indiana/Statewide/Department Of Enviromental Management/Air/ -
OAQ Process Information Application PI-15 Portland Cement Manufacturing
Indiana/Statewide/Department Of Enviromental Management/Air/ -
OAQ Process Information Application PI-16 Reinforced Plastics And Composites
Indiana/Statewide/Department Of Enviromental Management/Air/ -
OAQ Process Information Application PI-21 Site Remediation
Indiana/Statewide/Department Of Enviromental Management/Air/ -
OAQ Process Information Application PI-03 Storage And Handling Of Bulk Material
Indiana/Statewide/Department Of Enviromental Management/Air/ -
OAQ Process Information Application PI-19 Surface Coating And Printing Operations
Indiana/Statewide/Department Of Enviromental Management/Air/ -
OAQ Process Information Application PI-14 Volatile Organic Liquid Compound Storage
Indiana/Statewide/Department Of Enviromental Management/Air/ -
OAQ Process Information Application PI-07 Welding And Cutting Of Metal
Indiana/Statewide/Department Of Enviromental Management/Air/ -
OAQ Process Information Application PI-20 Woodworking And Plastic Machining
Indiana/Statewide/Department Of Enviromental Management/Air/ -
AEF-01 Alternate Emission Factor Request
Indiana/Statewide/Department Of Enviromental Management/Air/ -
OAQ General Source Data Application GSD-03 Process Flow Diagram
Indiana/Statewide/Department Of Enviromental Management/Air/ -
OAQ General Source Data Application GSD-04 Stack Vent Information
Indiana/Statewide/Department Of Enviromental Management/Air/ -
OAQ General Source Data Application GSD-05 Emissions Unit Information
Indiana/Statewide/Department Of Enviromental Management/Air/ -
OAQ General Source Data Application GSD-06 Particulate Emissions Summary
Indiana/Statewide/Department Of Enviromental Management/Air/ -
OAQ General Source Data Application GSD-07 Criteria Pollutant Emissions Summary
Indiana/Statewide/Department Of Enviromental Management/Air/ -
OAQ General Source Data Application GSD-08 Hazardous Air Pollutant Emissions Summary
Indiana/Statewide/Department Of Enviromental Management/Air/ -
OAQ General Source Data Application GSD-09 Summary Of Additional Information
Indiana/Statewide/Department Of Enviromental Management/Air/ -
OAQ General Source Data Application GSD-10 Insignificant Activities
Indiana/Statewide/Department Of Enviromental Management/Air/ -
OAQ General Source Data Application GSD-11 Alternative Operating Scenario Summary
Indiana/Statewide/Department Of Enviromental Management/Air/ -
OAQ General Source Data Application GSD-12 Affidavit Of Nonapplicability
Indiana/Statewide/Department Of Enviromental Management/Air/ -
Air Permit Application Cover Sheet
Indiana/Statewide/Department Of Enviromental Management/Air/ -
General Source Data Application GSD-13 Affidavit Of Applicability
Indiana/Statewide/Department Of Enviromental Management/Air/ -
Air Permit Application Form Checklist
Indiana/Statewide/Department Of Enviromental Management/Air/ -
PAL-02 Revised Plantwide Applicability Limit
Indiana/Statewide/Department Of Enviromental Management/Air/ -
PAL-03 Plantwide Applicability Limit Renewal
Indiana/Statewide/Department Of Enviromental Management/Air/ -
PAL-04 Request For Termination Of Plantwide Applicability Limit
Indiana/Statewide/Department Of Enviromental Management/Air/ -
PAL-01 Actuals Plantwide Applicability Limit
Indiana/Statewide/Department Of Enviromental Management/Air/ -
Application For Individual Asbestos License
Indiana/Statewide/Department Of Enviromental Management/Air/ -
Application For Individual Lead License
Indiana/Statewide/Department Of Enviromental Management/Air/ -
Application For Lead Based Paint Training Course Provider Approval
Indiana/Statewide/Department Of Enviromental Management/Air/ -
Application For Lead Contractor
Indiana/Statewide/Department Of Enviromental Management/Air/ -
Inital Notification Report Under Regulation 40 CFR Part 63 Subpart DDDDD
Indiana/Statewide/Department Of Enviromental Management/Air/ -
Notification Of Demolition And Renovation Operations
Indiana/Statewide/Department Of Enviromental Management/Air/ -
Notification Of Lead Abatement Activities
Indiana/Statewide/Department Of Enviromental Management/Air/ -
Registration Form For Lead Based Paint Third Party Examinations
Indiana/Statewide/Department Of Enviromental Management/Air/ -
Request For Use Of An Air Curtain Open Pit Destructor
Indiana/Statewide/Department Of Enviromental Management/Air/ -
Request For Variance Form 326 IAC 4-1 Fire Training
Indiana/Statewide/Department Of Enviromental Management/Air/ -
Request For Variance Form 326 IAC 4-1 Motor Vehicle Fire Training
Indiana/Statewide/Department Of Enviromental Management/Air/ -
Request For Variance Form 326 IAC 4-1 Prescribed Vegetation Burn
Indiana/Statewide/Department Of Enviromental Management/Air/ -
Request For Variance Form 326 IAC 4-1 Tree Waste Or Clean Wood Waste
Indiana/Statewide/Department Of Enviromental Management/Air/ -
Application For Duplicate Lead License
Indiana/Statewide/Department Of Enviromental Management/Air/ -
Application Checksheet For Asbestos Contractor
Indiana/Statewide/Department Of Enviromental Management/Air/ -
Application For Asbestos Contractor License
Indiana/Statewide/Department Of Enviromental Management/Air/ -
Application For Asbestos Training Course Provider Approval
Indiana/Statewide/Department Of Enviromental Management/Air/ -
Application For Duplicate Asbestos License
Indiana/Statewide/Department Of Enviromental Management/Air/ -
MACT-01 Pre Construction Review
Indiana/Statewide/Department Of Enviromental Management/Air/ -
AES-03 Stack Information
Indiana/Statewide/Department Of Enviromental Management/Air/ -
AES-04 Abatement Equipment
Indiana/Statewide/Department Of Enviromental Management/Air/ -
AES-05 Group Process Emissions Information
Indiana/Statewide/Department Of Enviromental Management/Air/ -
AES-06 Voluntary Hazardous Air Pollutant Reporting
Indiana/Statewide/Department Of Enviromental Management/Air/ -
AES-01 Air Emission Statement Certification
Indiana/Statewide/Department Of Enviromental Management/Air/ -
AES-02 Facility General Information
Indiana/Statewide/Department Of Enviromental Management/Air/ -
CD-02 Compliance Plan Requirements Per Applicable Requirement
Indiana/Statewide/Department Of Enviromental Management/Air/ -
CD-03 Compliance Plan Requirements Per Emissions Unit
Indiana/Statewide/Department Of Enviromental Management/Air/ -
CD-04 Compliance Schedule And Certification
Indiana/Statewide/Department Of Enviromental Management/Air/ -
CD-01 Emissions Unit Compliance Status
Indiana/Statewide/Department Of Enviromental Management/Air/ -
OAQ Control Equpiment Application CE-05 Particulate Control Wet Collector Scrubber Absorption
Indiana/Statewide/Department Of Enviromental Management/Air/ -
OAQ Control Equpiment Application CE-06 Organics Flare Oxidizer Incinerator
Indiana/Statewide/Department Of Enviromental Management/Air/ -
OAQ Control Equpiment Application CE-07 Organics Adsorber
Indiana/Statewide/Department Of Enviromental Management/Air/ -
OAQ Control Equpiment Application CE-08 Organics Condenser
Indiana/Statewide/Department Of Enviromental Management/Air/ -
OAQ Control Equpiment Application CE-09 Nitrogen Oxides Reduction Technology
Indiana/Statewide/Department Of Enviromental Management/Air/ -
OAQ Control Equpiment Application CE-10 Miscellaneous Control Equipment
Indiana/Statewide/Department Of Enviromental Management/Air/ -
OAQ Control Equpiment Application CE-01 Control Equipment Summary
Indiana/Statewide/Department Of Enviromental Management/Air/ -
OAQ Control Equpiment Application CE-02 Particulate Control Baghouse Fabric Filter
Indiana/Statewide/Department Of Enviromental Management/Air/ -
OAQ Control Equpiment Application CE-03 Particulate Control Cyclone
Indiana/Statewide/Department Of Enviromental Management/Air/ -
OAQ Control Equpiment Application CE-04 Particulate Control Electrostatic Precipitator
Indiana/Statewide/Department Of Enviromental Management/Air/ -
EC-03 Emission Credit Registry Use Of Emission Credits
Indiana/Statewide/Department Of Enviromental Management/Air/ -
EC-04 Emission Credit Registry Emission Credits Request
Indiana/Statewide/Department Of Enviromental Management/Air/ -
EC-01 Emission Credit Registry Generation Of Emission Credits
Indiana/Statewide/Department Of Enviromental Management/Air/ -
EC-02 Emission Credit Registry Transfer Of Emission Credits
Indiana/Statewide/Department Of Enviromental Management/Air/ -
Identification Of Potentially Affected Persons
Indiana/Statewide/Department Of Enviromental Management/Air/ -
BACT 01A Background Search Existing BACT Determinations
Indiana/Statewide/Department Of Enviromental Management/Air/ -
BACT 01B Cost Economic Impact Analysis
Indiana/Statewide/Department Of Enviromental Management/Air/ -
BACT 02 Summary Of Best Available Control Technology
Indiana/Statewide/Department Of Enviromental Management/Air/ -
BACT 01 Analysis Of Best Available Control Technology
Indiana/Statewide/Department Of Enviromental Management/Air/ -
OAQ Permit Renewal Application Air Permit Renewal Checklist
Indiana/Statewide/Department Of Enviromental Management/Air/ -
Application Checksheet For Lead Contractor
Indiana/Statewide/Department Of Enviromental Management/Air/
Form Preview
Contact Us
Success: Your message was sent.
Thank you!




