Last updated: 3/18/2026
Change In Ownership Statement (Tulare) {BOE-502-AH}
Start Your Free Trial $ 17.99What you get:
- Instant access to fillable Microsoft Word or PDF forms.
- Minimize the risk of using outdated forms and eliminate rejected fillings.
- Largest forms database in the USA with more than 80,000 federal, state and agency forms.
- Download, edit, auto-fill multiple forms at once in MS Word using our Forms Workflow Ribbon
- Trusted by 1,000s of Attorneys and Legal Professionals
Description
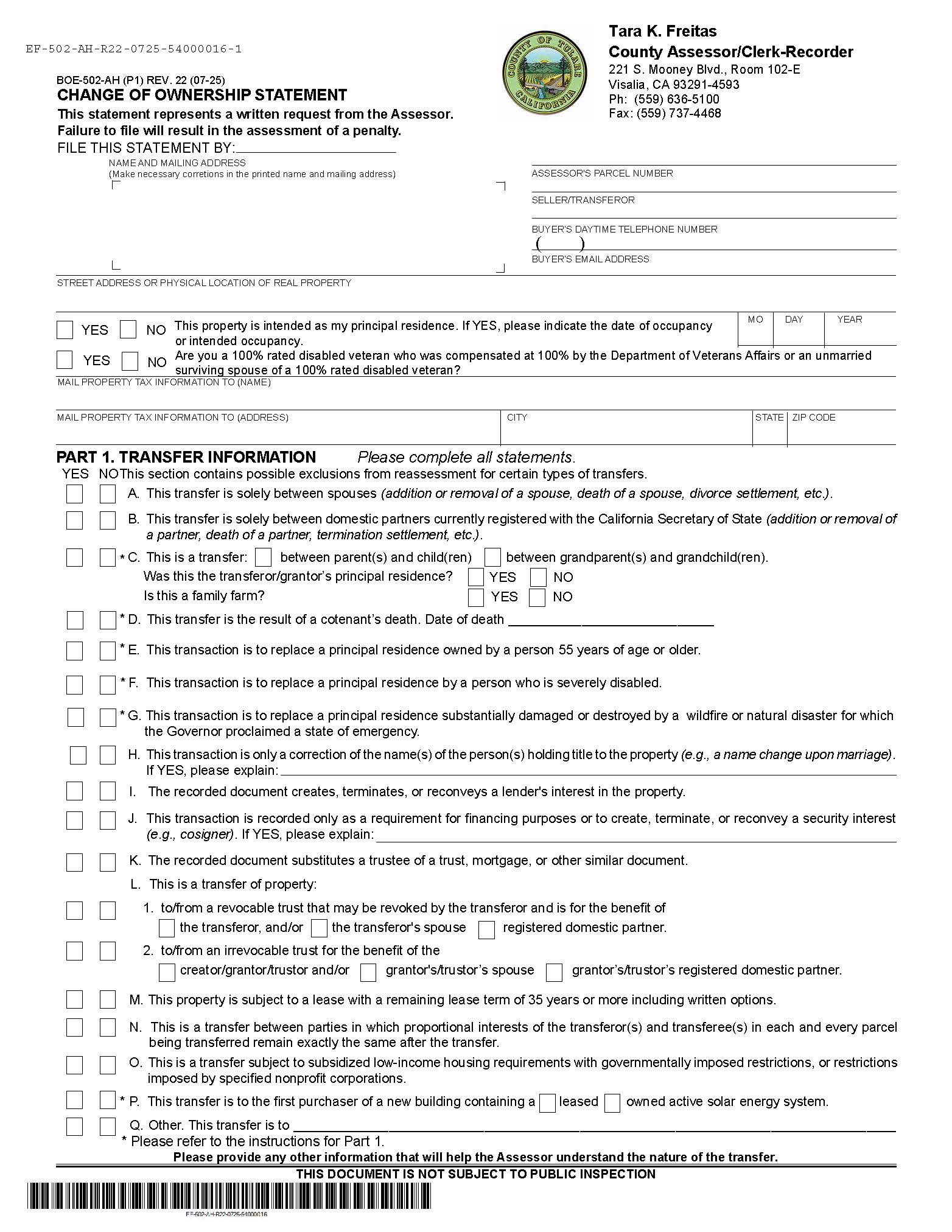
BOE-502-AH - CHANGE OF OWNERSHIP STATEMENT (Tulare County). The law requires any transferee acquiring an interest in real property or manufactured home subject to local property taxation, and that is assessed by the county assessor, to file a change in ownership statement with the county recorder or assessor. The change in ownership statement must be filed at the time of recording or, if the transfer is not recorded, within 90 days of the date of the change in ownership, except that where the change in ownership has occurred by reason of death the statement shall be filed within 150 days after the date of death or, if the estate is probated, shall be filed at the time the inventory and appraisal is filed. The failure to file a change in ownership statement within 90 days from the date a written request is mailed by the assessor results in a penalty of either: (1) one hundred dollars ($100), or (2) 10 percent of the taxes applicable to the new base year value reflecting the change in ownership of the real property or manufactured home, whichever is greater, but not to exceed five thousand dollars ($5,000) if the property is eligible for the homeowners’ exemption or twenty thousand dollars ($20,000) if the property is not eligible for the homeowners’ exemption if that failure to file was not willful. The assessor is required to mail the request to file a change in ownership statement to the transferee at the address specified for mailing tax information on either the recorded instrument, the document evidencing a transfer of an interest in real property or manufactured home, or on the filed preliminary change in ownership report, or, if an address is not specified for mailing tax information, to any address reasonably known to the assessor. This penalty will be added to the assessment roll and shall be collected like any other delinquent property taxes, and be subject to the same penalties for nonpayment. www.FormsWorkflow.com





