Last updated: 3/17/2026
Business Tax Certificate Application (City Of Thousand Oaks)
Start Your Free Trial $ 21.99What you get:
- Instant access to fillable Microsoft Word or PDF forms.
- Minimize the risk of using outdated forms and eliminate rejected fillings.
- Largest forms database in the USA with more than 80,000 federal, state and agency forms.
- Download, edit, auto-fill multiple forms at once in MS Word using our Forms Workflow Ribbon
- Trusted by 1,000s of Attorneys and Legal Professionals
Description
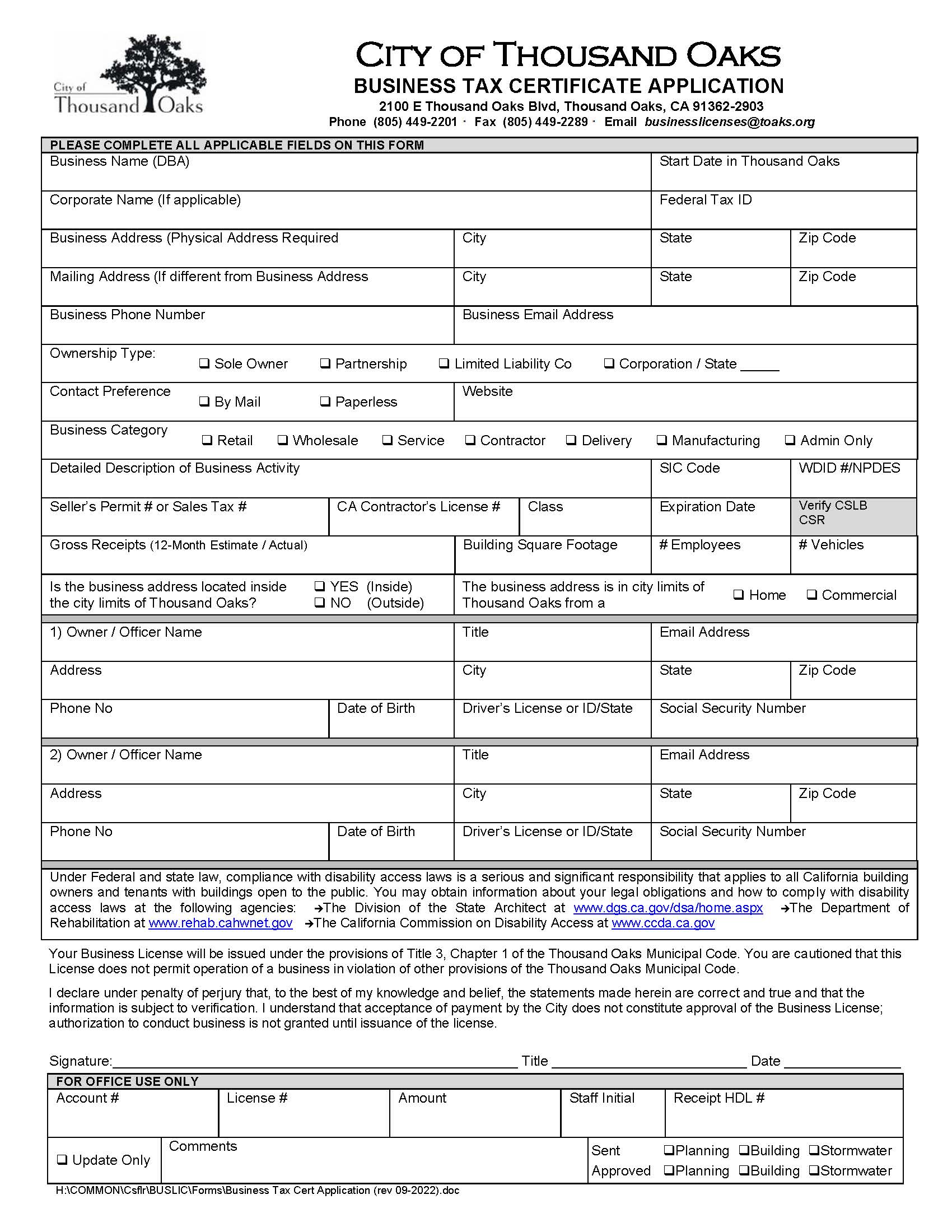
BUSINESS TAX CERTIFICATE APPLICATION (CITY OF THOUSAND OAKS). Thsi form is used to apply for a business license in the City of Thousand Oaks, California. Businesses operating within city limits—especially those in commercial or industrial locations—must submit this application to obtain a required Business Tax Certificate before legally operating. The form collects detailed information about the business, including ownership type, physical and mailing addresses, business activities, estimated gross receipts, number of employees, and applicable licenses or permits. As part of the process, the application is reviewed for zoning clearance, certificate of occupancy, and regulatory compliance, including stormwater discharge requirements if applicable. Applicants must certify the accuracy of the information under penalty of perjury, and final approval is required before business operations may begin. www.FormsWorkflow.com





