Last updated: 7/21/2025
Notice Of Intention (Common Interest) (Part III) {RE 624}
Start Your Free Trial $ 0.00What you get:
- Instant access to fillable Microsoft Word or PDF forms.
- Minimize the risk of using outdated forms and eliminate rejected fillings.
- Largest forms database in the USA with more than 80,000 federal, state and agency forms.
- Download, edit, auto-fill multiple forms at once in MS Word using our Forms Workflow Ribbon
- Trusted by 1,000s of Attorneys and Legal Professionals
Description
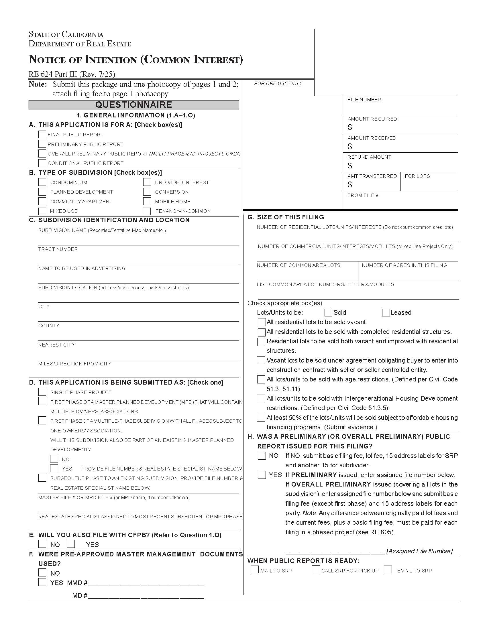
RE 624 Part III - NOTICE OF INTENTION (COMMON INTEREST). This form is used by the California Department of Real Estate (DRE) as part of the application process for subdividers seeking a public report to market and sell interests in a common interest subdivision, such as condominiums, planned developments, or other shared-interest communities. This form serves to notify the DRE of the subdivider’s intent to offer such properties for sale and is a required part of the documentation for obtaining a Final Public Report under the Subdivided Lands Law. It collects detailed information about the common interest development, including governance structure, management of common areas, financial arrangements, and homeowner association details. Submit this package and one photocopy of pages 1 and 2; attach filing fee to page 1 photocopy. www.FormsWorkflow.com
Related forms
-
Notice Of Intention (Common Interest) (Part II)
California/Statewide/Department Of Real Estate (DRE)/Subdivision -
Budget Review Request
California/Statewide/Department Of Real Estate (DRE)/Subdivision -
Certification (Reviewed Budget)
California/Statewide/Department Of Real Estate (DRE)/Subdivision -
Blanket Surety Bond
California/Statewide/Department Of Real Estate (DRE)/Subdivision -
Common Interest Development General Information
California/Statewide/Department Of Real Estate (DRE)/Subdivision -
Common Area Completion Security Agreement
California/Statewide/Department Of Real Estate (DRE)/Subdivision -
CFPB Interstate Land Sales Fact Sheet
California/Statewide/Department Of Real Estate (DRE)/Subdivision -
Certification (Totally Complete Filing Common Interest)
California/Statewide/Department Of Real Estate (DRE)/Subdivision -
Bond (Completion Of Common Facilities)
California/Statewide/Department Of Real Estate (DRE)/Subdivision -
Irrevocable Standby Letter Of Credit
California/Statewide/Department Of Real Estate (DRE)/Subdivision -
Instructions (Time Share Blanket Surety Bond)
California/Statewide/Department Of Real Estate (DRE)/Subdivision -
Irrevocable Standby Letter Of Credit
California/Statewide/Department Of Real Estate (DRE)/Subdivision -
HOA Common Facilities
California/Statewide/Department Of Real Estate (DRE)/Subdivision -
Instructions To Escrow Deposition (Start Up Funds)
California/Statewide/Department Of Real Estate (DRE)/Subdivision -
Final Subdivision Public Report Notice Of Intention
California/Statewide/Department Of Real Estate (DRE)/Subdivision -
Irrevocable Standby Letter Of Credit
California/Statewide/Department Of Real Estate (DRE)/Subdivision -
Master Planned Community Information
California/Statewide/Department Of Real Estate (DRE)/Subdivision -
Notice Of Cancelation Rights (Time Share)
California/Statewide/Department Of Real Estate (DRE)/Subdivision -
Change In Escrow Depository
California/Statewide/Department Of Real Estate (DRE)/Subdivision -
Final Subdivision Public Report
California/Statewide/Department Of Real Estate (DRE)/Subdivision -
Final Subdivision Public Report Amendment
California/Statewide/Department Of Real Estate (DRE)/Subdivision -
Consent To Service Of Process (Out Of State Trustee)
California/Statewide/Department Of Real Estate (DRE)/Subdivision -
Final Subdivision Public Report Change Of Ownership
California/Statewide/Department Of Real Estate (DRE)/Subdivision -
Escrow Instructions
California/Statewide/Department Of Real Estate (DRE)/Subdivision -
Completion Arrangement Information
California/Statewide/Department Of Real Estate (DRE)/Subdivision -
Final Subdivision Public Report Amendment
California/Statewide/Department Of Real Estate (DRE)/Subdivision -
Conditional Subdivision Public Report
California/Statewide/Department Of Real Estate (DRE)/Subdivision -
Consent To Service Of Process (Public Report Or Out Of State Registration)
California/Statewide/Department Of Real Estate (DRE)/Subdivision -
Final Subdivision Public Report Amendment
California/Statewide/Department Of Real Estate (DRE)/Subdivision -
Notice Of Intention (Non Specific Time Share)
California/Statewide/Department Of Real Estate (DRE)/Subdivision -
Notice Of Intention (Time Share)
California/Statewide/Department Of Real Estate (DRE)/Subdivision -
Planned Construction Statement
California/Statewide/Department Of Real Estate (DRE)/Subdivision -
Notice Of Intention (Standard) (Part II)
California/Statewide/Department Of Real Estate (DRE)/Subdivision -
Purchase Money Security Information
California/Statewide/Department Of Real Estate (DRE)/Subdivision -
Receipt For Public Report
California/Statewide/Department Of Real Estate (DRE)/Subdivision -
Public Report Expedited Amendment Application
California/Statewide/Department Of Real Estate (DRE)/Subdivision -
Sample Letter Of Credit (Working Capital)
California/Statewide/Department Of Real Estate (DRE)/Subdivision -
Reservation Instrument (Time-Share Plan)
California/Statewide/Department Of Real Estate (DRE)/Subdivision -
Reservation Deposit Handling Agreement (Time Share Plan)
California/Statewide/Department Of Real Estate (DRE)/Subdivision -
Reservation Instrument
California/Statewide/Department Of Real Estate (DRE)/Subdivision -
Receipt For Public Report
California/Statewide/Department Of Real Estate (DRE)/Subdivision -
Set Aside Letter (Regulation 2792.10)
California/Statewide/Department Of Real Estate (DRE)/Subdivision -
Set Aside Letter (Regulation 2792.9)
California/Statewide/Department Of Real Estate (DRE)/Subdivision -
Set-Aside Letter
California/Statewide/Department Of Real Estate (DRE)/Subdivision -
Reservation Deposit Handling Agreement
California/Statewide/Department Of Real Estate (DRE)/Subdivision -
Regulation Check Sheet
California/Statewide/Department Of Real Estate (DRE)/Subdivision -
Special District And Special Assessment District
California/Statewide/Department Of Real Estate (DRE)/Subdivision -
Surety Bond
California/Statewide/Department Of Real Estate (DRE)/Subdivision -
Supplemental Instructions
California/Statewide/Department Of Real Estate (DRE)/Subdivision -
Time Share Common Facilities
California/Statewide/Department Of Real Estate (DRE)/Subdivision -
Time Share Plan Disclosures (Part I)
California/Statewide/Department Of Real Estate (DRE)/Subdivision -
Supplemental Questionnaire (Common Interest Subdivision Conversion)
California/Statewide/Department Of Real Estate (DRE)/Subdivision -
Time Share Assessment Subsidy Security Agreement
California/Statewide/Department Of Real Estate (DRE)/Subdivision -
Subsidy Security Agreement And Instructions To Escrow Depository
California/Statewide/Department Of Real Estate (DRE)/Subdivision -
Time Share Plan Disclosues (Part II 3)
California/Statewide/Department Of Real Estate (DRE)/Subdivision -
Surety Bond
California/Statewide/Department Of Real Estate (DRE)/Subdivision -
Time-Share Blanket Surety Bond
California/Statewide/Department Of Real Estate (DRE)/Subdivision -
Time-Share Surety Bond
California/Statewide/Department Of Real Estate (DRE)/Subdivision -
Time-Share Bond (Completion Of Common Facilities)
California/Statewide/Department Of Real Estate (DRE)/Subdivision -
Time Share Preliminary Public Report Application Submittal
California/Statewide/Department Of Real Estate (DRE)/Subdivision -
Time-Share Plan Disclosures (Part I)
California/Statewide/Department Of Real Estate (DRE)/Subdivision -
Time Share Preliminary Public Report Application
California/Statewide/Department Of Real Estate (DRE)/Subdivision -
Time Share Public Report Prepartion
California/Statewide/Department Of Real Estate (DRE)/Subdivision -
Time Share Plan Public Report
California/Statewide/Department Of Real Estate (DRE)/Subdivision -
Time Share Plan Disclosures (Part II 1)
California/Statewide/Department Of Real Estate (DRE)/Subdivision -
Time Share Plan Disclosures (Part II 2)
California/Statewide/Department Of Real Estate (DRE)/Subdivision -
Time Share Purchase Money Security Instructions
California/Statewide/Department Of Real Estate (DRE)/Subdivision -
Time-Share Preliminary Public Report-Application Submittal
California/Statewide/Department Of Real Estate (DRE)/Subdivision -
Preliminary-Interim Public Report Application
California/Statewide/Department Of Real Estate (DRE)/Subdivision -
Preliminary Interim Public Report Application Submittal
California/Statewide/Department Of Real Estate (DRE)/Subdivision -
Preliminary Interim Public Report Application Instructions
California/Statewide/Department Of Real Estate (DRE)/Subdivision -
Preliminary Public Report Common Interest Subdivision
California/Statewide/Department Of Real Estate (DRE)/Subdivision -
Time Share Plan Preliminary Public Report Application Instructions
California/Statewide/Department Of Real Estate (DRE)/Subdivision -
Preliminary Public Report Time-Share Plan
California/Statewide/Department Of Real Estate (DRE)/Subdivision -
Notice Of Intention (Common Interest) (Part I)
California/Statewide/Department Of Real Estate (DRE)/Subdivision -
Notice Of Intention (Standard) (Part I)
California/Statewide/Department Of Real Estate (DRE)/Subdivision -
Public Report Amendment-Renewal Application (Part I)
California/Statewide/Department Of Real Estate (DRE)/Subdivision -
Public Report Amendment Renewal Application (Time Share) (Part II)
California/Statewide/Department Of Real Estate (DRE)/Subdivision -
Public Report Amendment-Renewal Application (Part III)
California/Statewide/Department Of Real Estate (DRE)/Subdivision -
Public Report Amendment Application (Non Substantive Change)
California/Statewide/Department Of Real Estate (DRE)/Subdivision -
Assessment Security Agreement And Instructions To Escrow Depository
California/Statewide/Department Of Real Estate (DRE)/Subdivision -
Worksheet-Common Interest
California/Statewide/Department Of Real Estate (DRE)/Subdivision -
Public Report Amendment-Renewal Application (Part II)
California/Statewide/Department Of Real Estate (DRE)/Subdivision -
Notice Of Intention (Common Interest) (Part III)
California/Statewide/Department Of Real Estate (DRE)/Subdivision -
Notice Of Intention (Standard) (Part III)
California/Statewide/Department Of Real Estate (DRE)/Subdivision
Form Preview
Contact Us
Success: Your message was sent.
Thank you!




