Last updated: 5/29/2025
Qualification Of Foreign Real Estate {COM 3620}
Start Your Free Trial $ 13.99What you get:
- Instant access to fillable Microsoft Word or PDF forms.
- Minimize the risk of using outdated forms and eliminate rejected fillings.
- Largest forms database in the USA with more than 80,000 federal, state and agency forms.
- Download, edit, auto-fill multiple forms at once in MS Word using our Forms Workflow Ribbon
- Trusted by 1,000s of Attorneys and Legal Professionals
Description
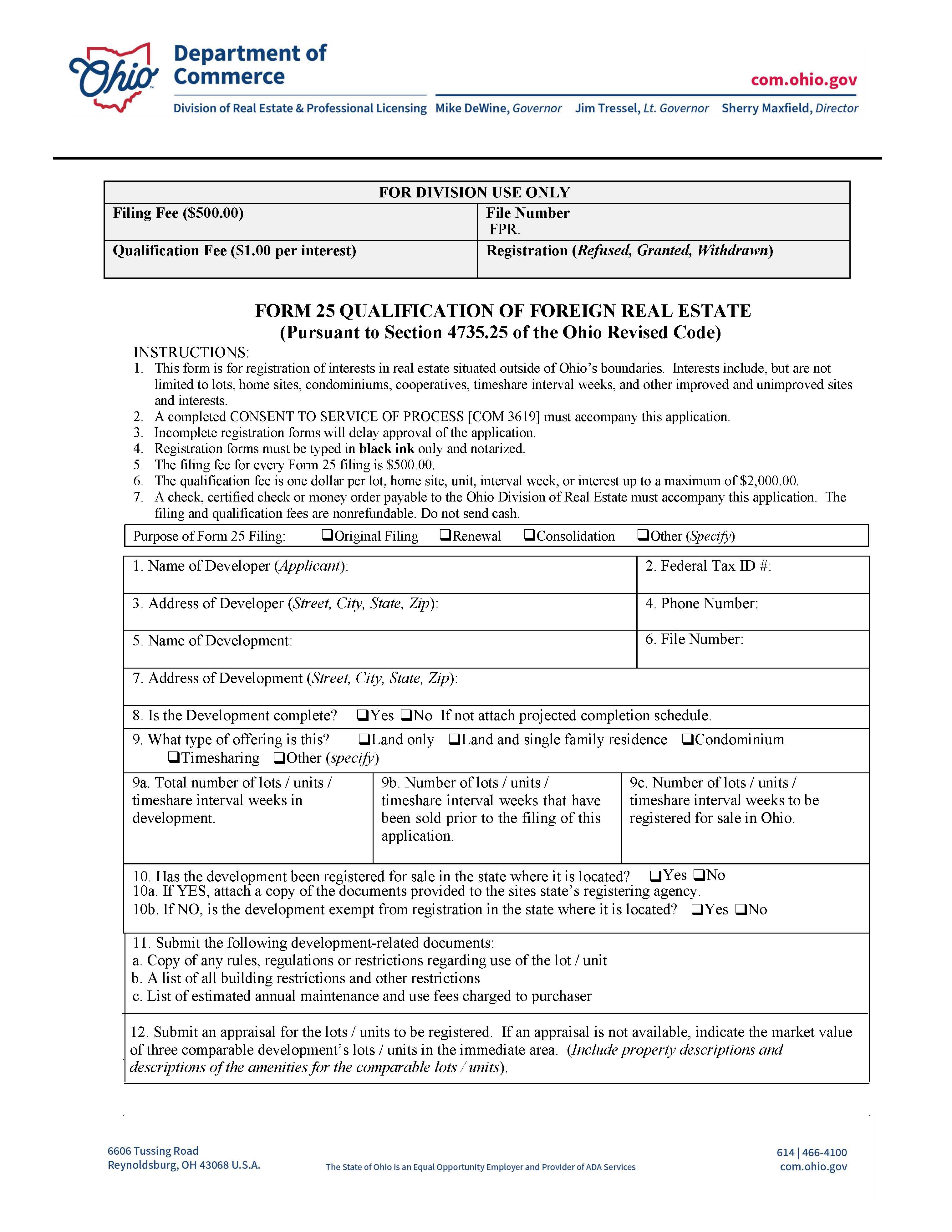
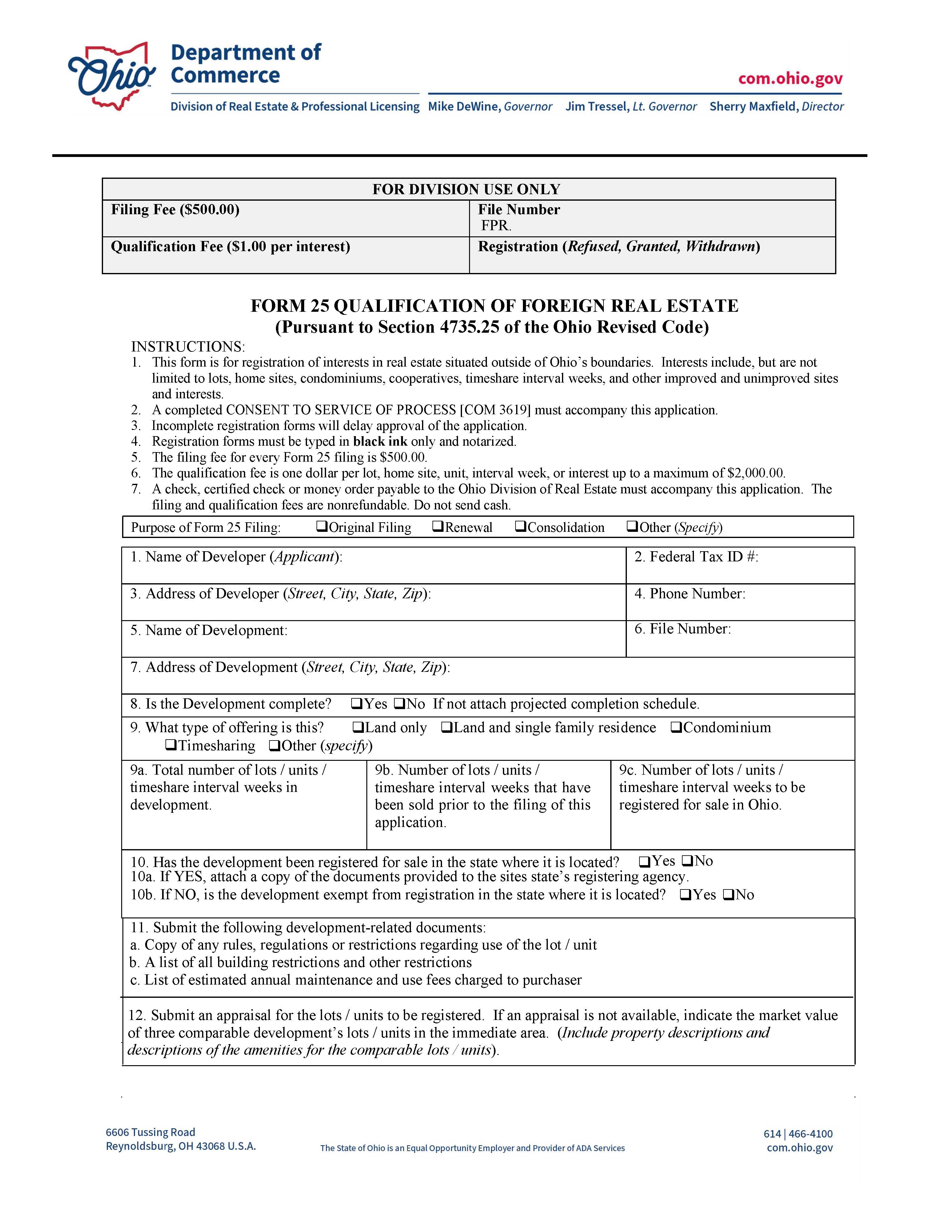
FORM 25 - QUALIFICATION OF FOREIGN REAL ESTATE. This form is for registration of interests in real estate situated outside of Ohio’s boundaries. Interests include, but are not limited to lots, home sites, condominiums, cooperatives, timeshare interval weeks, and other improved and unimproved sites and interests. A completed CONSENT TO SERVICE OF PROCESS [COM 3619] must accompany this application. Incomplete registration forms will delay approval of the application. Registration forms must be typed in black ink only and notarized. The filing fee for every Form 25 filing is $500.00. The qualification fee is one dollar per lot, home site, unit, interval week, or interest up to a maximum of $2,000.00. A check, certified check or money order payable to the Ohio Division of Real Estate must accompany this application. The filing and qualification fees are nonrefundable. Do not send cash. www.FormsWorkflow.com





