Last updated: 1/12/2024
Change In Ownership Statement Death Of Real Property Owner (Imperial) {BOE-502-D}
Start Your Free Trial $ 18.00What you get:
- Instant access to fillable Microsoft Word or PDF forms.
- Minimize the risk of using outdated forms and eliminate rejected fillings.
- Largest forms database in the USA with more than 80,000 federal, state and agency forms.
- Download, edit, auto-fill multiple forms at once in MS Word using our Forms Workflow Ribbon
- Trusted by 1,000s of Attorneys and Legal Professionals
Description
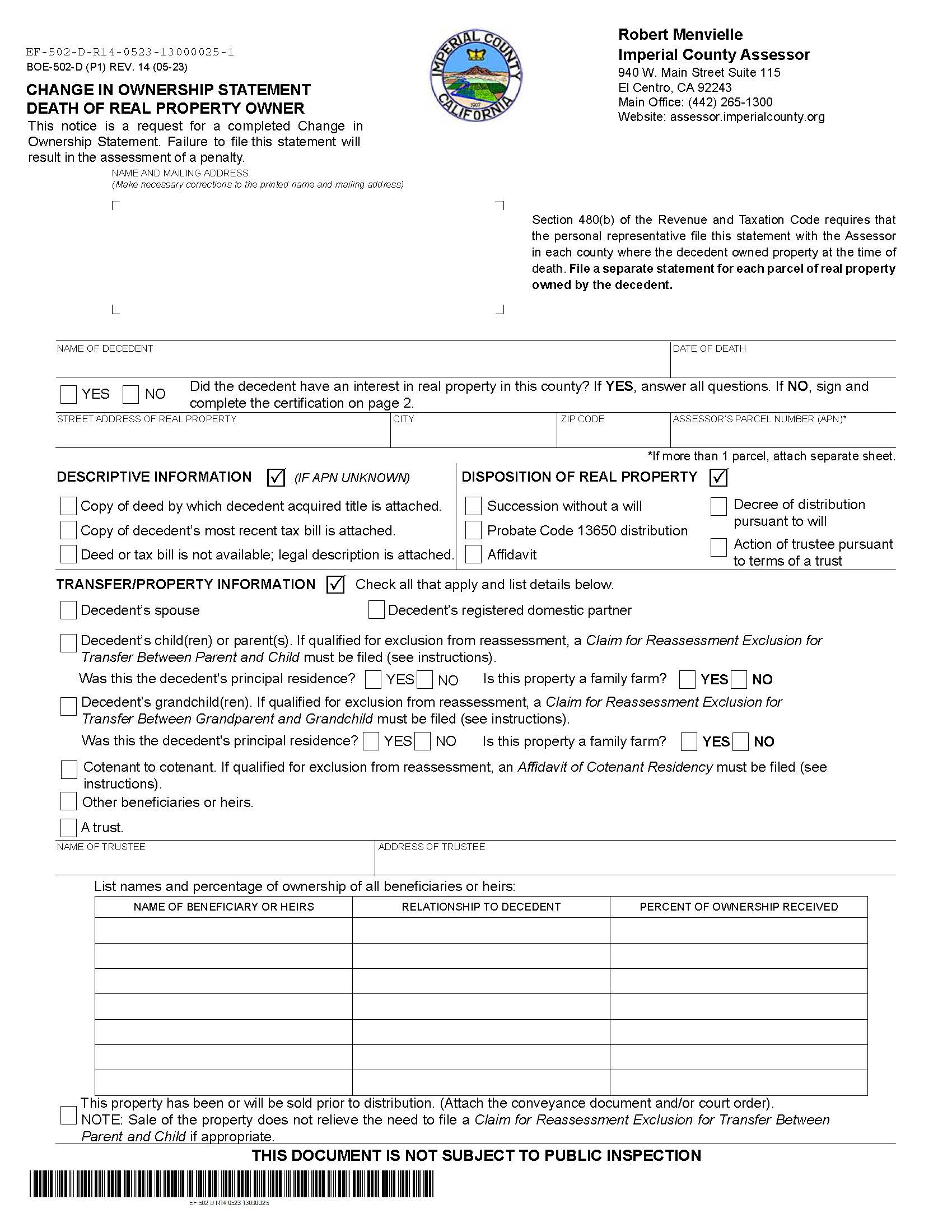
BOE-502-D - CHANGE IN OWNERSHIP STATEMENT DEATH OF REAL PROPERTY OWNER (Imperial County). This form is used in California when a real property owner dies. The Assessor’s Office must be notified upon the death of an owner within 150 days of the date of death, or if the estate is probated at the time the inventory and appraisal is filed. This form is required to be completed and submitted to the Assessor’s Office, even if the decedent held the property in a trust. Section 480 of the Revenue and Taxation Code states, in part: (a) Whenever there occurs any change in ownership of real property or of a manufactured home that is subject to local property taxation and is assessed by the county assessor, the transferee shall file a signed change in ownership statement in the county where the real property or manufactured home is located, as provided for in subdivision (c). In the case of a change in ownership where the transferee is not locally assessed, no change in ownership statement is required. (b) The personal representative shall file a change in ownership statement with the county recorder or assessor in each county in which the decedent owned real property at the time of death that is subject to probate proceedings. The statement shall be filed prior to or at the time the inventory and appraisal is filed with the court clerk. In all other cases in which an interest in real property is transferred by reason of death, including a transfer through the medium of a trust, the change in ownership statement or statements shall be filed by the trustee (if the property was held in trust) or the transferee with the county recorder or assessor in each county in which the decedent owned an interest in real property within 150 days after the date of death. Failure to file a Change in Ownership Statement within the time prescribed by law may result in a penalty of either $100 or 10% of the taxes applicable to the new base year value of the real property or manufactured home, whichever is greater, but not to exceed five thousand dollars ($5,000) if the property is eligible for the homeowners’ exemption or twenty thousand dollars ($20,000) if the property is not eligible for the homeowners’ exemption if that failure to file was not willful. This penalty will be added to the assessment roll and shall be collected like any other delinquent property taxes and subjected to the same penalties for nonpayment. www.FormsWorkflow.com





