Last updated: 1/11/2024
Preliminary Change Of Ownership Report (Stanislaus) {BOE-502-A}
Start Your Free Trial $ 17.99What you get:
- Instant access to fillable Microsoft Word or PDF forms.
- Minimize the risk of using outdated forms and eliminate rejected fillings.
- Largest forms database in the USA with more than 80,000 federal, state and agency forms.
- Download, edit, auto-fill multiple forms at once in MS Word using our Forms Workflow Ribbon
- Trusted by 1,000s of Attorneys and Legal Professionals
Description
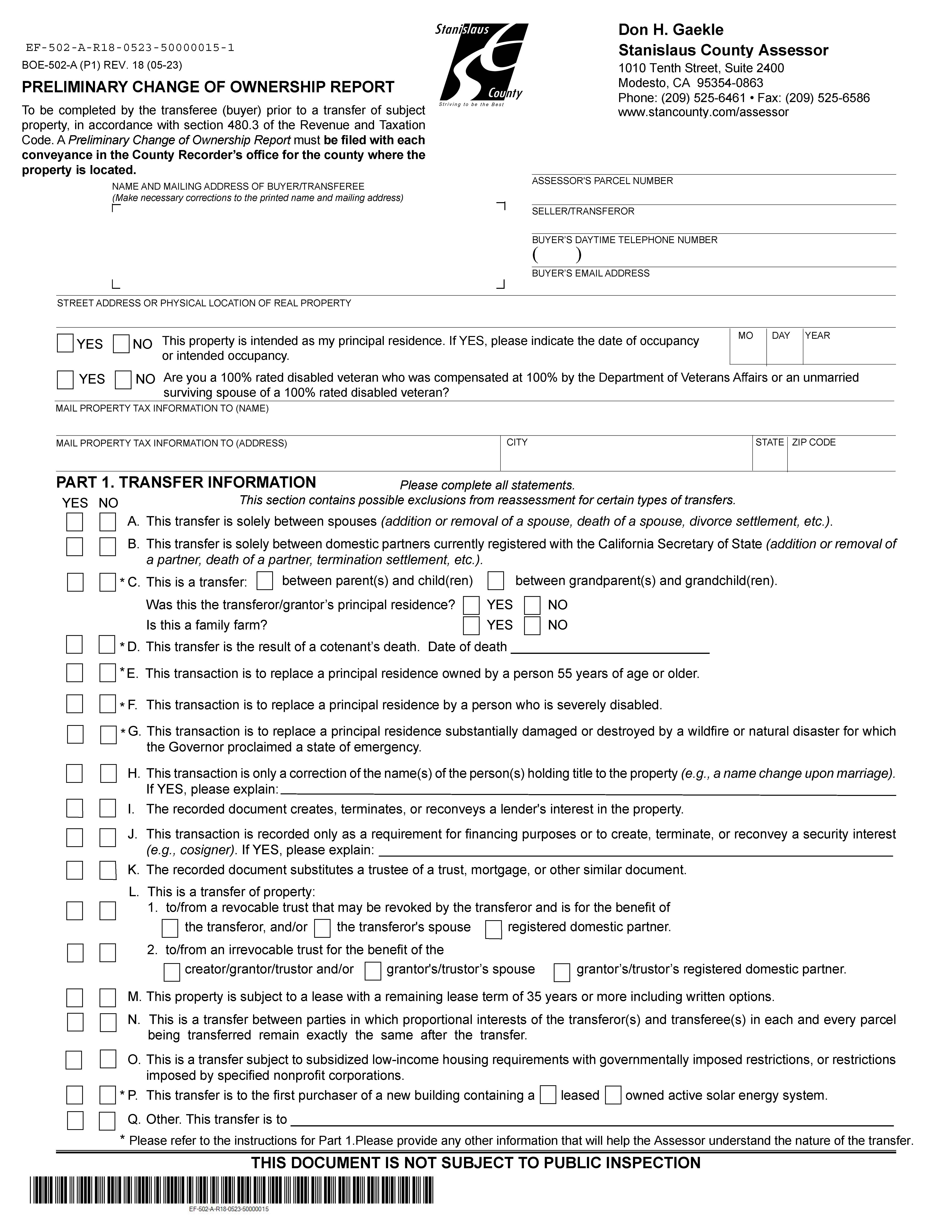
BOE-502-A - PRELIMINARY CHANGE OF OWNERSHIP REPORT (Stanislaus County). To be completed by the transferee (buyer) prior to a transfer of subject property, in accordance with section 480.3 of the Revenue and Taxation Code. A Preliminary Change of Ownership Report must be filed with each conveyance in the County Recorder's office for the county where the property is located. It contains information about the property being transferred, individuals involved in the transfer of it, the type of transfer being recorded, the purchase price, and the terms of sale. It serves as a reminder to a county assessor’s office that it is time to reassess the value of the property for property tax purposes. NOTICE: The property which you acquired may be subject to a supplemental assessment in an amount to be determined by the County Assessor. Supplemental assessments are not paid by the title or escrow company at close of escrow, and are not included in lender impound accounts. You may be responsible for the current or upcoming property taxes even if you do not receive the tax bill. www.FormsWorkflow.com





