Last updated: 1/18/2023
Application To Report Change Of Corporate Title For Current Officer {13A-7a}
Start Your Free Trial $ 13.99What you get:
- Instant access to fillable Microsoft Word or PDF forms.
- Minimize the risk of using outdated forms and eliminate rejected fillings.
- Largest forms database in the USA with more than 80,000 federal, state and agency forms.
- Download, edit, auto-fill multiple forms at once in MS Word using our Forms Workflow Ribbon
- Trusted by 1,000s of Attorneys and Legal Professionals
Description
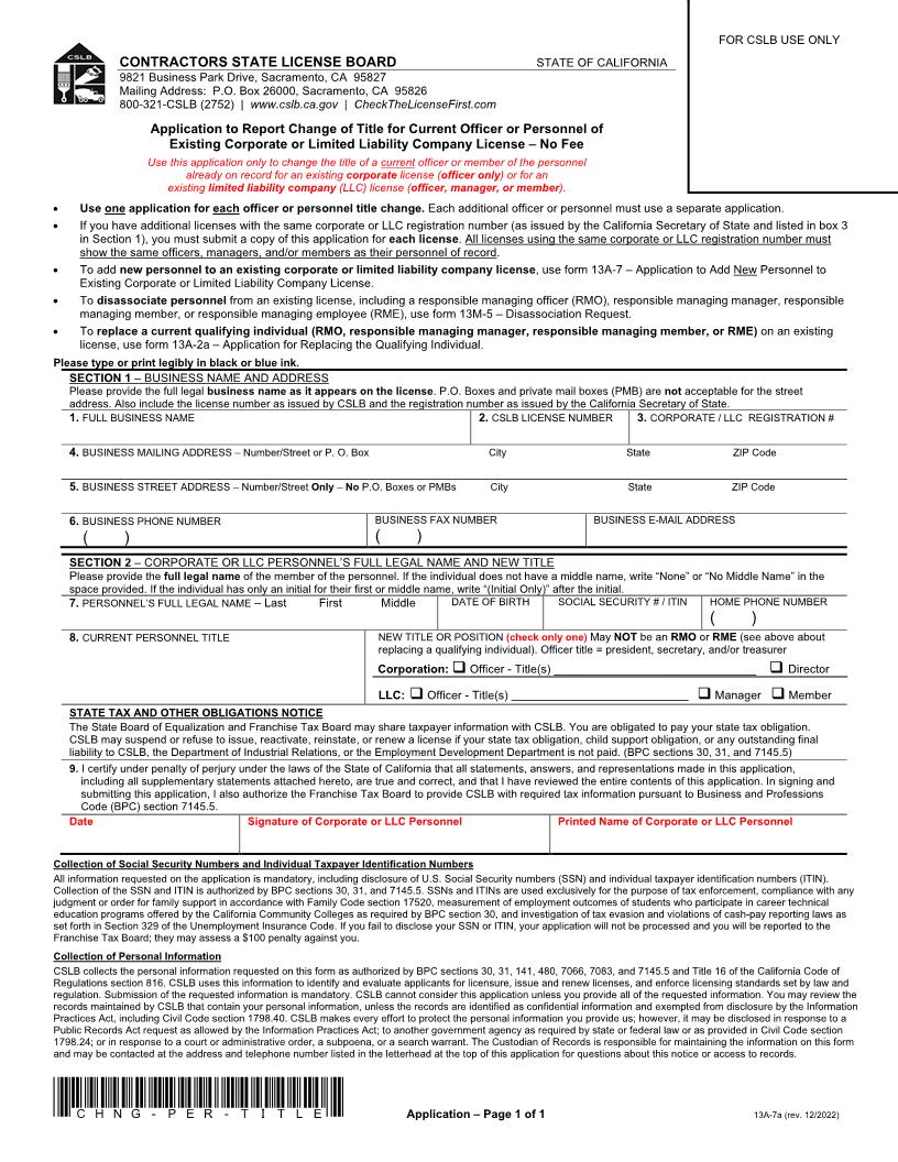
13A-7a - Application to Report Change of Title for Current Officer or Personnel of Existing Corporate or Limited Liability Company License – No Fee. Use this application only to change the title of a current officer or member of the personnel already on record for an existing corporate license (officer only) or for an existing limited liability company (LLC) license (officer, manager, or member). • Use one application for each officer or personnel title change. Each additional officer or personnel must use a separate application. • If you have additional licenses with the same corporate or LLC registration number (as issued by the California Secretary of State and listed in box 3 in Section 1), you must submit a copy of this application for each license. All licenses using the same corporate or LLC registration number must show the same officers, managers, and/or members as their personnel of record. • To add new personnel to an existing corporate or limited liability company license, use form 13A-7 - Application to Add New Personnel to Existing Corporate or Limited Liability Company License. • To disassociate personnel from an existing license, including a responsible managing officer (RMO), responsible managing manager, responsible managing member, or responsible managing employee (RME), use form 13M-5 - Disassociation Request. • To replace a current qualifying individual (RMO, responsible managing manager, responsible managing member, or RME) on an existing license, use form 13A-2a - Application for Replacing the Qualifying Individual. www.FormsWorkflow.com





