New York
Local County
New York
City Of New York
Department Of Buildings
Last updated: 8/18/2022
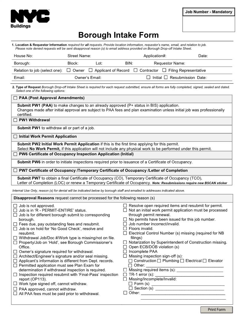
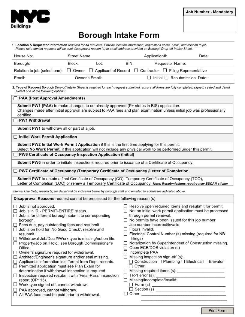
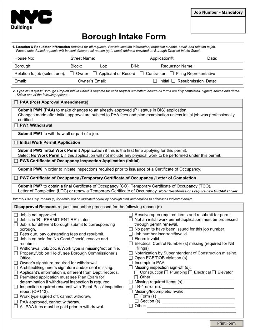
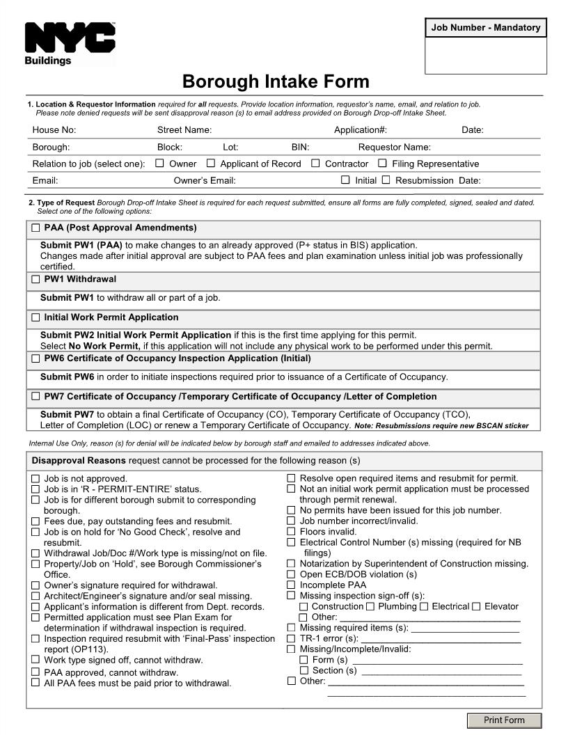
Borough Intake Form
Start Your Free Trial $ 14.00What you get:
- Instant access to fillable Microsoft Word or PDF forms.
- Minimize the risk of using outdated forms and eliminate rejected fillings.
- Largest forms database in the USA with more than 80,000 federal, state and agency forms.
- Download, edit, auto-fill multiple forms at once in MS Word using our Forms Workflow Ribbon
- Trusted by 1,000s of Attorneys and Legal Professionals
Description
Related forms
Our Products





