Last updated: 4/25/2022
Notice Of Intention (Time Share) {RE 668A}
Start Your Free Trial $ 0.00What you get:
- Instant access to fillable Microsoft Word or PDF forms.
- Minimize the risk of using outdated forms and eliminate rejected fillings.
- Largest forms database in the USA with more than 80,000 federal, state and agency forms.
- Download, edit, auto-fill multiple forms at once in MS Word using our Forms Workflow Ribbon
- Trusted by 1,000s of Attorneys and Legal Professionals
Description
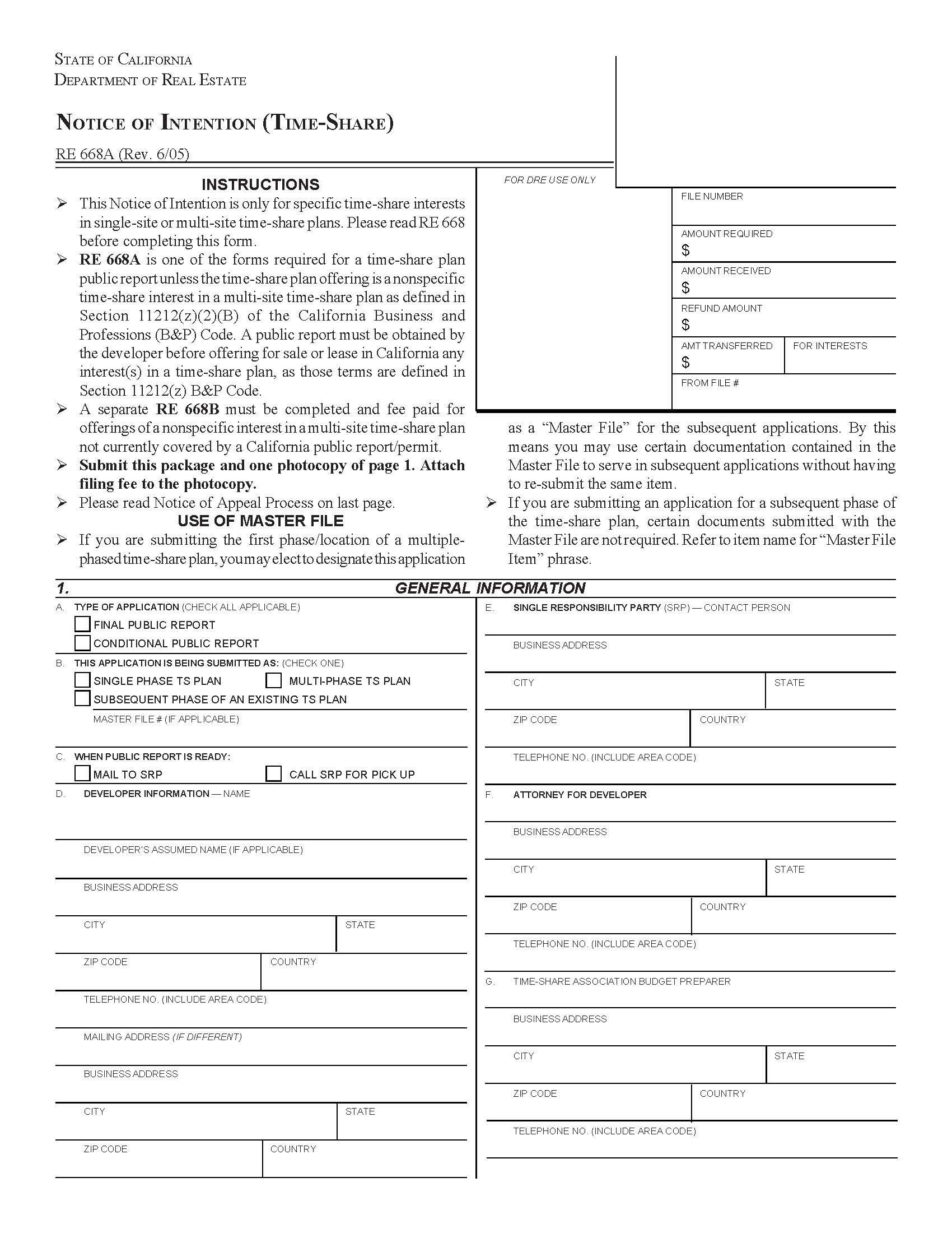
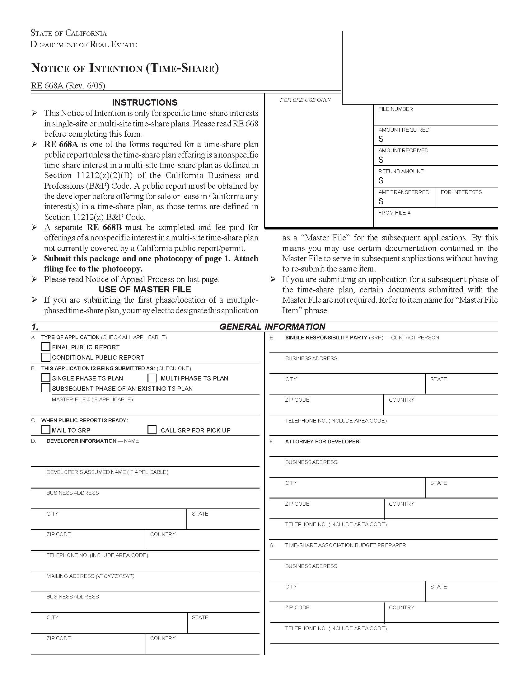
RE 668A, NOTICE OF INTENTION (TIME-SHARE), This Notice of Intention is only for specific time-share interests in single-site or multi-site time-share plans. Please read RE 668 before completing this form. RE 668A is one of the forms required for a time-share plan public report unless the time-share plan offering is a nonspecific time-share interest in a multi-site time-share plan as defined in Section 11212(z)(2)(B) of the California Business and Professions (B&P) Code. A public report must be obtained by the developer before offering for sale or lease in California any interest(s) in a time-share plan, as those terms are defined in Section 11212(z) B&P Code. www.FormsWorkflow.com
Related forms
-
Notice Of Intention (Common Interest) (Part II)
California/Statewide/Department Of Real Estate (DRE)/Subdivision -
Budget Review Request
California/Statewide/Department Of Real Estate (DRE)/Subdivision -
Certification (Reviewed Budget)
California/Statewide/Department Of Real Estate (DRE)/Subdivision -
Blanket Surety Bond
California/Statewide/Department Of Real Estate (DRE)/Subdivision -
Common Interest Development General Information
California/Statewide/Department Of Real Estate (DRE)/Subdivision -
Common Area Completion Security Agreement
California/Statewide/Department Of Real Estate (DRE)/Subdivision -
CFPB Interstate Land Sales Fact Sheet
California/Statewide/Department Of Real Estate (DRE)/Subdivision -
Certification (Totally Complete Filing Common Interest)
California/Statewide/Department Of Real Estate (DRE)/Subdivision -
Bond (Completion Of Common Facilities)
California/Statewide/Department Of Real Estate (DRE)/Subdivision -
Irrevocable Standby Letter Of Credit
California/Statewide/Department Of Real Estate (DRE)/Subdivision -
Instructions (Time Share Blanket Surety Bond)
California/Statewide/Department Of Real Estate (DRE)/Subdivision -
Irrevocable Standby Letter Of Credit
California/Statewide/Department Of Real Estate (DRE)/Subdivision -
HOA Common Facilities
California/Statewide/Department Of Real Estate (DRE)/Subdivision -
Instructions To Escrow Deposition (Start Up Funds)
California/Statewide/Department Of Real Estate (DRE)/Subdivision -
Final Subdivision Public Report Notice Of Intention
California/Statewide/Department Of Real Estate (DRE)/Subdivision -
Irrevocable Standby Letter Of Credit
California/Statewide/Department Of Real Estate (DRE)/Subdivision -
Master Planned Community Information
California/Statewide/Department Of Real Estate (DRE)/Subdivision -
Notice Of Cancelation Rights (Time Share)
California/Statewide/Department Of Real Estate (DRE)/Subdivision -
Change In Escrow Depository
California/Statewide/Department Of Real Estate (DRE)/Subdivision -
Final Subdivision Public Report
California/Statewide/Department Of Real Estate (DRE)/Subdivision -
Final Subdivision Public Report Amendment
California/Statewide/Department Of Real Estate (DRE)/Subdivision -
Consent To Service Of Process (Out Of State Trustee)
California/Statewide/Department Of Real Estate (DRE)/Subdivision -
Final Subdivision Public Report Change Of Ownership
California/Statewide/Department Of Real Estate (DRE)/Subdivision -
Escrow Instructions
California/Statewide/Department Of Real Estate (DRE)/Subdivision -
Completion Arrangement Information
California/Statewide/Department Of Real Estate (DRE)/Subdivision -
Final Subdivision Public Report Amendment
California/Statewide/Department Of Real Estate (DRE)/Subdivision -
Conditional Subdivision Public Report
California/Statewide/Department Of Real Estate (DRE)/Subdivision -
Consent To Service Of Process (Public Report Or Out Of State Registration)
California/Statewide/Department Of Real Estate (DRE)/Subdivision -
Final Subdivision Public Report Amendment
California/Statewide/Department Of Real Estate (DRE)/Subdivision -
Notice Of Intention (Non Specific Time Share)
California/Statewide/Department Of Real Estate (DRE)/Subdivision -
Notice Of Intention (Time Share)
California/Statewide/Department Of Real Estate (DRE)/Subdivision -
Planned Construction Statement
California/Statewide/Department Of Real Estate (DRE)/Subdivision -
Notice Of Intention (Standard) (Part II)
California/Statewide/Department Of Real Estate (DRE)/Subdivision -
Purchase Money Security Information
California/Statewide/Department Of Real Estate (DRE)/Subdivision -
Receipt For Public Report
California/Statewide/Department Of Real Estate (DRE)/Subdivision -
Public Report Expedited Amendment Application
California/Statewide/Department Of Real Estate (DRE)/Subdivision -
Sample Letter Of Credit (Working Capital)
California/Statewide/Department Of Real Estate (DRE)/Subdivision -
Reservation Instrument (Time-Share Plan)
California/Statewide/Department Of Real Estate (DRE)/Subdivision -
Reservation Deposit Handling Agreement (Time Share Plan)
California/Statewide/Department Of Real Estate (DRE)/Subdivision -
Reservation Instrument
California/Statewide/Department Of Real Estate (DRE)/Subdivision -
Receipt For Public Report
California/Statewide/Department Of Real Estate (DRE)/Subdivision -
Set Aside Letter (Regulation 2792.10)
California/Statewide/Department Of Real Estate (DRE)/Subdivision -
Set Aside Letter (Regulation 2792.9)
California/Statewide/Department Of Real Estate (DRE)/Subdivision -
Set-Aside Letter
California/Statewide/Department Of Real Estate (DRE)/Subdivision -
Reservation Deposit Handling Agreement
California/Statewide/Department Of Real Estate (DRE)/Subdivision -
Regulation Check Sheet
California/Statewide/Department Of Real Estate (DRE)/Subdivision -
Special District And Special Assessment District
California/Statewide/Department Of Real Estate (DRE)/Subdivision -
Surety Bond
California/Statewide/Department Of Real Estate (DRE)/Subdivision -
Supplemental Instructions
California/Statewide/Department Of Real Estate (DRE)/Subdivision -
Time Share Common Facilities
California/Statewide/Department Of Real Estate (DRE)/Subdivision -
Time Share Plan Disclosures (Part I)
California/Statewide/Department Of Real Estate (DRE)/Subdivision -
Supplemental Questionnaire (Common Interest Subdivision Conversion)
California/Statewide/Department Of Real Estate (DRE)/Subdivision -
Time Share Assessment Subsidy Security Agreement
California/Statewide/Department Of Real Estate (DRE)/Subdivision -
Subsidy Security Agreement And Instructions To Escrow Depository
California/Statewide/Department Of Real Estate (DRE)/Subdivision -
Time Share Plan Disclosues (Part II 3)
California/Statewide/Department Of Real Estate (DRE)/Subdivision -
Surety Bond
California/Statewide/Department Of Real Estate (DRE)/Subdivision -
Time-Share Blanket Surety Bond
California/Statewide/Department Of Real Estate (DRE)/Subdivision -
Time-Share Surety Bond
California/Statewide/Department Of Real Estate (DRE)/Subdivision -
Time-Share Bond (Completion Of Common Facilities)
California/Statewide/Department Of Real Estate (DRE)/Subdivision -
Time Share Preliminary Public Report Application Submittal
California/Statewide/Department Of Real Estate (DRE)/Subdivision -
Time-Share Plan Disclosures (Part I)
California/Statewide/Department Of Real Estate (DRE)/Subdivision -
Time Share Preliminary Public Report Application
California/Statewide/Department Of Real Estate (DRE)/Subdivision -
Time Share Public Report Prepartion
California/Statewide/Department Of Real Estate (DRE)/Subdivision -
Time Share Plan Public Report
California/Statewide/Department Of Real Estate (DRE)/Subdivision -
Time Share Plan Disclosures (Part II 1)
California/Statewide/Department Of Real Estate (DRE)/Subdivision -
Time Share Plan Disclosures (Part II 2)
California/Statewide/Department Of Real Estate (DRE)/Subdivision -
Time Share Purchase Money Security Instructions
California/Statewide/Department Of Real Estate (DRE)/Subdivision -
Time-Share Preliminary Public Report-Application Submittal
California/Statewide/Department Of Real Estate (DRE)/Subdivision -
Preliminary-Interim Public Report Application
California/Statewide/Department Of Real Estate (DRE)/Subdivision -
Preliminary Interim Public Report Application Submittal
California/Statewide/Department Of Real Estate (DRE)/Subdivision -
Preliminary Interim Public Report Application Instructions
California/Statewide/Department Of Real Estate (DRE)/Subdivision -
Preliminary Public Report Common Interest Subdivision
California/Statewide/Department Of Real Estate (DRE)/Subdivision -
Time Share Plan Preliminary Public Report Application Instructions
California/Statewide/Department Of Real Estate (DRE)/Subdivision -
Preliminary Public Report Time-Share Plan
California/Statewide/Department Of Real Estate (DRE)/Subdivision -
Notice Of Intention (Common Interest) (Part I)
California/Statewide/Department Of Real Estate (DRE)/Subdivision -
Notice Of Intention (Standard) (Part I)
California/Statewide/Department Of Real Estate (DRE)/Subdivision -
Public Report Amendment-Renewal Application (Part I)
California/Statewide/Department Of Real Estate (DRE)/Subdivision -
Public Report Amendment Renewal Application (Time Share) (Part II)
California/Statewide/Department Of Real Estate (DRE)/Subdivision -
Public Report Amendment-Renewal Application (Part III)
California/Statewide/Department Of Real Estate (DRE)/Subdivision -
Public Report Amendment Application (Non Substantive Change)
California/Statewide/Department Of Real Estate (DRE)/Subdivision -
Assessment Security Agreement And Instructions To Escrow Depository
California/Statewide/Department Of Real Estate (DRE)/Subdivision -
Worksheet-Common Interest
California/Statewide/Department Of Real Estate (DRE)/Subdivision -
Public Report Amendment-Renewal Application (Part II)
California/Statewide/Department Of Real Estate (DRE)/Subdivision -
Notice Of Intention (Common Interest) (Part III)
California/Statewide/Department Of Real Estate (DRE)/Subdivision -
Notice Of Intention (Standard) (Part III)
California/Statewide/Department Of Real Estate (DRE)/Subdivision
Form Preview
Contact Us
Success: Your message was sent.
Thank you!




