Last updated:
Stop Notice Legal Notice To Withhold Construction Funds
Start Your Free Trial $ 13.99What you get:
- Instant access to fillable Microsoft Word or PDF forms.
- Minimize the risk of using outdated forms and eliminate rejected fillings.
- Largest forms database in the USA with more than 80,000 federal, state and agency forms.
- Download, edit, auto-fill multiple forms at once in MS Word using our Forms Workflow Ribbon
- Trusted by 1,000s of Attorneys and Legal Professionals
Description
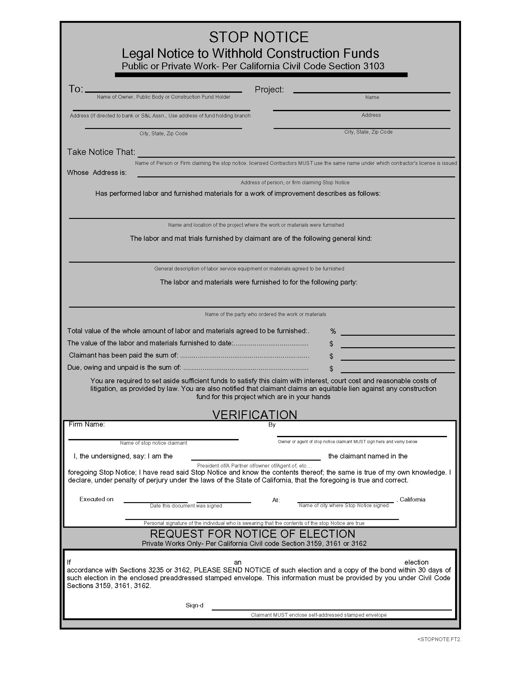
STOP NOTICE Legal Notice to Withhold Construction Funds Public or Private Work- Per California Civil Code Section 3103. This form is used in construction projects to legally notify the entity holding construction funds (owner, public body, or construction fund holder) to withhold sufficient funds to satisfy a claim. It includes details such as the claimant's information, project specifics, description of labor and materials provided, financial details (total amount owed and payments made), and a verification statement signed under penalty of perjury. The form also allows for a request to receive notice if the owner elects to use a bond to satisfy the claim, applicable only in private works. www.FormsWorkflow.com
Related forms
-
20-Day Preliminary Notice
Business Forms/Construction Management/ -
Additional Work Authorization
Business Forms/Construction Management/ -
Bid Confirmation
Business Forms/Construction Management/ -
Bid Proposal
Business Forms/Construction Management/ -
Construction Subcontract
Business Forms/Construction Management/ -
Contract Change Order
Business Forms/Construction Management/ -
Estimate Sheet
Business Forms/Construction Management/ -
Extra Work Confirmation
Business Forms/Construction Management/ -
Extra Work Order 1
Business Forms/Construction Management/ -
Extra Work Order 2
Business Forms/Construction Management/ -
Flooring Proposal
Business Forms/Construction Management/ -
General Construction Requirements
Business Forms/Construction Management/ -
Insulation Certification
Business Forms/Construction Management/ -
Job Invoice 1
Business Forms/Construction Management/ -
Job Invoice 2
Business Forms/Construction Management/ -
Notice Of Completion 1
Business Forms/Construction Management/ -
Notice Of Completion 2
Business Forms/Construction Management/ -
Notice Of Non Responsibilty
Business Forms/Construction Management/ -
Notice Of Right To Cancel
Business Forms/Construction Management/ -
Prime Construction Contract
Business Forms/Construction Management/ -
Proposal And Contract
Business Forms/Construction Management/ -
Service Order And Invoice
Business Forms/Construction Management/ -
Stop Notice Legal Notice To Withhold Construction Funds
Business Forms/Construction Management/ -
Subcontract Agreement 1
Business Forms/Construction Management/ -
Subcontract Agreement 2
Business Forms/Construction Management/ -
Unconditional Waiver And Release Upon Final Payment
Business Forms/Construction Management/ -
Waiver Of Right To Cancel
Business Forms/Construction Management/ -
Legal Release Of Claim Of Mechanics Lien
Business Forms/Construction Management/ -
Mechanics Lien 1
Business Forms/Construction Management/ -
Mechanics Lien 2
Business Forms/Construction Management/ -
Mechanics Lien Release
Business Forms/Construction Management/ -
Notice Of Owner Regarding Mechanics Lien Law
Business Forms/Construction Management/ -
Contractors Declaration To Procure Payment
Business Forms/Construction Management/ -
Contractors Estimate Detail
Business Forms/Construction Management/ -
Contractors Job Invoice
Business Forms/Construction Management/
Form Preview
Contact Us
Success: Your message was sent.
Thank you!




