Last updated: 7/1/2016
Notice Of Stay Of Proceedings And Early Evaluation Conference {DAL-010}
Start Your Free Trial $ 13.99What you get:
- Instant access to fillable Microsoft Word or PDF forms.
- Minimize the risk of using outdated forms and eliminate rejected fillings.
- Largest forms database in the USA with more than 80,000 federal, state and agency forms.
- Download, edit, auto-fill multiple forms at once in MS Word using our Forms Workflow Ribbon
- Trusted by 1,000s of Attorneys and Legal Professionals
Description
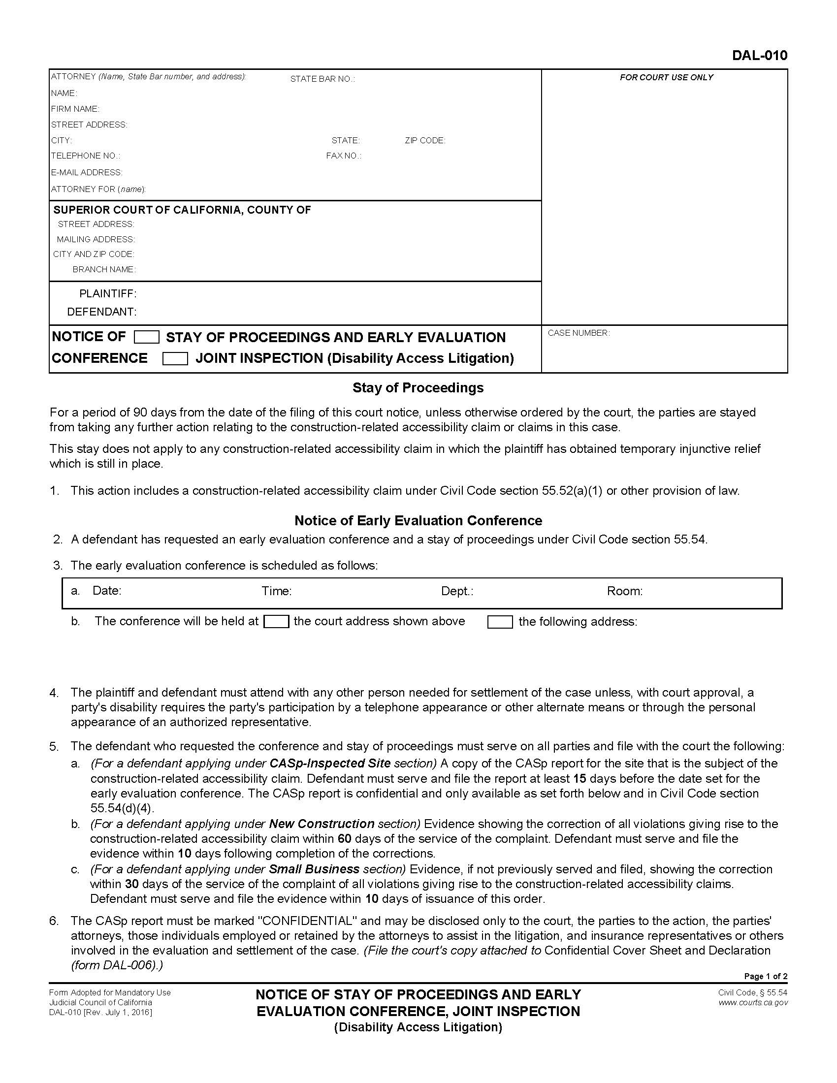
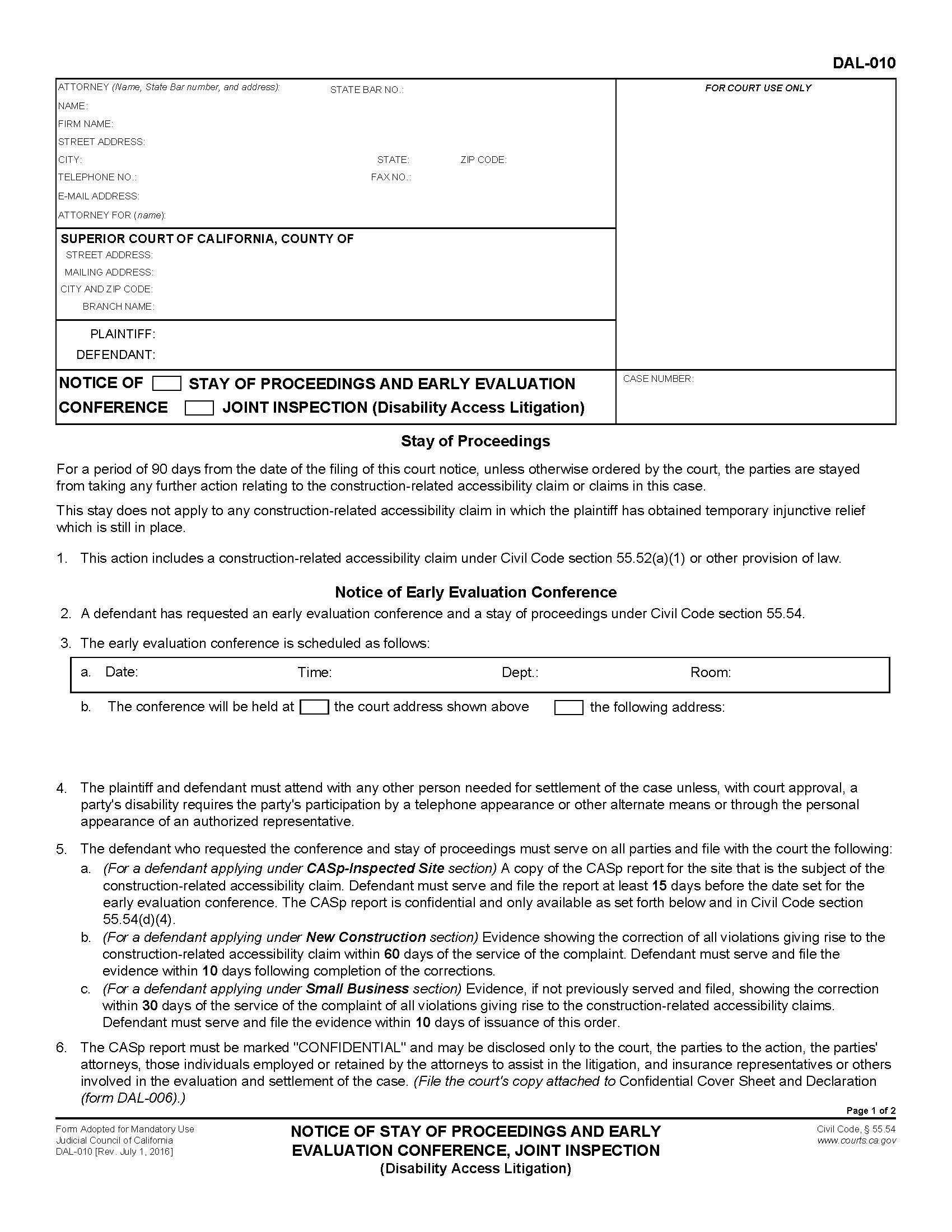
DAL-010, NOTICE OF STAY OF PROCEEDINGS AND EARLY EVALUATION CONFERENCE, JOINT INSPECTION (Disability Access Litigation), this form is used in a case about whether a building meets requirements for access of disabled persons, gives notice to the parties that the court has put the court proceedings on hold, ordered the parties to participate in an early evaluation conference, or ordered a joint inspection of the building. Form Adopted for Mandatory Use, Judicial Council of California, DAL-010 [Rev. July 1, 2016] Civil Code, § 55.54, www.FormsWorkFlow.com





